Elérhető Otthon Start hitellel
Eladó lakás,
H512224
Budapest XX. kerület, Pesterzsébet
38 990 000 Ft
104 000 €
- 37m²
- 1 szoba
- földszint
Eladó 1 szobás lakás Pesterzsébet csendes, családias részén – rendezett társasházban!
Pesterzsébet nyugodt részén eladó egy 37 m²-es, hangulatos 1 szobás lakás, amely ideális választás lehet egyszemélyes otthonnak, pároknak vagy befektetésnek is.
Az ingatlan egy kifejezetten rendezett, jó lakóközösséggel rendelkező társasházban található, ahol mindössze 5 lakás van az udvarban, így igazán családias, csendes környezet várja az új tulajdonost.
A lakás főbb jellemzői:
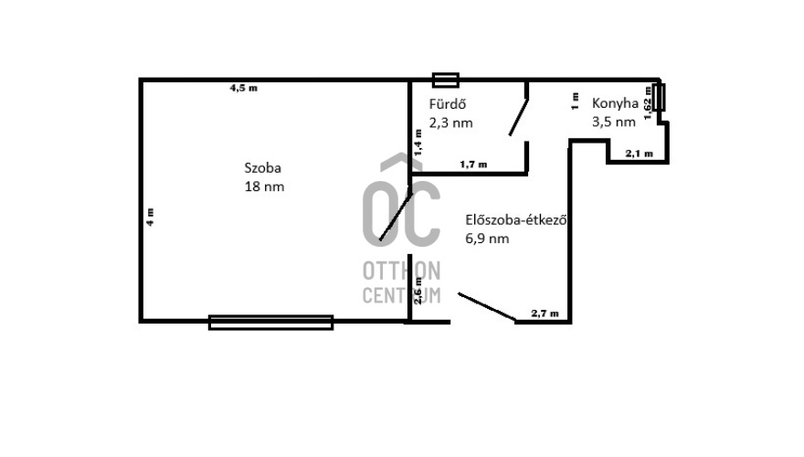
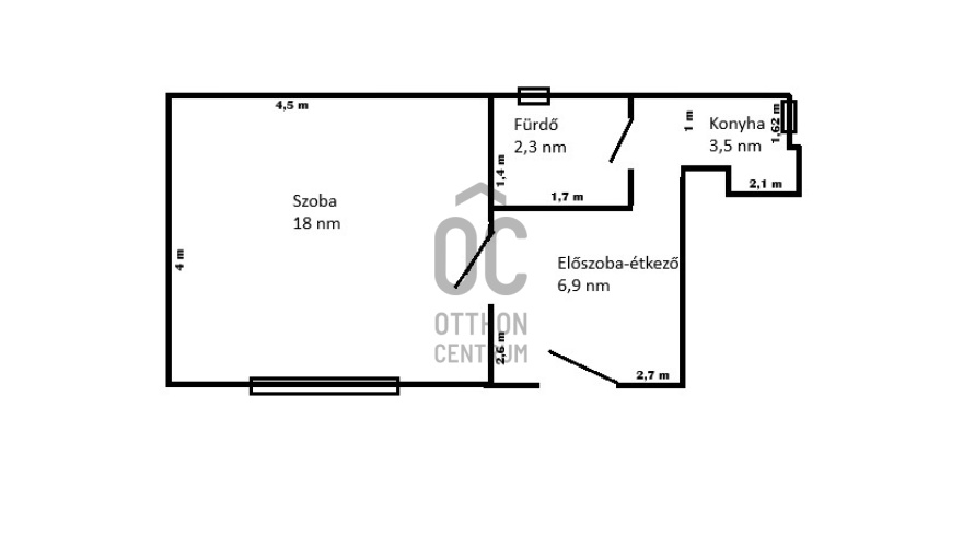
-Alapterület: 37 m²
-Elosztás: előszobából nyíló tágas szoba, közlekedő, külön konyha és fürdőszoba
-Fűtés: gázkonvektor, amelyet az előszobában elhelyezett klíma egészít ki
-Padlás: betonfödémes, szigetelt padlás, amely bővítési lehetőséget kínál
-Tárolás: önálló, saját tároló közvetlenül a lakás mellett
-Pince: saját pince a további tárolási lehetőségeknek
Kültéri adottságok:
-Privát előkert és terasz, elkerített kialakítással
-Rendezett, csendes udvar, jó szomszédokkal
-Alacsony lakásszám → nyugodt, kis közösség
Elhelyezkedés:
Az ingatlan kiváló infrastruktúrával rendelkező környéken található: a közelben üzletek (pl LIDL), iskola, óvoda, piac, valamint tömegközlekedési lehetőségek (pl 3, 2B, 51, 52 villamosok, 35, 66, 119, 166, 223, 224 buszok, H6-os HÉV) is könnyen elérhetők, így a mindennapi élet kényelmesen szervezhető.
Ez a lakás ideális választás mindazok számára, akik nyugodt, rendezett környezetben, mégis jó megközelíthetőséggel keresnek praktikus, bővíthető otthont.
Ne hagyja ki, hívjon bizalommal, és tekintse meg személyesen!
Hitelre van szüksége? Bankfüggetlen kollégáim díjmentesen segítenek a legjobb megoldás megtalálásában.
Az ingatlan az Otthon Centrum egyedülálló felezőcsomagjában érhető el. További részletek a honlapon: https://www.oc.hu/felezocsomag
Az ingatlan egy kifejezetten rendezett, jó lakóközösséggel rendelkező társasházban található, ahol mindössze 5 lakás van az udvarban, így igazán családias, csendes környezet várja az új tulajdonost.
A lakás főbb jellemzői:
-Alapterület: 37 m²
-Elosztás: előszobából nyíló tágas szoba, közlekedő, külön konyha és fürdőszoba
-Fűtés: gázkonvektor, amelyet az előszobában elhelyezett klíma egészít ki
-Padlás: betonfödémes, szigetelt padlás, amely bővítési lehetőséget kínál
-Tárolás: önálló, saját tároló közvetlenül a lakás mellett
-Pince: saját pince a további tárolási lehetőségeknek
Kültéri adottságok:
-Privát előkert és terasz, elkerített kialakítással
-Rendezett, csendes udvar, jó szomszédokkal
-Alacsony lakásszám → nyugodt, kis közösség
Elhelyezkedés:
Az ingatlan kiváló infrastruktúrával rendelkező környéken található: a közelben üzletek (pl LIDL), iskola, óvoda, piac, valamint tömegközlekedési lehetőségek (pl 3, 2B, 51, 52 villamosok, 35, 66, 119, 166, 223, 224 buszok, H6-os HÉV) is könnyen elérhetők, így a mindennapi élet kényelmesen szervezhető.
Ez a lakás ideális választás mindazok számára, akik nyugodt, rendezett környezetben, mégis jó megközelíthetőséggel keresnek praktikus, bővíthető otthont.
Ne hagyja ki, hívjon bizalommal, és tekintse meg személyesen!
Hitelre van szüksége? Bankfüggetlen kollégáim díjmentesen segítenek a legjobb megoldás megtalálásában.
Az ingatlan az Otthon Centrum egyedülálló felezőcsomagjában érhető el. További részletek a honlapon: https://www.oc.hu/felezocsomag
Regisztrációs szám
H512224
Az ingatlan adatai
Értékesités
eladó
Jogi státusz
használt
Jelleg
lakás
Építési mód
tégla
Méret
37 m²
Bruttó méret
39 m²
Terasz / erkély mérete
10 m²
Fűtés
gázkonvektor
Belmagasság
280 cm
Tájolás
Észak
Panoráma
városi panoráma
Lépcsőház típusa
nincs
Állapot
Jó
Homlokzat állapota
Átlagos
Lépcsőház állapota
Jó
Pince
Önálló
Környék
jó közlekedés, központi
Építés éve
1953
Fürdőszobák száma
1
Fekvés
udvari
Víz
Van
Gáz
Van
Villany
Van
Csatorna
Van
Kertkapcsolatos
igen
Tároló
Önálló
Helyiségek
előszoba
6.9 m²
konyha
6.6 m²
szoba
18 m²
fürdőszoba-wc
2.5 m²
Joó Krisztina
Hitelszakértő