Elérhető Otthon Start hitellel
Eladó családi ház,
H511927
Cegléd
115 000 000 Ft
304 000 €
- 210m²
- 6 szoba
Fedezze fel álmai otthonát Cegléden! 6 szobás ház várja Önt!
Cegléd szívében, ahol a nyugalom és a modern életstílus találkozik keresi új lakóit egy három szintes, két generációssá alakítható ingatlan!
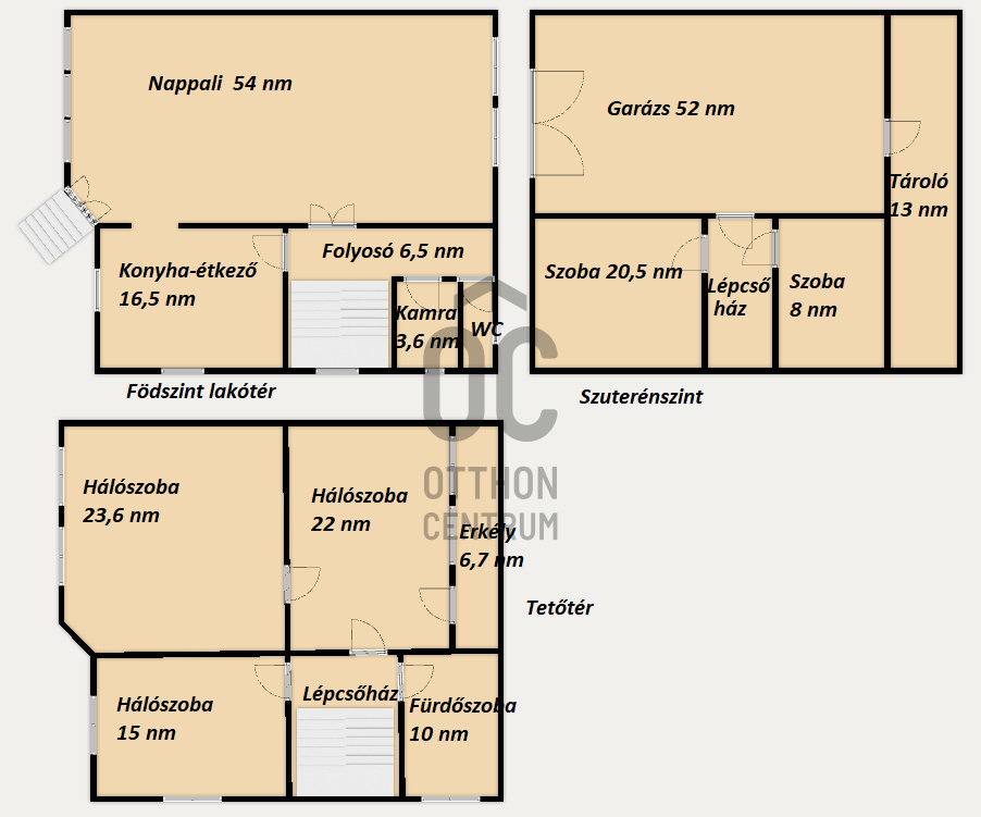
Ez a 198 nm hasznos lakóterületű ház ideális választás lehet nagy családok és befektetők számára egyaránt. A 503 nm-es telken elhelyezkedő ingatlan 6 szobával és 1 fürdőszobával rendelkezik, amely tágas teret kínál a mindennapi élethez. Az ingatlan jó állapotban van, így azonnal költözhető, a gáz (cirko) fűtés és klímaberendezés pedig a kényelmes hőmérsékletről gondoskodik a legmelegebb nyári napokon is. A házhoz tartozik egy 6.8 nm-es erkély, mely ideális helyszín a reggeli kávé elfogyasztásához vagy egy kellemes esti pihenéshez. A garázsban két autó kényelmesen elfér, így a parkolás soha nem lesz probléma. Az ingatlan elhelyezkedése kiemelkedő, hiszen Cegléd városának csendes, mégis jól megközelíthető részén található, ahol a természet közelsége és a városi élet előnyei harmonikusan egyesülnek. A tömegközlekedési lehetőségek is kiválóak, hiszen, könnyedén elérheti Budapestet a Nyugat-Szolnok vasútvonal által.
Ingatlan leírás:
-tégla falazat, cserepes tető fedés,
-198 nm hasznos lakótér,
-szuterén szinten: 2 szoba, tároló, két beállásos garázs,
-magas földszinten: tágas nappali, tágas konyha, kamra, illem helyiség, lépcsőház,
-tetőtér: 3 hálószoba, tágas fürdőszoba,
-gázcirkóval, vegyes kazánnal ellátott radiátoros fűtés,
-cserépkályha alternatív fűtés megoldásnak,
-503 nm-es körbekerített porta,
Ha bármilyen kérdése van, ne habozzon kapcsolatba lépni velem! Szívesen segítek Önnek az ingatlan megtekintésében, és válaszolok minden felmerülő kérdésére.
Az ingatlanpiac dinamikusan változik, ezért érdemes minél előbb lépnie!
Ha hitelre van szüksége, irodánkban teljes körű ügyintézéssel, ingyenes és bankfüggetlen hitelközvetítéssel várjuk.
A hirdetésben szereplő információk a megbízótól kapott adatok alapján készültek, pontosságukért felelősséget nem vállalunk!
Ez a 198 nm hasznos lakóterületű ház ideális választás lehet nagy családok és befektetők számára egyaránt. A 503 nm-es telken elhelyezkedő ingatlan 6 szobával és 1 fürdőszobával rendelkezik, amely tágas teret kínál a mindennapi élethez. Az ingatlan jó állapotban van, így azonnal költözhető, a gáz (cirko) fűtés és klímaberendezés pedig a kényelmes hőmérsékletről gondoskodik a legmelegebb nyári napokon is. A házhoz tartozik egy 6.8 nm-es erkély, mely ideális helyszín a reggeli kávé elfogyasztásához vagy egy kellemes esti pihenéshez. A garázsban két autó kényelmesen elfér, így a parkolás soha nem lesz probléma. Az ingatlan elhelyezkedése kiemelkedő, hiszen Cegléd városának csendes, mégis jól megközelíthető részén található, ahol a természet közelsége és a városi élet előnyei harmonikusan egyesülnek. A tömegközlekedési lehetőségek is kiválóak, hiszen, könnyedén elérheti Budapestet a Nyugat-Szolnok vasútvonal által.
Ingatlan leírás:
-tégla falazat, cserepes tető fedés,
-198 nm hasznos lakótér,
-szuterén szinten: 2 szoba, tároló, két beállásos garázs,
-magas földszinten: tágas nappali, tágas konyha, kamra, illem helyiség, lépcsőház,
-tetőtér: 3 hálószoba, tágas fürdőszoba,
-gázcirkóval, vegyes kazánnal ellátott radiátoros fűtés,
-cserépkályha alternatív fűtés megoldásnak,
-503 nm-es körbekerített porta,
Ha bármilyen kérdése van, ne habozzon kapcsolatba lépni velem! Szívesen segítek Önnek az ingatlan megtekintésében, és válaszolok minden felmerülő kérdésére.
Az ingatlanpiac dinamikusan változik, ezért érdemes minél előbb lépnie!
Ha hitelre van szüksége, irodánkban teljes körű ügyintézéssel, ingyenes és bankfüggetlen hitelközvetítéssel várjuk.
A hirdetésben szereplő információk a megbízótól kapott adatok alapján készültek, pontosságukért felelősséget nem vállalunk!
Regisztrációs szám
H511927
Az ingatlan adatai
Értékesités
eladó
Jogi státusz
használt
Jelleg
ház
Építési mód
tégla
Méret
210 m²
Bruttó méret
240 m²
Telek méret
503 m²
Terasz / erkély mérete
6,8 m²
Fűtés
Gáz cirkó
Belmagasság
270 cm
Tájolás
Dél-kelet
Állapot
Jó
Homlokzat állapota
Jó
Pince
Önálló
Környék
csendes, jó közlekedés, központi
Építés éve
1988
Fürdőszobák száma
1
Garázs
Benne van az árban
Garázs férőhely
2
Víz
Van
Gáz
Van
Villany
Van
Csatorna
Van
Tároló
Önálló
Helyiségek
konyha
16.48 m²
nappali-étkező
54.12 m²
közlekedő
6.58 m²
kamra
3.64 m²
wc-kézmosó
2.28 m²
lépcsőház
5.25 m²
közlekedő
2.3 m²
hálószoba
14.85 m²
fürdőszoba-wc
9.9 m²
hálószoba
22 m²
hálószoba
23.63 m²
lépcsőház
7.84 m²
szoba
8.1 m²
szoba
20.56 m²