126 000 000 Ft
327 000 €
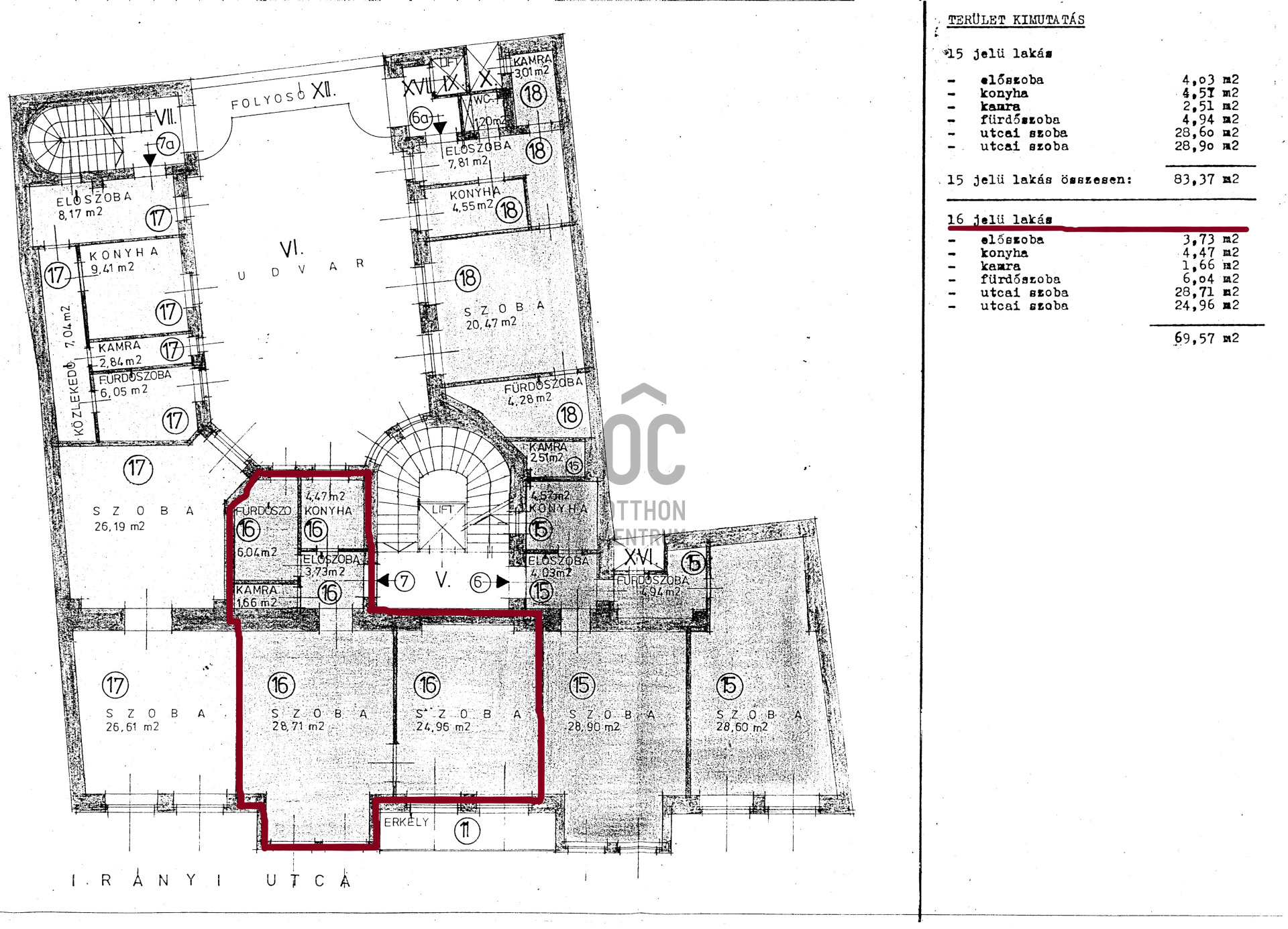
- 70m²
- 2 szoba
- 2. emelet
Felújítandó lakást keres a belvárosban, közel a Duna-parthoz? Megtalálta!
Eladó Budapest V. kerületében, az Irányi utcában egy gyönyörűen felújított műemlék ház 2. emeletén egy 2 szobás felújítandó lakás. Varázsoljon egy álomotthont, ebből a SZÉP ÉPÜLETBEN LÉVŐ, tágas lakásból és éljen Budapest szívében.
A környék kifejezetten elegáns, a Lechner Ödön által tervezett ház 1 percnyire van a Váci utcától. Az utcában exkluzív boltok, éttermek, és minden más is megtalálható, amelyek tovább növelik a kellemes életérzést.
A 70 m2-es, 2 szobás, Irányi utca egyik legszebb épületében található. Amennyiben saját ízlésére alakítaná következő otthonát vagy befektetési célból vásárolná, ez a számára ideális ingatlan.
Az ingatlanról:
-Az ingatlan a LIFTES ház 2. EMELETÉN található, minden szobájának az ablaka utcára néz.
-Az új gázcirkó, ami a fűtést és a meleg víz előállítására szolgál.
-Az ingatlan per és tehermentes, 1/1-es tulajdonban van
-Az ingatlan állapota felújítandó.
A lakóház:
-A lakóház homlokzata nagyon szép.
-A lakóház körfolyosós
-LIFT VAN!
A környék:
-Kimagaslóan jó tömegközlekedési lehetőség a 3 perc séta távolságra található Ferenciek teréről. 3-as metró és számtalan buszjárat elérhető a megállóból.
-4 perc sétára található a Jane Haining rakpart, ahonnan bármikor gyönyörködhetünk a Duna és a Budai oldal szépségében.
-A lakóház aljában található egy patika, de 5 perc séta távolságon belül, könnyen elérhető nagyobb szupermarket is.
-A környéken és a lakóház közvetlen szomszédságában számos kávézó, étterem és pub is található.
A Lechner Ödön által tervezett és a Grünwald testvérek által kivitelezett, 1911-eben átadott szecessziós épület a korabeli bérházak között luxuskivitelűnek számított. Nemcsak korszerű villanyvilágítással és fürdőszobákkal szerelték fel, de központi porszívó-berendezéssel is. Ez a ház az építész utolsó autentikus műve. Belépve a szürke és sötétzöld Zsolnay csempeborítású előtérbe, két oldalt halványkék virágos stukkók között, oldalt csiszolt tükör négyzetek fokozzák a szépség élményét.
Amennyiben felkeltettem érdeklődését kérem forduljon hozzám bizalommal!
A környék kifejezetten elegáns, a Lechner Ödön által tervezett ház 1 percnyire van a Váci utcától. Az utcában exkluzív boltok, éttermek, és minden más is megtalálható, amelyek tovább növelik a kellemes életérzést.
A 70 m2-es, 2 szobás, Irányi utca egyik legszebb épületében található. Amennyiben saját ízlésére alakítaná következő otthonát vagy befektetési célból vásárolná, ez a számára ideális ingatlan.
Az ingatlanról:
-Az ingatlan a LIFTES ház 2. EMELETÉN található, minden szobájának az ablaka utcára néz.
-Az új gázcirkó, ami a fűtést és a meleg víz előállítására szolgál.
-Az ingatlan per és tehermentes, 1/1-es tulajdonban van
-Az ingatlan állapota felújítandó.
A lakóház:
-A lakóház homlokzata nagyon szép.
-A lakóház körfolyosós
-LIFT VAN!
A környék:
-Kimagaslóan jó tömegközlekedési lehetőség a 3 perc séta távolságra található Ferenciek teréről. 3-as metró és számtalan buszjárat elérhető a megállóból.
-4 perc sétára található a Jane Haining rakpart, ahonnan bármikor gyönyörködhetünk a Duna és a Budai oldal szépségében.
-A lakóház aljában található egy patika, de 5 perc séta távolságon belül, könnyen elérhető nagyobb szupermarket is.
-A környéken és a lakóház közvetlen szomszédságában számos kávézó, étterem és pub is található.
A Lechner Ödön által tervezett és a Grünwald testvérek által kivitelezett, 1911-eben átadott szecessziós épület a korabeli bérházak között luxuskivitelűnek számított. Nemcsak korszerű villanyvilágítással és fürdőszobákkal szerelték fel, de központi porszívó-berendezéssel is. Ez a ház az építész utolsó autentikus műve. Belépve a szürke és sötétzöld Zsolnay csempeborítású előtérbe, két oldalt halványkék virágos stukkók között, oldalt csiszolt tükör négyzetek fokozzák a szépség élményét.
Amennyiben felkeltettem érdeklődését kérem forduljon hozzám bizalommal!
Regisztrációs szám
H511753
Az ingatlan adatai
Értékesités
eladó
Jogi státusz
használt
Jelleg
lakás
Építési mód
tégla
Méret
70 m²
Bruttó méret
70 m²
Fűtés
Gáz cirkó
Belmagasság
350 cm
Tájolás
Észak-nyugat
Lépcsőház típusa
körfolyosó
Állapot
Felújítandó
Homlokzat állapota
Kiváló
Lépcsőház állapota
Jó
Pince
Közös
Környék
csendes, jó közlekedés, központi
Építés éve
1900
Fürdőszobák száma
1
Fekvés
utcai
Közös költség
25000
Víz
Van
Gáz
Van
Villany
Van
Csatorna
Van
Lift
van
Tároló
Önálló
Helyiségek
nappali
28.71 m²
hálószoba
24.96 m²
fürdőszoba-wc
6.04 m²
előszoba
3.73 m²
konyha
4.47 m²
kamra
1.66 m²
Pongó Miklós
Hitelszakértő