Elérhető Otthon Start hitellel
Eladó családi ház,
H511416
Marcali
51 900 000 Ft
137 000 €
- 145m²
- 6 szoba
Eladó kétszintes, kétlakásos, tégla családi ház Marcali csendes, déli városrészében
Somogy megyében, Marcali déli csendes, barátságos városrészében kínáljuk eladásra ezt a két szintes, téglaépítésű, szigetelt családi házat eladásra, amely két külön lakrészből áll.
3 % Otthon Start igénybe vehető!
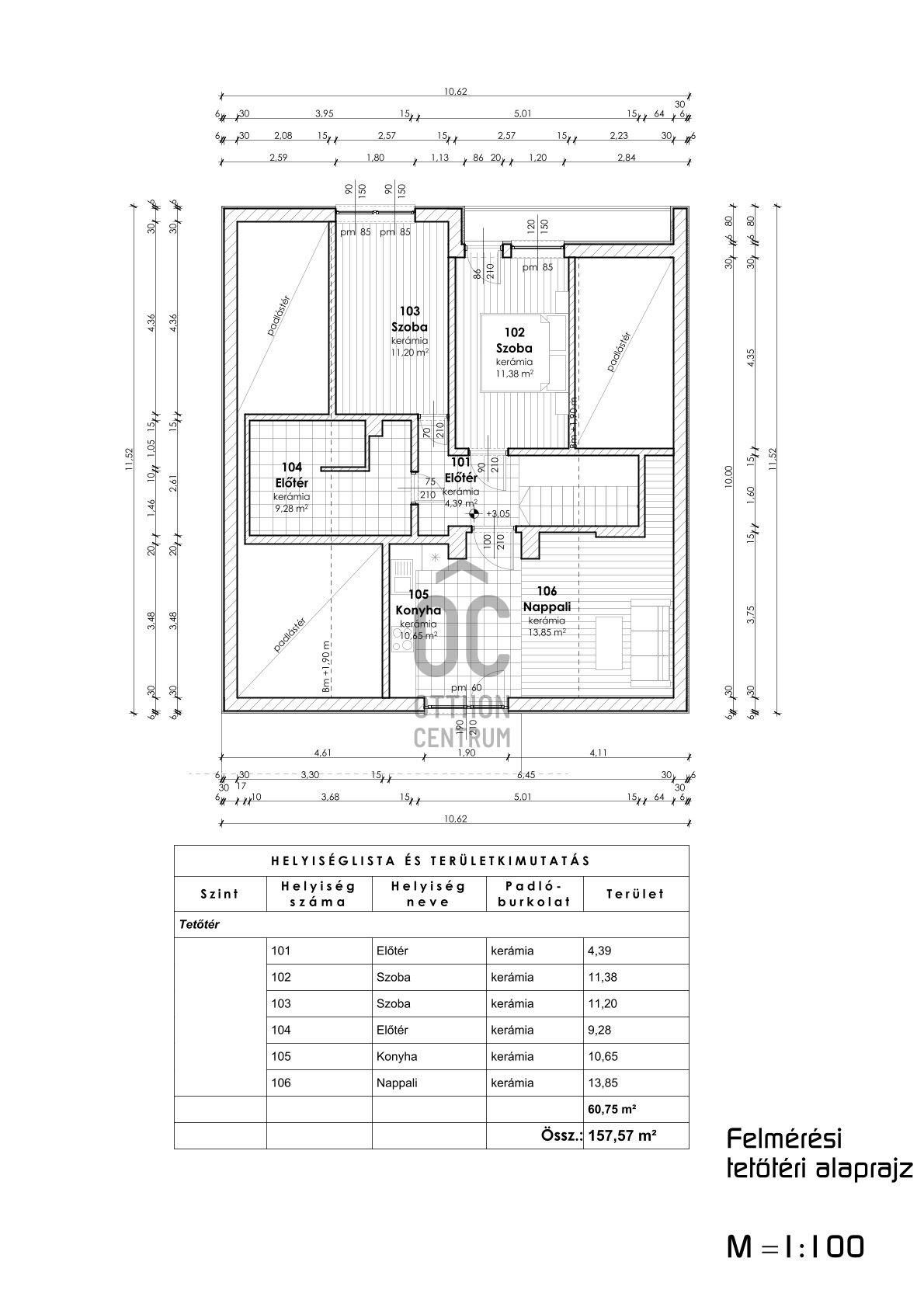
A két szinten található 157 nm alapterület ideális választás lehet nagyobb családok számára, több generáció együttélésre . A 4 szoba+ 2 nappali elrendezés maximális kényelmet biztosít. A házhoz tartozó 1.397 nm telek nagyobb családi összejövetelek helyszínéül szolgálhat és gyermekek szabad játékának is tökéletes teret ad. Az épület részleges felújítása megkezdődött. Fűtése gáz cirkó rendszerrel és vegyes tüzelésű kazánnal , hűtése pedig klímával biztosított. A környék csendes és biztonságos, ideális választás a gyermekes családok számára.
Az ingatlan fontosabb jellemzői:
- 80-as években épült 2 szintes családi ház
- masszív, tégla épület, kiváló statikai állapot, külső 6 cm vastag szigeteléssel
- 157 nm hasznos alapterület
- a két külön bejáratú lakrész
- helyiségek: 2 fürdőszoba és 2 konyha, 2 nappali és 4 hálószoba, amely ideális nagy családnak vagy többgenerációs együttéléshez
- tágas teraszok teszik élhetőbbé az épületet ,
- központi fűtés ( vegyes ás gázkazán), gazdaságos üzemeltetés
- eredeti fa nyílászárók, az emeleten részen részben műanyag ablakok már cserélve lettek
- cseréptető
- ipari áram
-a gondozott telek, 1.397 nm nagyságú
- számtalan gyümölcsfa növeli a kert értékét ( őszibarack, dió, körte, alma, szilva)
- kertészkedésre, veteményes kialakítására, BIO gazdálkodásra is kiváló lehetőség
- pince és több melléképület áll rendelkezésre (dupla garázs, tárolók, műhely, kazánház)
Nyugodt, csendes környék, kiváló lakóhely. Ez a ház kényelmes, praktikusan kialakított otthon, amely ideális nagyobb családoknak, vállalkozásra vagy akár bérbeadásra is.
Marcali városa számos lehetőséget kínál, a város központja mindössze néhány percnyi távolságra található, ahol üzletek, iskolák és egészségügyi intézmények várják. Az ingatlan befektetési szempontból is kedvező, hiszen a város fejlődése és a környék infrastruktúrájának folyamatos bővítése biztosítja az értékállóságot.
Ne hagyja ki ezt a lehetőséget! Lépjen kapcsolatba velünk a megtekintésért és további információért!
Az adatok tájékoztató jellegűek.
3 % Otthon Start igénybe vehető!
A két szinten található 157 nm alapterület ideális választás lehet nagyobb családok számára, több generáció együttélésre . A 4 szoba+ 2 nappali elrendezés maximális kényelmet biztosít. A házhoz tartozó 1.397 nm telek nagyobb családi összejövetelek helyszínéül szolgálhat és gyermekek szabad játékának is tökéletes teret ad. Az épület részleges felújítása megkezdődött. Fűtése gáz cirkó rendszerrel és vegyes tüzelésű kazánnal , hűtése pedig klímával biztosított. A környék csendes és biztonságos, ideális választás a gyermekes családok számára.
Az ingatlan fontosabb jellemzői:
- 80-as években épült 2 szintes családi ház
- masszív, tégla épület, kiváló statikai állapot, külső 6 cm vastag szigeteléssel
- 157 nm hasznos alapterület
- a két külön bejáratú lakrész
- helyiségek: 2 fürdőszoba és 2 konyha, 2 nappali és 4 hálószoba, amely ideális nagy családnak vagy többgenerációs együttéléshez
- tágas teraszok teszik élhetőbbé az épületet ,
- központi fűtés ( vegyes ás gázkazán), gazdaságos üzemeltetés
- eredeti fa nyílászárók, az emeleten részen részben műanyag ablakok már cserélve lettek
- cseréptető
- ipari áram
-a gondozott telek, 1.397 nm nagyságú
- számtalan gyümölcsfa növeli a kert értékét ( őszibarack, dió, körte, alma, szilva)
- kertészkedésre, veteményes kialakítására, BIO gazdálkodásra is kiváló lehetőség
- pince és több melléképület áll rendelkezésre (dupla garázs, tárolók, műhely, kazánház)
Nyugodt, csendes környék, kiváló lakóhely. Ez a ház kényelmes, praktikusan kialakított otthon, amely ideális nagyobb családoknak, vállalkozásra vagy akár bérbeadásra is.
Marcali városa számos lehetőséget kínál, a város központja mindössze néhány percnyi távolságra található, ahol üzletek, iskolák és egészségügyi intézmények várják. Az ingatlan befektetési szempontból is kedvező, hiszen a város fejlődése és a környék infrastruktúrájának folyamatos bővítése biztosítja az értékállóságot.
Ne hagyja ki ezt a lehetőséget! Lépjen kapcsolatba velünk a megtekintésért és további információért!
Az adatok tájékoztató jellegűek.
Regisztrációs szám
H511416
Az ingatlan adatai
Értékesités
eladó
Jogi státusz
használt
Jelleg
ház
Építési mód
tégla
Méret
145 m²
Bruttó méret
187 m²
Telek méret
1 397 m²
Terasz / erkély mérete
30 m²
Fűtés
Gáz cirkó
Belmagasság
250 cm
Lakáson belüli szintszám
2
Tájolás
Dél-nyugat
Állapot
Jó
Homlokzat állapota
Jó
Pince
Önálló
Építés éve
1985
Fürdőszobák száma
2
Garázs
Benne van az árban
Garázs férőhely
2
Víz
Van
Gáz
Van
Villany
Van
Csatorna
Van
Tároló
Önálló
Vízpart távolsága
több mint 500 méterre
Helyiségek
közlekedő
5.76 m²
nappali
22.2 m²
szoba
21.75 m²
közlekedő
5.96 m²
konyha-étkező
12.72 m²
fürdőszoba
6.98 m²
wc
1.35 m²
egyéb helyiség
2.92 m²
szoba
17.18 m²
terasz
10 m²
közlekedő
4.39 m²
konyha-étkező
10.65 m²
nappali
13.85 m²
szoba
11.2 m²
terasz
8.5 m²
szoba
11.38 m²
erkély
2 m²
fürdőszoba-wc
9.28 m²
Edve János
Hitelszakértő