Elérhető Otthon Start hitellel
Eladó családi ház,
H511312
Kápolnásnyék
51 900 000 Ft
139 000 €
- 62,4m²
- 3 szoba
Vidék bája, város közelsége – otthon Kápolnásnyéken, a Velencei-tó ölelésében
Nyugalomra vágysz, de fontos számodra a nagyobb városok közelsége? A rohanó mindennapokból ide élmény hazatérni, megpihenni.
A ház egyik legnagyobb erőssége az elhelyezkedése (csendes zsákutcában). A központ gyalogosan is könnyen elérhető, mégis nyugodt, zöld környezet veszi körül az otthont, erdőszéli hangulatot árasztva.
A tágas kert ideális lehet akár családi gazdálkodásra, pihenőkert kialakítására, gyerekek búvóhelyének, vagy az egyik részén akár állattartásra is (mely szabályozás szerint engedélyezett) Egy ásott kút is rendelkezésedre áll, amely a gazdálkodó élet alapja lehet.
Itt mindemellett a szomszéd sem szól, ha netán családi vagy baráti összejövetelt tartasz.
Ez az 1970-es években épült, vályogból készült ház nem csupán egy épület – lehetőség egy új életformára, ahol a természet közelsége, a nyugalom és a vidéki élet mindennapi valósággá válik. A ház karbantartott, száraz, szerkezetileg stabil.
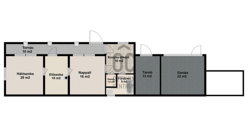
A 62 m²-es lakótér három szobával, konyhával, kamrával és fürdőszobával rendelkezik. A tornác kiváló lehetőség a pihenésre, de akár beépítve világosabb, tágasabb belső teret is kialakíthatsz vele.
Az 1975 m²-es telek valójában egy hatalmas, zöld ölelés. Jelenleg kb. 1000 m² kerített részen szőlő, magas ágyás vár rád. Ezen a kisebb területen kellemes szabadtéri családi tér könnyedén kialakítható ahol a gyerekek biztonsàgban szórakozhatnak, míg a felnőttek megpihenhetnek.
A 22 m²-es zárt garázs, a 13 m²-es külső tároló, valamint a ház bővíthetősége és a tetőtér beépíthetősége további lehetőségeket biztosít.
Műszaki információk:
•Tetőszerkezet: Masszív, fa gerendás szerkezet betonfödémmel, néhány évvel ezelőtt felújítva – napelem kompatibilis
•Felújítások: A teljes vízhálózat korszerűsítve lett modern csövekkel. A villamos hálózat még a korábbi rendszer szerint működik, felújítása a leendő tulajdonosra vár.
•Közművek: Víz, villany, gáz bevezetve. Az ingatlan emésztővel rendelkezik.
•Fűtés: Gázkonvektor és kályha biztosítja a meleget. A meleg vizet villanybojler szolgáltatja.
•Fürdőszobai burkolatok felújítás alatt
A vályogfalazat természetes hőszigetelő képességének köszönhetően kellemes klímát biztosít egész évben – energiatakarékos és környezetbarát megoldás azoknak, akik értékelik a fenntarthatóbb életformát.
Lokáció – ahol minden közel van
Kápolnásnyék nemcsak szép, hanem praktikus választás is. Óvoda, iskola, bölcsőde, orvosi rendelő, bolt, pékség, kisebb-nagyobb bevásárlási lehetőségek – minden pár perc sétára vagy rövid autóútra található. A Velencei-tó tíz perc kényelmes sétával elérhető, a Velencei vasútállomás 900 méterre található, az M7-es autópálya és a 7-es főút pedig csupán egy karnyújtásnyira van. Így a főváros és Székesfehérvár is elérhető közelségben marad, miközben te már egy nyugodtabb világban élhetsz.
Ez az otthon tehermentes és a lehetőségek tárháza: lehet belőle csendes családi fészek, gazdálkodó otthon vagy akár különleges vendégház is.
Ha készen állsz arra, hogy beleszeress egy házba, amely több, mint téglák és falak, akkor hívj bizalommal! Rugalmasan megtekinthető, és minden segítséget megadok ahhoz, hogy megvalósuljon álmaid otthona.
Amennyiben meglévő ingatlanod eladásához vagy hitelügyintézéshez segítségre van szükséged, az Otthon Centrum megbízható partnerként áll melletted – teljes körű, díjmentes szolgáltatással.
A ház egyik legnagyobb erőssége az elhelyezkedése (csendes zsákutcában). A központ gyalogosan is könnyen elérhető, mégis nyugodt, zöld környezet veszi körül az otthont, erdőszéli hangulatot árasztva.
A tágas kert ideális lehet akár családi gazdálkodásra, pihenőkert kialakítására, gyerekek búvóhelyének, vagy az egyik részén akár állattartásra is (mely szabályozás szerint engedélyezett) Egy ásott kút is rendelkezésedre áll, amely a gazdálkodó élet alapja lehet.
Itt mindemellett a szomszéd sem szól, ha netán családi vagy baráti összejövetelt tartasz.
Ez az 1970-es években épült, vályogból készült ház nem csupán egy épület – lehetőség egy új életformára, ahol a természet közelsége, a nyugalom és a vidéki élet mindennapi valósággá válik. A ház karbantartott, száraz, szerkezetileg stabil.
A 62 m²-es lakótér három szobával, konyhával, kamrával és fürdőszobával rendelkezik. A tornác kiváló lehetőség a pihenésre, de akár beépítve világosabb, tágasabb belső teret is kialakíthatsz vele.
Az 1975 m²-es telek valójában egy hatalmas, zöld ölelés. Jelenleg kb. 1000 m² kerített részen szőlő, magas ágyás vár rád. Ezen a kisebb területen kellemes szabadtéri családi tér könnyedén kialakítható ahol a gyerekek biztonsàgban szórakozhatnak, míg a felnőttek megpihenhetnek.
A 22 m²-es zárt garázs, a 13 m²-es külső tároló, valamint a ház bővíthetősége és a tetőtér beépíthetősége további lehetőségeket biztosít.
Műszaki információk:
•Tetőszerkezet: Masszív, fa gerendás szerkezet betonfödémmel, néhány évvel ezelőtt felújítva – napelem kompatibilis
•Felújítások: A teljes vízhálózat korszerűsítve lett modern csövekkel. A villamos hálózat még a korábbi rendszer szerint működik, felújítása a leendő tulajdonosra vár.
•Közművek: Víz, villany, gáz bevezetve. Az ingatlan emésztővel rendelkezik.
•Fűtés: Gázkonvektor és kályha biztosítja a meleget. A meleg vizet villanybojler szolgáltatja.
•Fürdőszobai burkolatok felújítás alatt
A vályogfalazat természetes hőszigetelő képességének köszönhetően kellemes klímát biztosít egész évben – energiatakarékos és környezetbarát megoldás azoknak, akik értékelik a fenntarthatóbb életformát.
Lokáció – ahol minden közel van
Kápolnásnyék nemcsak szép, hanem praktikus választás is. Óvoda, iskola, bölcsőde, orvosi rendelő, bolt, pékség, kisebb-nagyobb bevásárlási lehetőségek – minden pár perc sétára vagy rövid autóútra található. A Velencei-tó tíz perc kényelmes sétával elérhető, a Velencei vasútállomás 900 méterre található, az M7-es autópálya és a 7-es főút pedig csupán egy karnyújtásnyira van. Így a főváros és Székesfehérvár is elérhető közelségben marad, miközben te már egy nyugodtabb világban élhetsz.
Ez az otthon tehermentes és a lehetőségek tárháza: lehet belőle csendes családi fészek, gazdálkodó otthon vagy akár különleges vendégház is.
Ha készen állsz arra, hogy beleszeress egy házba, amely több, mint téglák és falak, akkor hívj bizalommal! Rugalmasan megtekinthető, és minden segítséget megadok ahhoz, hogy megvalósuljon álmaid otthona.
Amennyiben meglévő ingatlanod eladásához vagy hitelügyintézéshez segítségre van szükséged, az Otthon Centrum megbízható partnerként áll melletted – teljes körű, díjmentes szolgáltatással.
Regisztrációs szám
H511312
Az ingatlan adatai
Értékesités
eladó
Jogi státusz
használt
Jelleg
ház
Építési mód
vályog
Méret
62,4 m²
Bruttó méret
74,8 m²
Telek méret
1 975 m²
Terasz / erkély mérete
11,5 m²
Fűtés
gázkonvektor
Belmagasság
260 cm
Tájolás
Kelet
Panoráma
Zöldre néző panoráma
Állapot
Átlagos
Homlokzat állapota
Átlagos
Környék
csendes, jó közlekedés, zöld
Építés éve
1970
Fürdőszobák száma
1
Garázs
Benne van az árban
Garázs férőhely
1
Fedett beállók száma
1
Víz
Van
Gáz
Van
Villany
Van
Tároló
Önálló
Helyiségek
szoba
20 m²
szoba
10 m²
nappali
16 m²
fürdőszoba-wc
5 m²
konyha-étkező
10 m²
terasz
11.5 m²
kamra
1.4 m²
Várnai Zoltán Jenő
Hitelszakértő