Elérhető Otthon Start hitellel
Eladó családi ház,
H510739
Tiszacsege
26 000 000 Ft
69 000 €
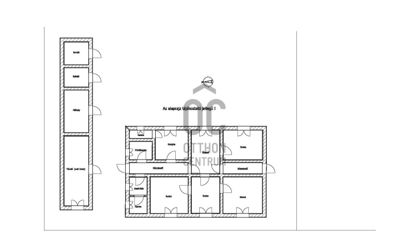
- 133,8m²
- 5 szoba
Tiszacsege - where tranquility finds a home
Tiszacsege is a quiet, friendly settlement nestled between the Hortobágy and the Tisza River, offering both tranquility and excellent recreational opportunities. The atmosphere of the town is defined by the proximity of the Tisza, the natural values, and the charm of the characteristic Great Plain landscape. The area is a popular destination for anglers, nature lovers, and those seeking relaxation by the water. The local thermal beach, with its healing waters, attracts visitors year-round, and the settlement provides all essential services: shops, pharmacies, medical care, kindergartens, schools, and restaurants are available for residents. The famous Tiszacsege fish soup offers a unique gastronomic experience.
The area serves as an excellent starting point for excursions, cycling, and boat tours, while the proximity of the Hortobágy ensures unparalleled natural sights. Thus, Tiszacsege is an ideal choice for those looking to find a home in a peaceful, livable settlement by the Tisza River.
In this settlement, we offer for sale a well-located, continuously maintained family house with five rooms, equipped with all utilities and central heating, situated on a spacious corner plot. The rooms are covered with laminate and ship flooring, while the other areas have mosaic stone covering. The plot also includes a separate small building, currently functioning as a workshop and storage space, but it can be developed into an independent living area. The arched cellar is excellent for storing vegetables and fruits, while the spacious, tidy courtyard provides a pleasant opportunity to spend leisure time in the fresh village air.
The property is an ideal choice for anyone who would enjoy living in a charming, riverside, true Great Plain settlement. If we have piqued your interest or if you have any questions regarding the property, we are at your service!
The area serves as an excellent starting point for excursions, cycling, and boat tours, while the proximity of the Hortobágy ensures unparalleled natural sights. Thus, Tiszacsege is an ideal choice for those looking to find a home in a peaceful, livable settlement by the Tisza River.
In this settlement, we offer for sale a well-located, continuously maintained family house with five rooms, equipped with all utilities and central heating, situated on a spacious corner plot. The rooms are covered with laminate and ship flooring, while the other areas have mosaic stone covering. The plot also includes a separate small building, currently functioning as a workshop and storage space, but it can be developed into an independent living area. The arched cellar is excellent for storing vegetables and fruits, while the spacious, tidy courtyard provides a pleasant opportunity to spend leisure time in the fresh village air.
The property is an ideal choice for anyone who would enjoy living in a charming, riverside, true Great Plain settlement. If we have piqued your interest or if you have any questions regarding the property, we are at your service!
Regisztrációs szám
H510739
Az ingatlan adatai
Értékesités
eladó
Jogi státusz
használt
Jelleg
ház
Építési mód
vegyesfalazatú
Méret
133,8 m²
Bruttó méret
148 m²
Telek méret
1 121 m²
Fűtés
vegyestüzelésű kazán
Belmagasság
276 cm
Tájolás
Dél-nyugat
Állapot
Átlagos
Homlokzat állapota
Átlagos
Pince
Önálló
Környék
csendes, jó közlekedés, központi
Építés éve
1950
Fürdőszobák száma
1
Víz
Van
Gáz
Van
Villany
Van
Csatorna
Van
Tároló
Önálló
Helyiségek
közlekedő
7.48 m²
fürdőszoba-wc
4.75 m²
konyha
11.33 m²
konyha
11.33 m²
nappali-étkező
13 m²
szoba
15.19 m²
szoba
15.7 m²
szoba
11.9 m²
szoba
15.8 m²
közlekedő
5.8 m²
kamra
2.37 m²
kazánház
3.6 m²
kamra
3.4 m²
tároló
7.36 m²
tároló
4.5 m²
raktár
5.5 m²
raktár
6.09 m²
Pomaházi Pál
Hitelszakértő