Eladó panel lakás, H510059
Budapest XI. kerület, Kelenföld, Allende park

89 900 000 Ft

236 000 €

  • 48m²
  • 2 szoba
  • 2. emelet
Felező megbízás

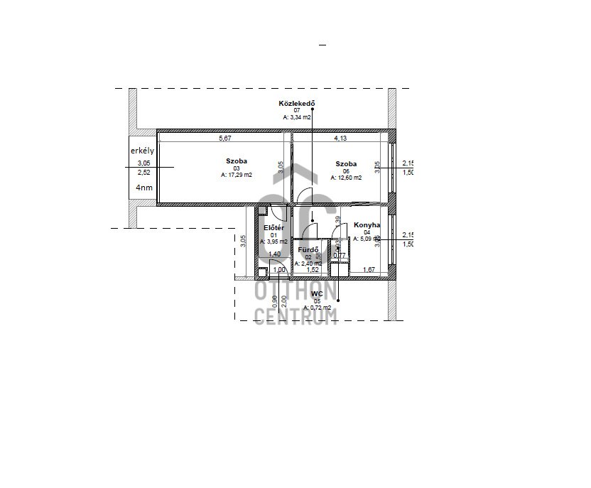
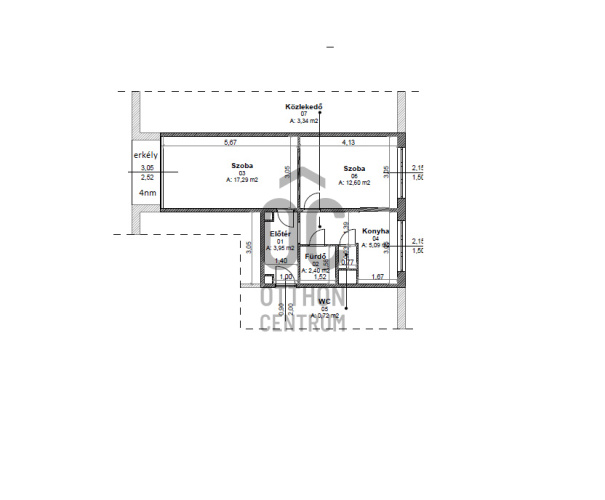
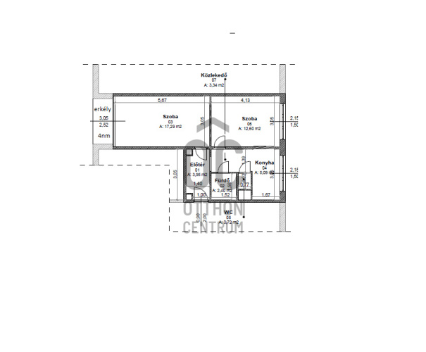
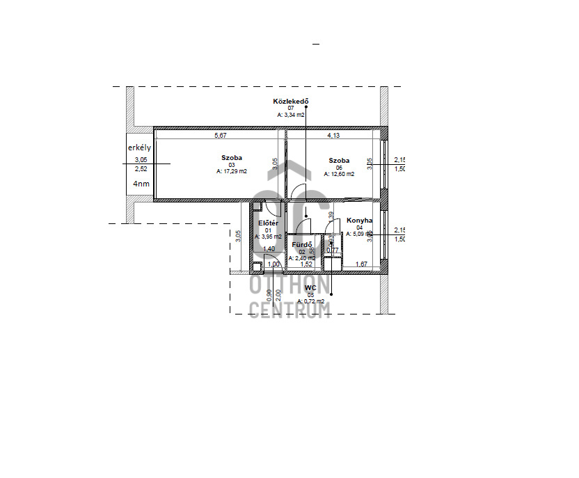
Eladó 2 szobás lakás Allende parkban.

Fedezze fel az új otthonát az Allende parknál, a XI. kerületben! Ez a modern, felújítás alatt álló lakás már felújítás után azonnal költözhető.
Egyedülálló, újragondolt alaprajzának köszönhetően praktikus terek és jól átgondolt elosztás várja az új lakót. A jó hír: ide csak bőröndöt kell hoznia, minden más már megoldott!

Ideális választás azok számára, akik modern, kényelmes és azonnali költözést kívánnak. Tegye meg az első lépést új otthona felé még ma!

Regisztrációs szám

H510059

Az ingatlan adatai

Értékesités
eladó
Jogi státusz
használt
Jelleg
lakás
Építési mód
panel
Méret
48 m²
Bruttó méret
50 m²
Terasz / erkély mérete
4 m²
Fűtés
távfűtés
Belmagasság
270 cm
Lakáson belüli szintszám
1
Tájolás
Nyugat
Lépcsőház típusa
zárt lépcsőház
Állapot
Kiváló
Homlokzat állapota
Kiváló
Lépcsőház állapota
Kiváló
Pince
Közös
Környék
csendes, jó közlekedés
Építés éve
1970
Fürdőszobák száma
1
Fekvés
udvari
Víz
Van
Gáz
Van
Villany
Van
Csatorna
Van
Tároló
Önálló

Helyiségek

nappali
17.2 m²
konyha
5.09 m²
erkély
4 m²
fürdőszoba
2.4 m²
előszoba
3.95 m²
Ruczek János
Ruczek János

Hitelszakértő

Irodánk kínálatából - XI. kerület - Gellért tér

kiadó lakás

Index image
9

eladó családi ház

Index image
19

kiadó kereskedelmi ingatlan

Index image
9

eladó lakás

Index image
9

eladó lakás

Index image
19

eladó lakás

Index image
21

eladó családi ház

Index image
15

eladó lakás

Index image
6

eladó családi ház

Index image
Elérhető Otthon Start hitellel
19

eladó lakás

Index image
14

eladó lakás

Index image
21