Elérhető Otthon Start hitellel
Eladó családi ház, H509790
Tiszafüred

29 900 000 Ft

78 000 €

  • 130,9m²
  • 4 szoba
Kiemelt megbízás

For sale: a three-story vacation home nearing completion in the resort area of Tiszafüred, just 500 meters from Lake Tisza!

The property is located in one of the most dynamically developing towns in Jász-Nagykun-Szolnok County, in the holiday area of Tiszafüred, close to the free beach, yet in a quiet neighborhood.
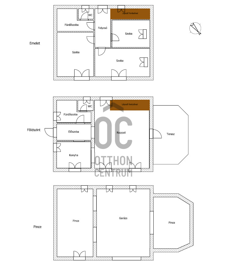
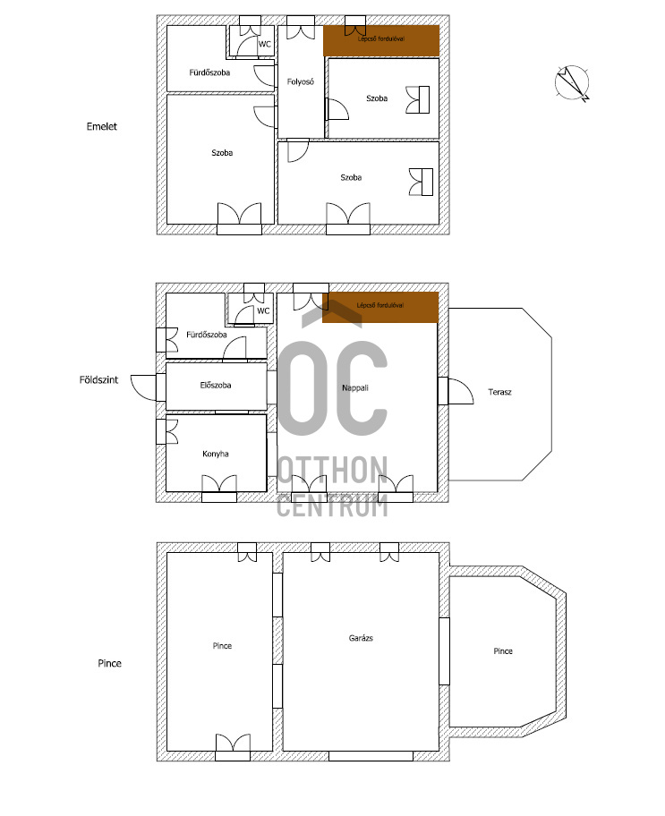
- The 130 m² three-story building is situated on a 561 m² corner plot.
- The property includes three rooms, a living room, two bathrooms, two separate toilets, and a kitchen.
- The basement features a garage suitable for car storage and two cellar rooms that can be adapted for various uses.
- The brick-built house is under a roof and in a structural state, requiring the installation of windows and mechanical elements.
- Electricity and water have been connected, while sewer and gas connections can be arranged within the plot.

The town is becoming increasingly popular as a tourist center:
- The Tisza Lake can be completely cycled around, with a new bike path extending to Poroszló.
- A renewed thermal beach, a free water beach, and a cycling center.
- Excellent restaurants and services nearby.

Additional advantages:
- Free, bank-independent loan mediation.
- Sales service available even on weekends!

Regisztrációs szám

H509790

Az ingatlan adatai

Értékesités
eladó
Jogi státusz
használt
Jelleg
ház
Építési mód
tégla
Méret
130,9 m²
Bruttó méret
150 m²
Telek méret
561 m²
Terasz / erkély mérete
15 m²
Fűtés
kályha (faszén)
Belmagasság
270 cm
Lakáson belüli szintszám
3
Tájolás
Észak-kelet
Állapot
Felújítandó
Homlokzat állapota
Átlagon aluli
Pince
Önálló
Környék
csendes, zöld
Építés éve
1999
Fürdőszobák száma
2
Garázs
Benne van az árban
Garázs férőhely
1
Víz
Van
Villany
Van
Vízpart távolsága
500 méterre

Helyiségek

szoba
12.41 m²
szoba
12.06 m²
szoba
7.92 m²
nappali
28.8 m²
konyha
6.9 m²
fürdőszoba
4.6 m²
fürdőszoba
4.9 m²
wc
1.26 m²
wc
1.26 m²
előszoba
4.2 m²
előszoba
4.76 m²
garázs
28.74 m²
pince
19.8 m²
pince
14 m²
Pomaházi Pál
Pomaházi Pál

Hitelszakértő

Irodánk kínálatából - Tiszafüred

for sale family house

Index image
data_sheet.details.realestate.section.main.otthonstart_flag.label
18

for sale family house

Index image
data_sheet.details.realestate.section.main.otthonstart_flag.label
38

for sale family house

Index image
data_sheet.details.realestate.section.main.otthonstart_flag.label
9

for sale family house

Index image
data_sheet.details.realestate.section.main.otthonstart_flag.label
18

for sale family house

Index image
data_sheet.details.realestate.section.main.otthonstart_flag.label
15

for sale family house

Index image
data_sheet.details.realestate.section.main.otthonstart_flag.label
20

for sale family house

Index image
data_sheet.details.realestate.section.main.otthonstart_flag.label
16

for sale vacation home

Index image
14

for sale family house

Index image
data_sheet.details.realestate.section.main.otthonstart_flag.label
10

for sale family house

Index image
data_sheet.details.realestate.section.main.otthonstart_flag.label
12

for sale family house

Index image
data_sheet.details.realestate.section.main.otthonstart_flag.label
22

for sale commercial property

Index image
17