Elérhető Otthon Start hitellel
Eladó családi ház, H509377
Bonyhád

69 500 000 Ft

179 000 €

  • 160m²
  • 5 szoba
Kiemelt megbízás

Eladó családi ház Bonyhádon

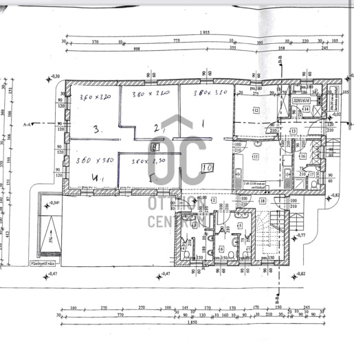
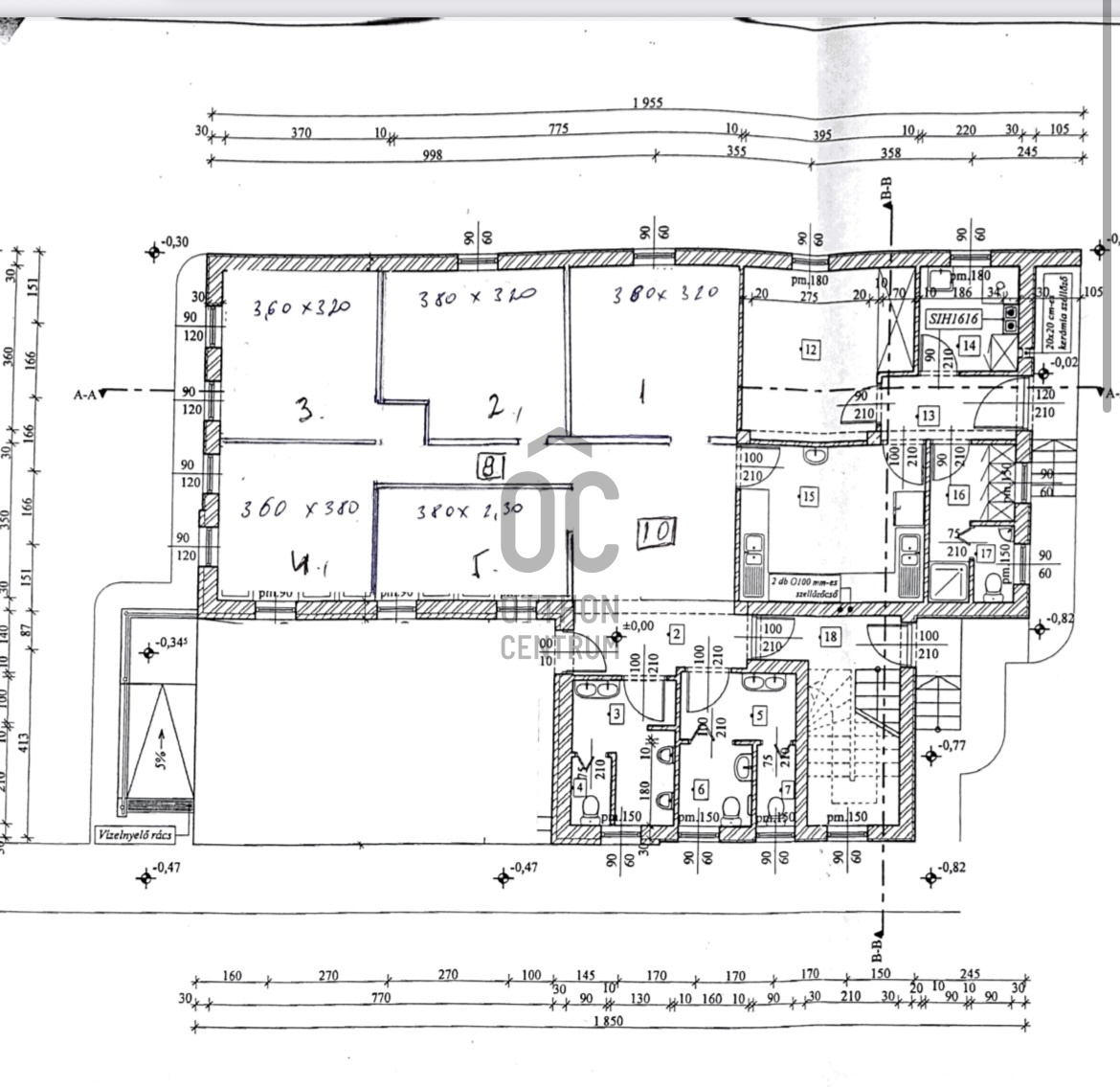
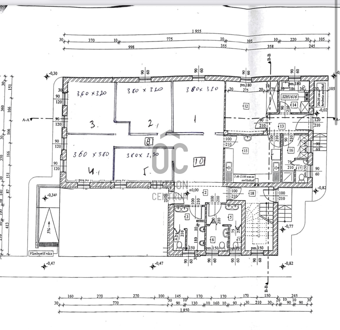
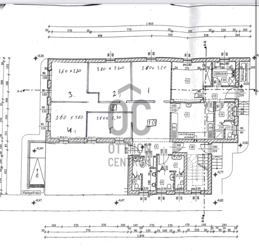
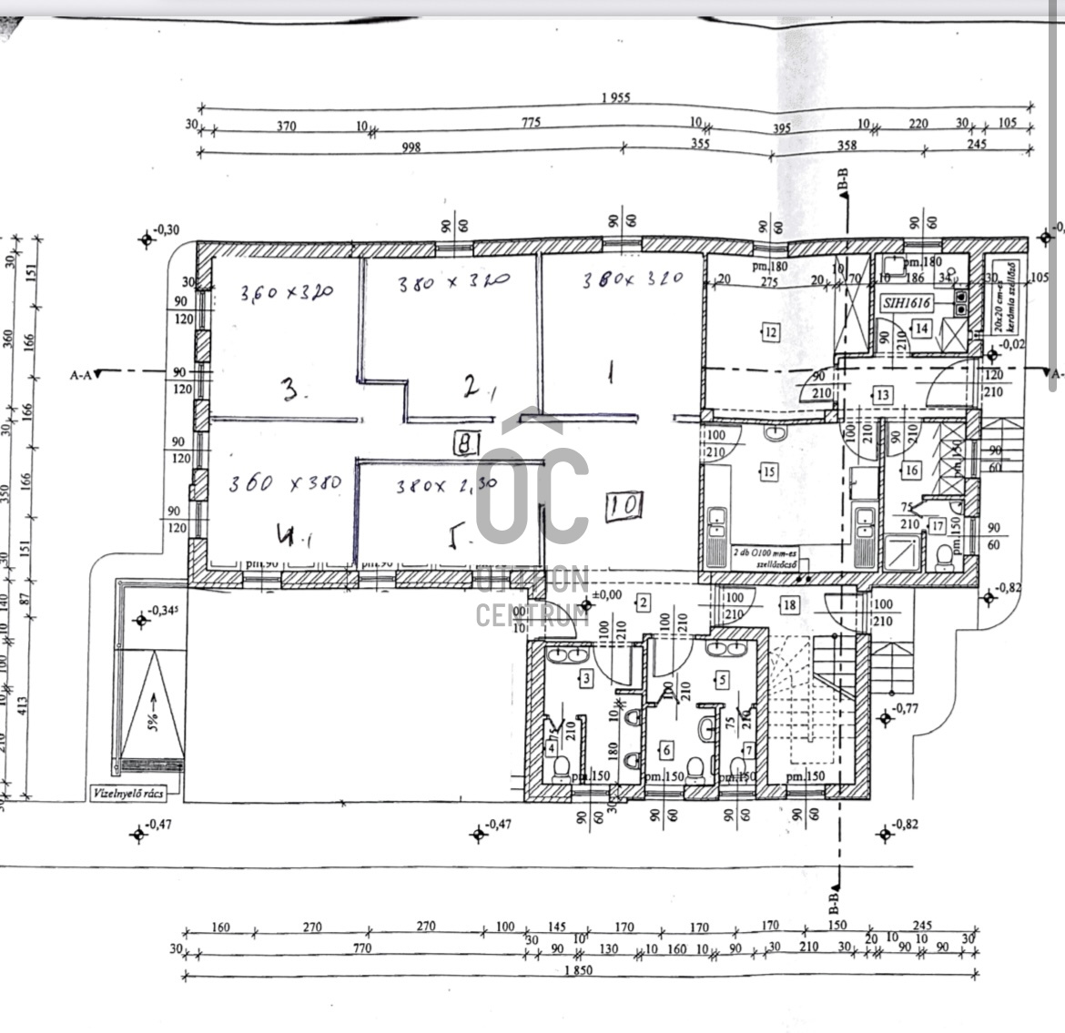
Eladó Bonyhád kedvelt, kertvárosi környékén egy 160 m2-es + 30 m2-es terasszal rendelkező tégla ház. Jelenleg irodaként funkcionál, de könnyen lakóházzá alakítható. 2006-ban épült, fűtéséről gáz cirkó és vegyes tüzelésű kazán is gondoskodik. A nagy teraszról belépve egy tágas, világos térbe érkezünk, ahonnal 5 iroda helyiség nyílik. Ezek falai OSB lapokból épültek, így egyszerűen bonthatók. Az ingatlan rendelkezik konyhával, mosdókkal. A ház külső felújításával, tető, szigetelés, nyílászárók cseréjével már nem kell foglalkozni, csak belső kialakítása vár leendő tulajdonosára. Alaprajza többféleképp kialakítható, attól függően mennyi lakószobára van szüksége a családnak. Tetőtere beépítése is elkezdődött, ahol további 100 m2-es lakrész kialakítása lehetséges.

Ajánlom családoknak vagy családot tervező fiataloknak.
Ha Ön is lát benne fantáziát, hívjon fel, és nézzük meg együtt!

Regisztrációs szám: H509377

Teljes körű pénzügyi megoldások ügyintézése díjmentesen.
Minden élethelyzetre végzünk pénzügyi elemzést - ha vásárolni szeretne, segítünk, hogy ezt a legjobb
feltételek mellett tegye; ha eladni szeretné ingatlanát, nézzük meg, hátha érdemes meglévő hitelét
átváltani.
Keressen bizalommal, szakértők vagyunk!

Regisztrációs szám

H509377

Az ingatlan adatai

Értékesités
eladó
Jogi státusz
használt
Jelleg
ház
Építési mód
tégla
Méret
160 m²
Bruttó méret
160 m²
Telek méret
928 m²
Fűtés
Gáz cirkó
Belmagasság
260 cm
Lakáson belüli szintszám
1
Tájolás
Dél-kelet
Állapot
Homlokzat állapota
Kiváló
Építés éve
2006
Fürdőszobák száma
3
Víz
Van
Gáz
Van
Villany
Van
Csatorna
Van

Helyiségek

előszoba
25.12 m²
mosdó
7.05 m²
mosdó
8.4 m²
közlekedő
7.18 m²
iroda
47.68 m²
raktár
27.94 m²
kazánház
4.85 m²
konyha
14.88 m²
zuhanyzó
4.85 m²
wc
1.53 m²
lépcsőház
11.02 m²
Moczok Ágnes
Moczok Ágnes

Hitelszakértő

Irodánk kínálatából - Szekszárd - Széchenyi utca

for sale apartment

Index image
data_sheet.details.realestate.section.main.otthonstart_flag.label
10

eladó családi ház

Index image
27

for sale family house

Index image
data_sheet.details.realestate.section.main.otthonstart_flag.label
14

for sale family house

Index image
data_sheet.details.realestate.section.main.otthonstart_flag.label
20

for sale family house

Index image
data_sheet.details.realestate.section.main.otthonstart_flag.label
24

for sale family house

Index image
data_sheet.details.realestate.section.main.otthonstart_flag.label
13

for sale panel apartment

Index image
12