279 900 000 Ft
719 000 €
- 170m²
- 6 szoba
CSALÁDBARÁT KÖRNYEZETBEN, KOMPROMISSZUM MENTES OTTHON
Fedezd fel álmaid otthonát Budapest XIV. kerületének csendes, de mégis pezsgő részén Zuglóban!
Ez a felújított, kiváló állapotú, sorház jellegű, két szintes családi ház nem csupán egy ingatlan, hanem egy életstílus, amely ideális azok részére, akik értékelik a kényelmet és a természet közelségét.
Nappali+ 5 tágas hálószobával rendelkezik, így bőséges teret biztosít a család számára, vagy akár baráti összejövetelekhez is. Két fürdőszobája garantálja, hogy reggelente senkinek sem kell várakoznia és emellett még vendég mosdó is megtalálható.
A házhoz tartozik egy 403 négyzetméteres telek, amely rendezett kerttel rendelkezik. A füvesített kertben kiépített öntözőrendszer, 3x5 méteres hőszivattyúval fűthető medence, fedett sütögető rész és egy kis faház tárolónak is megtalálható.
A 35 nm-es terasz tökéletes helyszín családi grillezésekhez vagy csak a napozáshoz.
A prémium kivitelezés és a modern dizájn megjelenik a ház minden részletében. A kandallós nappali a téli estéken biztosítja a meghitt hangulatot. Az ingatlan fűtése gázkazán (viessmann) történik, radiátoros hőleadókkal, valamint padlófűtés is ki lett építve.
Hűtése klímával, így a legforróbb nyári napokon is kellemes hőmérsékletet biztosít.
A riasztó és kamera rendszer és a biztonságos környék nyugalmat ad a mindennapokhoz.
Két autó számára udvari beálló áll rendelkezésre elektromos kapuval, biciklitárolóval.
Fenntartása nagyon kedvező, köszönhető ez az 50 cm-es téglafalazatnak és a modern nyílászáróknak is.
Az ingatlan tehermentes, így gyorsan birtokba vehető kifizetést követően.
A környék kiemelkedő közlekedési lehetőségekkel rendelkezik: a kitűnő közlekedésnek köszönhetően gyorsan elérheted a belvárost. A csendes utcák és a barátságos szomszédság ideális környezetet biztosítanak az ideköltözők számára, akik szeretnék élvezni a városi élet előnyeit, miközben a természet lágy ölén pihenhetnek. Ne habozz, ha egy exkluzív, modern és családbarát otthont keresel, ami minden igényt kielégít!
Várom megkeresésedet hétköznap és hétvégén is!
Ez a felújított, kiváló állapotú, sorház jellegű, két szintes családi ház nem csupán egy ingatlan, hanem egy életstílus, amely ideális azok részére, akik értékelik a kényelmet és a természet közelségét.
Nappali+ 5 tágas hálószobával rendelkezik, így bőséges teret biztosít a család számára, vagy akár baráti összejövetelekhez is. Két fürdőszobája garantálja, hogy reggelente senkinek sem kell várakoznia és emellett még vendég mosdó is megtalálható.
A házhoz tartozik egy 403 négyzetméteres telek, amely rendezett kerttel rendelkezik. A füvesített kertben kiépített öntözőrendszer, 3x5 méteres hőszivattyúval fűthető medence, fedett sütögető rész és egy kis faház tárolónak is megtalálható.
A 35 nm-es terasz tökéletes helyszín családi grillezésekhez vagy csak a napozáshoz.
A prémium kivitelezés és a modern dizájn megjelenik a ház minden részletében. A kandallós nappali a téli estéken biztosítja a meghitt hangulatot. Az ingatlan fűtése gázkazán (viessmann) történik, radiátoros hőleadókkal, valamint padlófűtés is ki lett építve.
Hűtése klímával, így a legforróbb nyári napokon is kellemes hőmérsékletet biztosít.
A riasztó és kamera rendszer és a biztonságos környék nyugalmat ad a mindennapokhoz.
Két autó számára udvari beálló áll rendelkezésre elektromos kapuval, biciklitárolóval.
Fenntartása nagyon kedvező, köszönhető ez az 50 cm-es téglafalazatnak és a modern nyílászáróknak is.
Az ingatlan tehermentes, így gyorsan birtokba vehető kifizetést követően.
A környék kiemelkedő közlekedési lehetőségekkel rendelkezik: a kitűnő közlekedésnek köszönhetően gyorsan elérheted a belvárost. A csendes utcák és a barátságos szomszédság ideális környezetet biztosítanak az ideköltözők számára, akik szeretnék élvezni a városi élet előnyeit, miközben a természet lágy ölén pihenhetnek. Ne habozz, ha egy exkluzív, modern és családbarát otthont keresel, ami minden igényt kielégít!
Várom megkeresésedet hétköznap és hétvégén is!
Regisztrációs szám
H508691
Az ingatlan adatai
Értékesités
eladó
Jogi státusz
használt
Jelleg
ház
Építési mód
tégla
Méret
170 m²
Bruttó méret
200 m²
Telek méret
403 m²
Terasz / erkély mérete
35 m²
Fűtés
Gáz cirkó
Belmagasság
285 cm
Lakáson belüli szintszám
2
Tájolás
Dél
Állapot
Kiváló
Homlokzat állapota
Kiváló
Pince
Önálló
Környék
csendes, jó közlekedés, zöld
Építés éve
2005
Fürdőszobák száma
2
Társaház kert
igen
Víz
Van
Gáz
Van
Villany
Van
Csatorna
Van
Tároló
Önálló
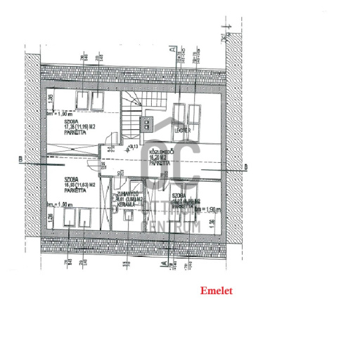
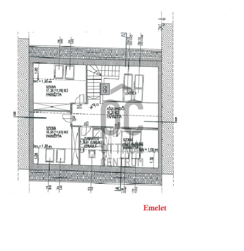
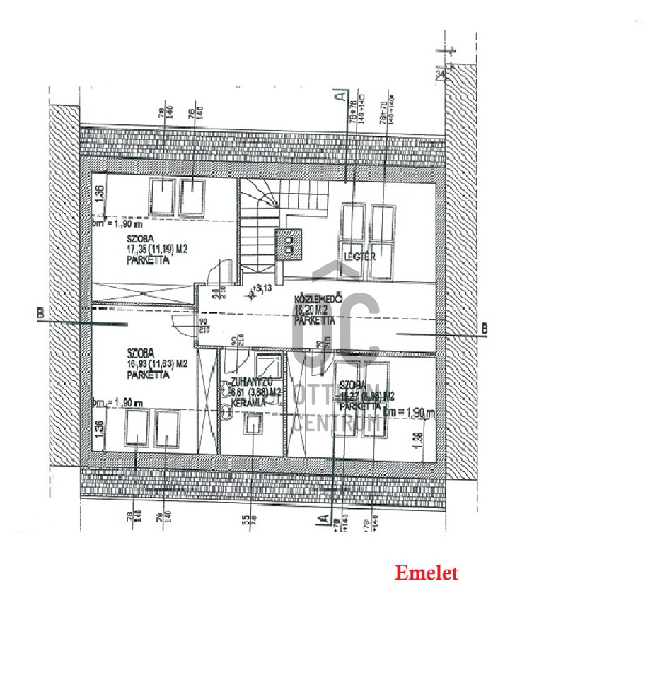
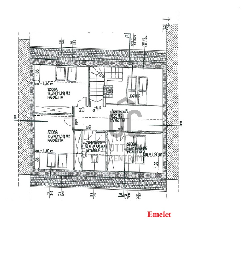
Helyiségek
nappali-konyha
34.7 m²
előszoba
3 m²
hálószoba
13.16 m²
hálószoba
13.82 m²
wc-kézmosó
2.28 m²
hálószoba
11.2 m²
hálószoba
11.63 m²
hálószoba
9 m²
közlekedő
16.2 m²
közlekedő
7.18 m²
fürdőszoba-wc
6.6 m²
fürdőszoba-wc
4 m²
háztartási helyiség
13.43 m²
tároló
13 m²
lépcsőház
3.4 m²
terasz
35 m²
Ruczek János
Hitelszakértő