149 000 000 Ft
383 000 €
- 125m²
- 4 szoba
- 1. emelet





























Four studio apartment in the Palace Quarter.
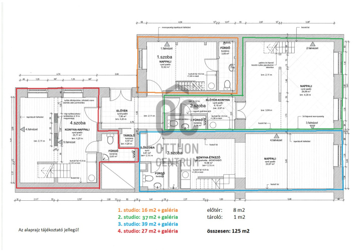
For sale: the apartment includes FOUR STUDIOS in the Palace Quarter, at the corner of Mária Street and Üllői Road.
The property is 125 m2, located on the first floor of a turn-of-the-century building with an elevator.
It is currently utilized for short-term rentals, with the studios measuring 39 m2 + gallery, 34 m2 + gallery, 27 m2 + gallery, and 16 m2 + gallery.
Each studio has its own bathroom and kitchen. Two of the studios have windows facing Mária Street, while the other two overlook the courtyard.
Excellent transportation options, with the 4-6 tram and the blue metro stop just a half-minute walk away.
Universities, shopping centers, restaurants, and cafés are in the immediate vicinity.
The property is 125 m2, located on the first floor of a turn-of-the-century building with an elevator.
It is currently utilized for short-term rentals, with the studios measuring 39 m2 + gallery, 34 m2 + gallery, 27 m2 + gallery, and 16 m2 + gallery.
Each studio has its own bathroom and kitchen. Two of the studios have windows facing Mária Street, while the other two overlook the courtyard.
Excellent transportation options, with the 4-6 tram and the blue metro stop just a half-minute walk away.
Universities, shopping centers, restaurants, and cafés are in the immediate vicinity.
Regisztrációs szám
H508200
Az ingatlan adatai
Értékesités
eladó
Jogi státusz
használt
Jelleg
lakás
Építési mód
tégla
Méret
125 m²
Bruttó méret
125 m²
Fűtés
Gáz cirkó
Belmagasság
400 cm
Tájolás
Nyugat
Lépcsőház típusa
körfolyosó
Állapot
Jó
Homlokzat állapota
Jó
Lépcsőház állapota
Jó
Környék
jó közlekedés, központi
Építés éve
1909
Fürdőszobák száma
4
Fekvés
utcai
Közös költség
35190
Víz
Van
Gáz
Van
Villany
Van
Csatorna
Van
Lift
van
Helyiségek
szoba
39 m²
szoba
37 m²
szoba
27 m²
szoba
16 m²
előszoba
8 m²
tároló
1 m²
egyéb
1 m²
egyéb
1 m²

Pongó Miklós
Hitelszakértő