Elérhető Otthon Start hitellel
Eladó családi ház,
H508137
Újszász
30 000 000 Ft
78 000 €
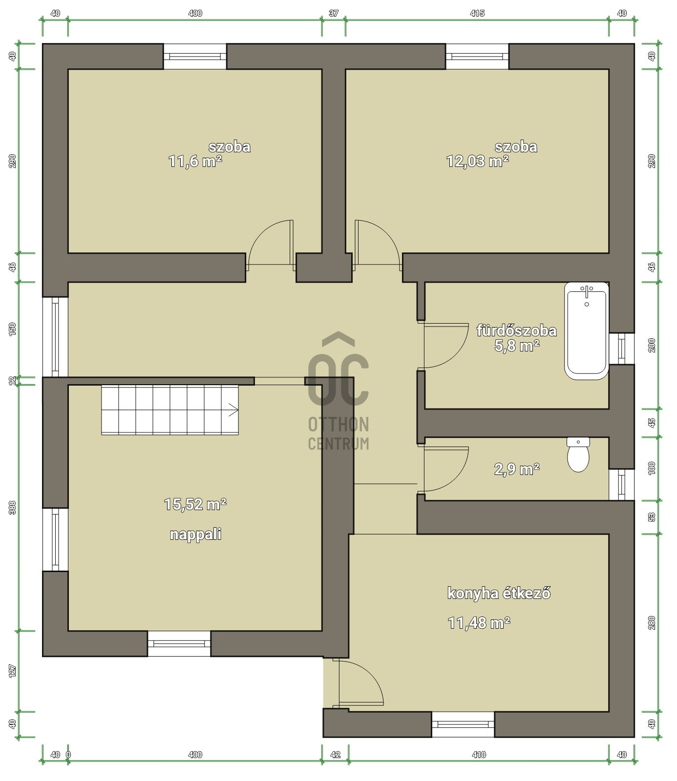
- 110m²
- 4 szoba














Eladó 110nm tégla építésű családi ház Újszászon
Újszászon, a vasútállomás közelében eladó, felújított, kétszintes családi ház:
- beton alapon, tégla falazat,
- 110nm belső hasznos alapterület,
- 4 szoba,
- új külső vakolat,
- új villany- és vízvezetékek,
- új fürdőszoba,
- új műanyag nyílászárók,
- konvektoros fűtés,
- hűtő- fűtő klíma,
- összközműves, összkomfortos,
- felújított cseréptető,- 341nm telek.
A vasútállomás gyalogosan 400méterre található.
Az ingatlan per-és tehermentes, azonnal költözhető.
Fotók feltöltése folyamatosan.
Irodánkban bankfüggetlen hitelügyintézéssel állunk ügyfeleink rendelkesére.
A hirdetésben szereplő információk a megbízótól származnak, azért az iroda felelősséget nem vállal.
- beton alapon, tégla falazat,
- 110nm belső hasznos alapterület,
- 4 szoba,
- új külső vakolat,
- új villany- és vízvezetékek,
- új fürdőszoba,
- új műanyag nyílászárók,
- konvektoros fűtés,
- hűtő- fűtő klíma,
- összközműves, összkomfortos,
- felújított cseréptető,- 341nm telek.
A vasútállomás gyalogosan 400méterre található.
Az ingatlan per-és tehermentes, azonnal költözhető.
Fotók feltöltése folyamatosan.
Irodánkban bankfüggetlen hitelügyintézéssel állunk ügyfeleink rendelkesére.
A hirdetésben szereplő információk a megbízótól származnak, azért az iroda felelősséget nem vállal.
Regisztrációs szám
H508137
Az ingatlan adatai
Értékesités
eladó
Jogi státusz
használt
Jelleg
ház
Építési mód
tégla
Méret
110 m²
Bruttó méret
120 m²
Telek méret
341 m²
Fűtés
gázkonvektor
Belmagasság
275 cm
Lakáson belüli szintszám
2
Tájolás
Nyugat
Állapot
Jó
Homlokzat állapota
Jó
Környék
csendes, jó közlekedés
Építés éve
1980
Fürdőszobák száma
1
Víz
Van
Gáz
Van
Villany
Van
Csatorna
Van
Helyiségek
szoba
11.6 m²
szoba
13 m²
nappali
18.4 m²
konyha-étkező
11 m²
fürdőszoba-wc
5.8 m²

Szuda Zsolt
Hitelszakértő