750 000 Ft
1 920 €
- 127m²
- 4 szoba
- 1. emelet

















Renovated upper-class apartment in Stefánia street, suitable for an office as well!
We are offering for rent a high-quality, tastefully and fully renovated, excellent condition, unfurnished apartment with 4 rooms + hall and two bathrooms in Stefánia. The apartment has been completely renewed from top to bottom this year, so the future tenant can be the first resident after the renovation.
LOCATION: Quiet, peaceful area with excellent public transportation (bus and trolley within 2-3 minutes, Metro Line 2 within 5-6 minutes), in close proximity to embassies, in a cultured, well-maintained, and safe neighborhood. Parking is almost always easily available in the cul-de-sac next to the building.
BUILDING: Previously renovated, continuously maintained, in good condition, well-funded, 3-story apartment building with an elevator.
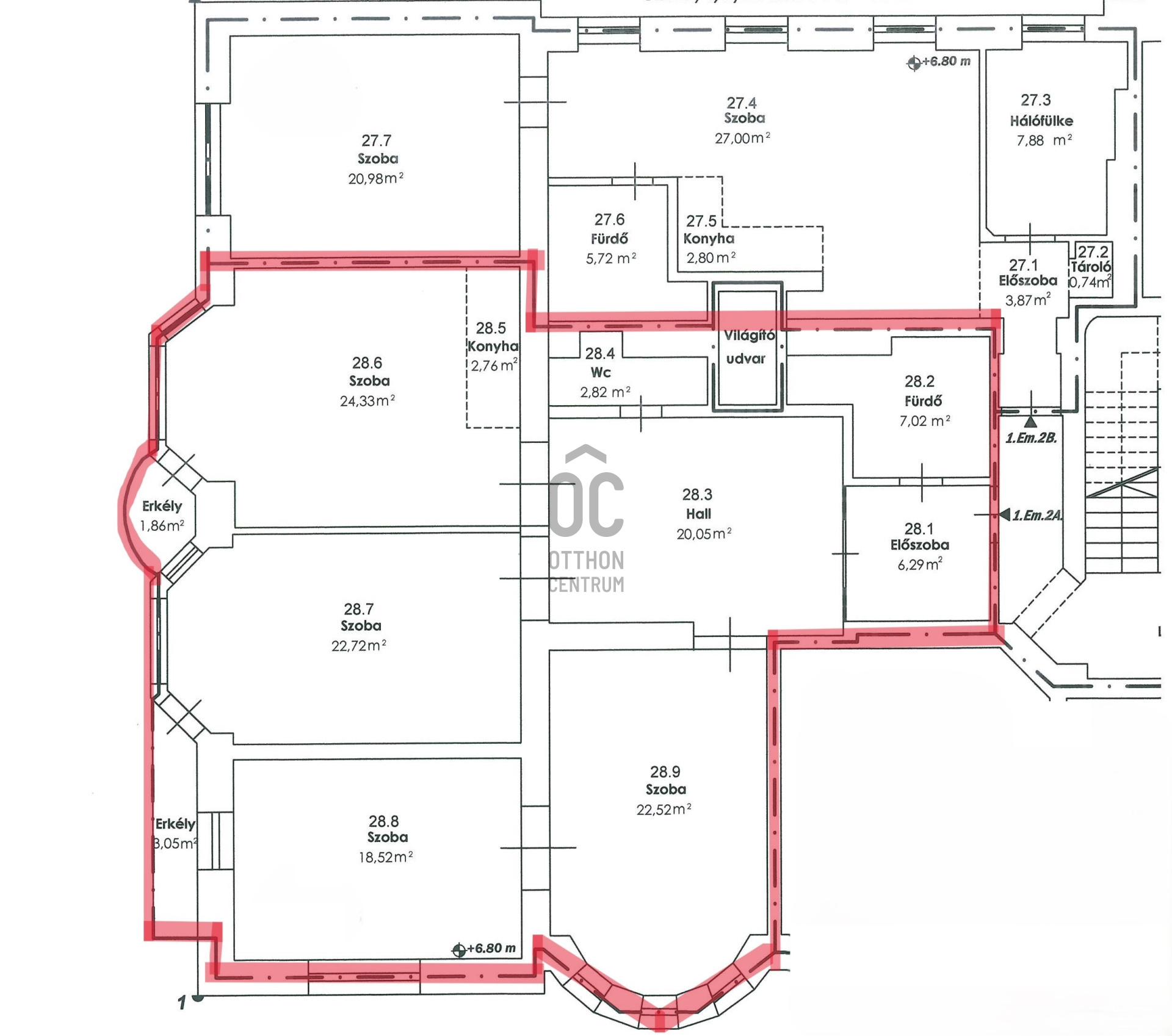
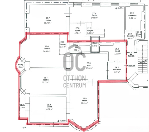
APARTMENT: 127 sqm + two balconies of 2 and 3 sqm, fully renovated, with an American kitchen and living room, very quiet, with its own gas heating with underfloor heating, beautiful brand new real wood parquet flooring, and new triple-glazed wooden windows. A true bourgeois apartment with exceptional elegance, featuring one larger bathroom with a bathtub and a smaller bathroom with a shower. Both bathrooms also have a toilet. All four rooms (bedrooms) of the property are air-conditioned.
This could be a great choice for families, but it is particularly suitable for an office, especially when combined with the smaller adjacent apartment, which is 69 sqm with a living room + 2 rooms layout. Together, the two apartments have a total usable area of 196 sqm, which could be suitable for a larger office.
The minimum rental period is 1 year, a 2-month deposit is required, and it is available for immediate move-in!
If you have any questions regarding the property or would like to schedule a viewing, please feel free to call!
LOCATION: Quiet, peaceful area with excellent public transportation (bus and trolley within 2-3 minutes, Metro Line 2 within 5-6 minutes), in close proximity to embassies, in a cultured, well-maintained, and safe neighborhood. Parking is almost always easily available in the cul-de-sac next to the building.
BUILDING: Previously renovated, continuously maintained, in good condition, well-funded, 3-story apartment building with an elevator.
APARTMENT: 127 sqm + two balconies of 2 and 3 sqm, fully renovated, with an American kitchen and living room, very quiet, with its own gas heating with underfloor heating, beautiful brand new real wood parquet flooring, and new triple-glazed wooden windows. A true bourgeois apartment with exceptional elegance, featuring one larger bathroom with a bathtub and a smaller bathroom with a shower. Both bathrooms also have a toilet. All four rooms (bedrooms) of the property are air-conditioned.
This could be a great choice for families, but it is particularly suitable for an office, especially when combined with the smaller adjacent apartment, which is 69 sqm with a living room + 2 rooms layout. Together, the two apartments have a total usable area of 196 sqm, which could be suitable for a larger office.
The minimum rental period is 1 year, a 2-month deposit is required, and it is available for immediate move-in!
If you have any questions regarding the property or would like to schedule a viewing, please feel free to call!
Regisztrációs szám
H508092
Az ingatlan adatai
Értékesités
kiadó
Jogi státusz
használt
Jelleg
lakás
Építési mód
tégla
Méret
127 m²
Bruttó méret
129 m²
Terasz / erkély mérete
3 m²
Fűtés
Gáz cirkó
Belmagasság
360 cm
Lakáson belüli szintszám
1
Tájolás
Dél-nyugat
Panoráma
városi panoráma
Lépcsőház típusa
zárt lépcsőház
Állapot
Kiváló
Homlokzat állapota
Jó
Lépcsőház állapota
Átlagos
Környék
csendes, jó közlekedés
Építés éve
1920
Fürdőszobák száma
2
Fekvés
utcai
Bútorozott
igen
Víz
Van
Gáz
Van
Villany
Van
Csatorna
Van
Lift
van
Helyiségek
nappali-konyha
27 m²
szoba
23 m²
szoba
18.5 m²
szoba
22.5 m²
hall
20 m²
előszoba
6.3 m²
fürdőszoba-wc
7 m²
fürdőszoba-wc
3 m²

Ruczek János
Hitelszakértő