Elérhető Otthon Start hitellel
Eladó családi ház,
H507621
Misefa
140 000 000 Ft
360 000 €
- 250m²
- 4 szoba
























































Aki ide belép, megérzi, ez nem egy eladó ház- ez egy új otthon!
Eladóvá vált egy egyedi kialakítású és elhelyezkedésű családi ház Misefán! ✨
Olyan otthont keres, ami nem tucat, hanem igazán különleges? Zalaegerszeg közeli Misefán most eladó egy egyedi kialakítású családi ház, amely ötvözi a modern kényelmet, az eleganciát, a jelent, a tradíciókat és az otthonos hangulatot.
✅ Egyedi építészeti megoldások – nem sablonház, hanem igazi különlegesség
✅ Tágas, világos terek – ahol minden családtagnak jut hely
✅ Nyugodt, barátságos környezet – biztonságos, csendes település
✅ Ideális választás családoknak, akik értékelik a kényelmet és az egyediséget, a nyugalmat és a különlegességet.
Ez a ház nem csak egy ingatlan – ez lehet az Ön történetének kezdete.
A ház helyet ad két otthonnak is, külön bejárattal egy kisebb és egy nagyobb életterű lakrész került kialakításra, így ideális lehet szülőkkel történő összeköltözés esetére is.
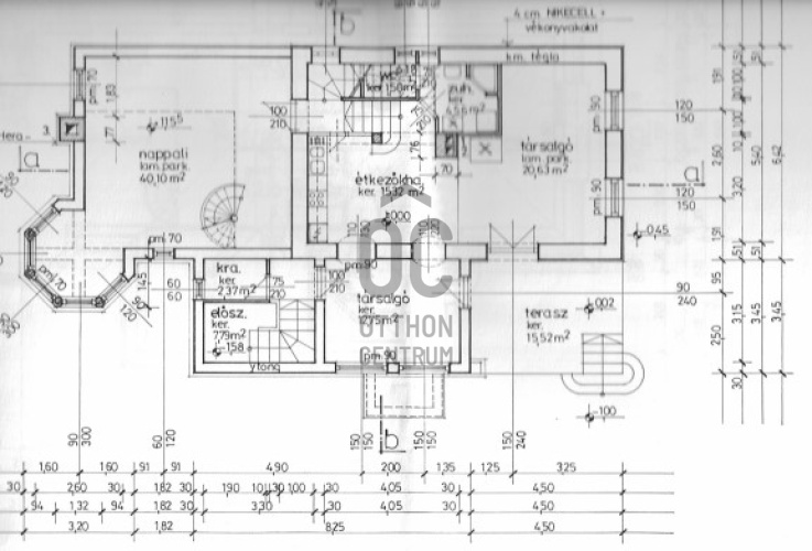
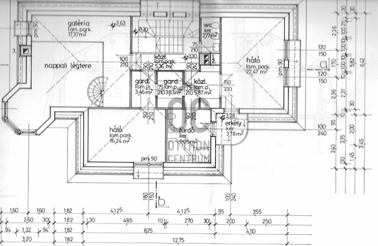
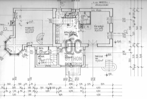
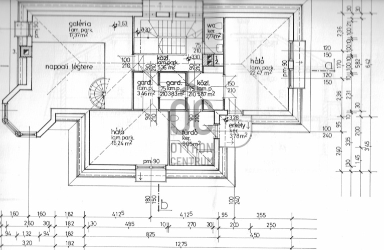
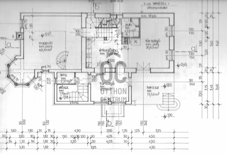
A ház 250 négyzetméteres, négy tágas szobája, társalgója, galériája különleges hangulatot nyújt.
Jöjjön el nézze meg, szeressen bele!
Ez az ingatlan nem csupán lakóhely, hanem egy életstílus megtestesítője is, amely ideális választás lehet családok, valamint befektetők számára egyaránt. Az ingatlanhoz tartozó 2301 négyzetméteres telek lehetőséget kínál a szabadidő eltöltésére, kertészkedésre, vagy akár újabb építkezésekre is.
A ház állapota kiváló, így azonnal költözhető, azonban a személyre szabott átalakítások lehetősége is adott, hogy az új tulajdonos saját ízlésének megfelelően formálhassa az otthonát. A fűtés gáz cirkó rendszerrel történik, valamint kandalló segítségével, míg a nyári hónapokban klíma biztosítja a kellemes hőmérsékletet.
A környék nem csupán csendes és biztonságos, hanem számos előnnyel is rendelkezik. Misefa egy barátságos település, ahol a közlekedési lehetőségek is kedvezőek. Az ingatlan könnyen megközelíthető autóval, ugyanakkor a helyi tömegközlekedési lehetőségek is kiválóak, így a közeli városok gyorsan elérhetők. A környéken található boltok, iskolák és egészségügyi intézmények mind hozzájárulnak ahhoz, hogy az itt élők mindennapjai kényelmesebbek és zökkenőmentesebbek legyenek. A kilátás, amely az ingatlanból nyílik, egyedülálló élményt nyújt, lehetőséget biztosítva a természet közelségének élvezetére is. Akár pihenésre, akár a szabadidő eltöltésére keres helyet, ez az ingatlan tökéletes választás lehet!
Olyan otthont keres, ami nem tucat, hanem igazán különleges? Zalaegerszeg közeli Misefán most eladó egy egyedi kialakítású családi ház, amely ötvözi a modern kényelmet, az eleganciát, a jelent, a tradíciókat és az otthonos hangulatot.
✅ Egyedi építészeti megoldások – nem sablonház, hanem igazi különlegesség
✅ Tágas, világos terek – ahol minden családtagnak jut hely
✅ Nyugodt, barátságos környezet – biztonságos, csendes település
✅ Ideális választás családoknak, akik értékelik a kényelmet és az egyediséget, a nyugalmat és a különlegességet.
Ez a ház nem csak egy ingatlan – ez lehet az Ön történetének kezdete.
A ház helyet ad két otthonnak is, külön bejárattal egy kisebb és egy nagyobb életterű lakrész került kialakításra, így ideális lehet szülőkkel történő összeköltözés esetére is.
A ház 250 négyzetméteres, négy tágas szobája, társalgója, galériája különleges hangulatot nyújt.
Jöjjön el nézze meg, szeressen bele!
Ez az ingatlan nem csupán lakóhely, hanem egy életstílus megtestesítője is, amely ideális választás lehet családok, valamint befektetők számára egyaránt. Az ingatlanhoz tartozó 2301 négyzetméteres telek lehetőséget kínál a szabadidő eltöltésére, kertészkedésre, vagy akár újabb építkezésekre is.
A ház állapota kiváló, így azonnal költözhető, azonban a személyre szabott átalakítások lehetősége is adott, hogy az új tulajdonos saját ízlésének megfelelően formálhassa az otthonát. A fűtés gáz cirkó rendszerrel történik, valamint kandalló segítségével, míg a nyári hónapokban klíma biztosítja a kellemes hőmérsékletet.
A környék nem csupán csendes és biztonságos, hanem számos előnnyel is rendelkezik. Misefa egy barátságos település, ahol a közlekedési lehetőségek is kedvezőek. Az ingatlan könnyen megközelíthető autóval, ugyanakkor a helyi tömegközlekedési lehetőségek is kiválóak, így a közeli városok gyorsan elérhetők. A környéken található boltok, iskolák és egészségügyi intézmények mind hozzájárulnak ahhoz, hogy az itt élők mindennapjai kényelmesebbek és zökkenőmentesebbek legyenek. A kilátás, amely az ingatlanból nyílik, egyedülálló élményt nyújt, lehetőséget biztosítva a természet közelségének élvezetére is. Akár pihenésre, akár a szabadidő eltöltésére keres helyet, ez az ingatlan tökéletes választás lehet!
Regisztrációs szám
H507621
Az ingatlan adatai
Értékesités
eladó
Jogi státusz
használt
Jelleg
ház
Építési mód
ytong
Méret
250 m²
Bruttó méret
250 m²
Telek méret
2 301 m²
Fűtés
Gáz cirkó
Belmagasság
560 cm
Lakáson belüli szintszám
2
Tájolás
Nyugat
Panoráma
Zöldre néző panoráma
Állapot
Jó
Homlokzat állapota
Jó
Pince
Önálló
Környék
csendes, jó közlekedés, zöld
Építés éve
2007
Fürdőszobák száma
3
Fedett beállók száma
3
Víz
Van
Gáz
Van
Villany
Van
Csatorna
Van
Helyiségek
nappali
40 m²
hálószoba
23 m²
hálószoba
16 m²
szoba
23 m²
nappali
13 m²
nappali
21 m²
ebédlő
15 m²
kamra
2.5 m²
előszoba
8 m²
mosdó
5 m²
fürdőszoba
9 m²
galéria
17 m²
gardrób
7 m²
wc-kézmosó
3 m²
közlekedő
6 m²
közlekedő
5.5 m²
szauna
2 m²