Elérhető Otthon Start hitellel
Eladó panel lakás, H506877
Budapest III. kerület, Óbuda, Kerék utca

79 900 000 Ft

208 000 €

  • 68m²
  • 3 szoba
  • 9. emelet
Kiemelt megbízás

Jó állapotú 3 szobás panel, Óbuda központi részén!

Eladásra kínálunk egy jó állapotú, felújított, 3 szobás panel lakást, Óbuda központi részén.
A fürdő és a wc tavaly lett felújítva, az elektromos hálózat, a nyílászárók, a parketta és a konyha pedig korábban.
Az ingatlan a 3%-os hitel feltételeinek megfelel!

A lakás főbb előnyei és tulajdonságai:
- 3 külön nyíló, egész szoba
- Keleti fekvés
- Klíma van (nappali)
- 9. emelet, liftes, nem zárószinti
- Biztonsági bejárati ajtó
- Gardrób / tároló, ahova a mosgép elhelyezhető
- Kamra / spájz
- Akár 30 napon belül költözhető (kifizetéstől függően)
- Vízórás
- Költségek: közös 17 ezer, távhő szintén 17 ezer

Ha kérdeése van, vagy időpontot egyeztetne megtekintésre, hívjon bizalommal!

Regisztrációs szám

H506877

Az ingatlan adatai

Értékesités
eladó
Jogi státusz
használt
Jelleg
lakás
Építési mód
panel
Méret
68 m²
Bruttó méret
68 m²
Fűtés
távfűtés
Belmagasság
260 cm
Lakáson belüli szintszám
1
Tájolás
Kelet
Lépcsőház típusa
zárt lépcsőház
Állapot
Homlokzat állapota
Átlagos
Lépcsőház állapota
Átlagos
Építés éve
1974
Fürdőszobák száma
1
Fekvés
utcai
Víz
Van
Gáz
Van
Villany
Van
Csatorna
Van

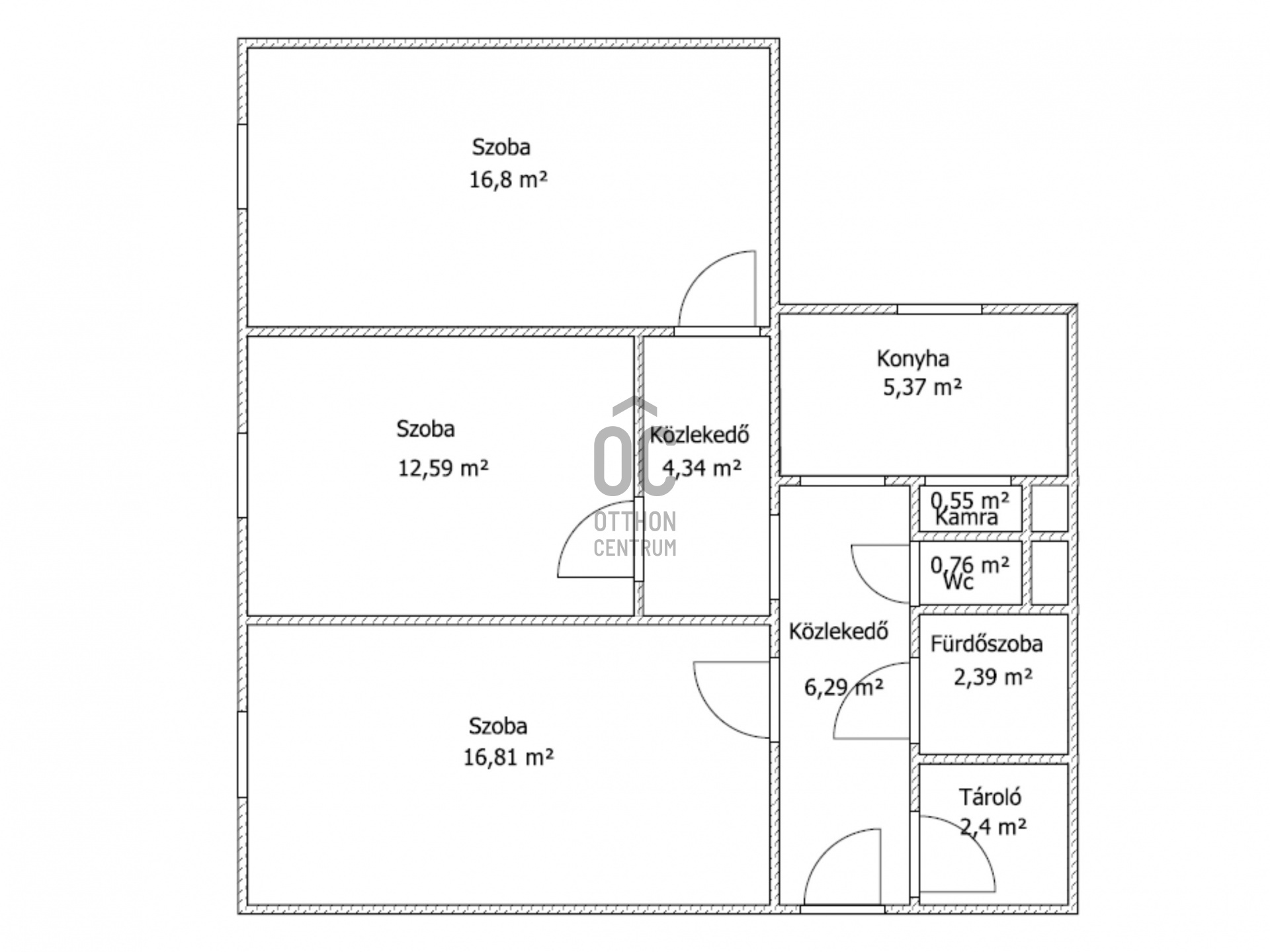
Helyiségek

szoba
16.8 m²
szoba
16.8 m²
szoba
12.6 m²
előszoba
6.3 m²
fürdőszoba
2.4 m²
wc
0.8 m²
tároló
2.4 m²
konyha
5.4 m²
közlekedő
4.4 m²
kamra
0.55 m²
Ruczek János
Ruczek János

Hitelszakértő

Irodánk kínálatából - XI. kerület - Gellért tér

for sale panel apartment

Index image
data_sheet.details.realestate.section.main.otthonstart_flag.label
10

for sale apartment

Index image
21

for sale apartment

Index image
data_sheet.details.realestate.section.main.otthonstart_flag.label
13

for sale commercial property

Index image
8

for sale row house

Index image
data_sheet.details.realestate.section.main.otthonstart_flag.label
16

for rent commercial property

Index image
20

for sale apartment

Index image
data_sheet.details.realestate.section.main.otthonstart_flag.label
12

for sale apartment

Index image
22

for sale semi-detached house

Index image
26