139 000 000 Ft
358 000 €
- 204m²
- 5 szoba
- földszint
























































Eladó 3 szintes, sorház jellegű lakás Budakeszi belterületén
Budakeszi belterületén, csendes, forgalomtól mentes zsákutcában eladó egy sorház jellegű, önálló helyrajzi számmal rendelkező, háromszintes lakás. Az ingatlan azonnal birtokba vehető, így tökéletes választás azok számára, akik szeretnének gyorsan költözni és saját igényeik szerint kialakítani új otthonukat.
Főbb jellemzők
- Ingatlan típusa: sorház jellegű lakás, önálló helyrajzi számmal
- Elhelyezkedés: Budakeszi belterület, csendes, forgalomtól mentes zsákutca
- Szintek száma: 3
- Alapterület: 204 m² (tulajdoni lap szerint)
- Szobák száma: 4 hálószoba + 1 nappali
- Kert: saját, kb. 100 m²
- Garázs: kényelmes kétállásos garázs, tárolóval
- Extrák: gardrób, 2 erkély, 1 terasz
Műszaki adatok
- Állapot: felújítandó — kiváló lehetőség egyedi elképzelések megvalósítására
- Fűtés: gázkazán + radiátoros rendszer, valamint kandalló a nappaliban
Elhelyezkedés és környék
- Az ingatlan Budakeszi belterületén található, nyugodt, családias lakó és kereskedelmi környezetben.
-A környéken minden megtalálható, ami a mindennapokhoz szükséges:
Óvodák, iskolák, uszoda, Aldi, CBA, kisebb boltok, pékségek, TESCO, KIK, Müller, Lidl
- Egészségügyi szolgáltatások: gyógyszertár, háziorvosi rendelő
- Szabadidő: Budakeszi Vadaspark, Normafa, János-hegy könnyen megközelíthető
Közlekedés
- 22-es buszcsalád (22, 22A, 222, 922), 188/188E járatok, valamint Volánbusz-megállók néhány perc sétára
- Budapest belvárosa autóval kb. 20 perc, tömegközlekedéssel pedig könnyen elérhető a Széll Kálmán tér.
Miért érdemes megnézni?
- 3 szint – tágas, jól elkülöníthető élettér
- Saját garázs – kényelmes parkolás
- 2 erkély + terasz – extra szabadtéri tér (saját kert)
- Felújítandó állapot révén, lehetőség saját ízlés szerinti kialakításra
További információk
- Azonnal birtokba vehető – gyors költözésre alkalmas
- Tehermentes
- Nincs közös költség
Budakeszi (németül: Wudigess)
Város a budapesti agglomerációban, Pest vármegyében, a Budakeszi járás székhelye és második legnépesebb települése Budaörs után.
Földrajza
A Budakeszi-medence északkeleti részén felépült települést keleti, északi és nyugati irányból hegyek határolják: a Biai-hegy, a Kis-Kopasz, a Nagy-Hárs-hegy és a János-hegy. Déli irányból a Budakeszi-árok löszös felszínű völgye található enyhén tagolt domborzattal.
Szomszédos települések: Budapest (II. és XII. kerület), Budaörs, Biatorbágy, Páty, Nagykovácsi és Remeteszőlős. Szintén szomszédosnak számít a közvetlenül nem határos Telki is.
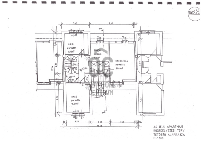
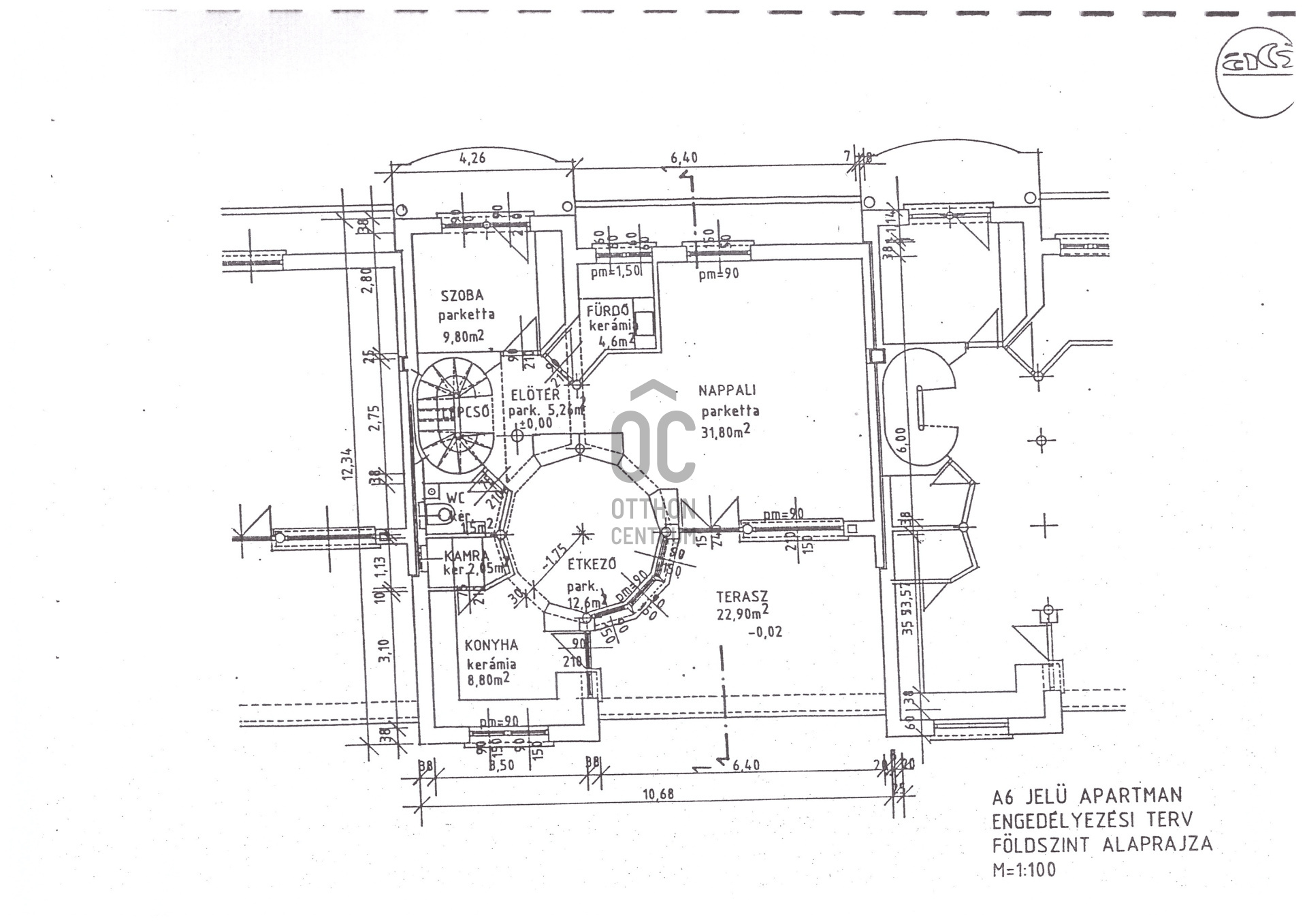
Az alaprajz tájékoztató jellegű kisseb vltoztatások miatt.
Budakeszi belterületén, csendes, forgalomtól mentes zsákutcában eladó egy sorház jellegű, önálló helyrajzi számmal rendelkező, háromszintes lakás. Az ingatlan azonnal birtokba vehető, így tökéletes választás azok számára, akik szeretnének gyorsan költözni és saját igényeik szerint kialakítani új otthonukat.
Főbb jellemzők
- Ingatlan típusa: sorház jellegű lakás, önálló helyrajzi számmal
- Elhelyezkedés: Budakeszi belterület, csendes, forgalomtól mentes zsákutca
- Szintek száma: 3
- Alapterület: 204 m² (tulajdoni lap szerint)
- Szobák száma: 4 hálószoba + 1 nappali
- Kert: saját, kb. 100 m²
- Garázs: kényelmes kétállásos garázs, tárolóval
- Extrák: gardrób, 2 erkély, 1 terasz
Műszaki adatok
- Állapot: felújítandó — kiváló lehetőség egyedi elképzelések megvalósítására
- Fűtés: gázkazán + radiátoros rendszer, valamint kandalló a nappaliban
Elhelyezkedés és környék
- Az ingatlan Budakeszi belterületén található, nyugodt, családias lakó és kereskedelmi környezetben.
-A környéken minden megtalálható, ami a mindennapokhoz szükséges:
Óvodák, iskolák, uszoda, Aldi, CBA, kisebb boltok, pékségek, TESCO, KIK, Müller, Lidl
- Egészségügyi szolgáltatások: gyógyszertár, háziorvosi rendelő
- Szabadidő: Budakeszi Vadaspark, Normafa, János-hegy könnyen megközelíthető
Közlekedés
- 22-es buszcsalád (22, 22A, 222, 922), 188/188E járatok, valamint Volánbusz-megállók néhány perc sétára
- Budapest belvárosa autóval kb. 20 perc, tömegközlekedéssel pedig könnyen elérhető a Széll Kálmán tér.
Miért érdemes megnézni?
- 3 szint – tágas, jól elkülöníthető élettér
- Saját garázs – kényelmes parkolás
- 2 erkély + terasz – extra szabadtéri tér (saját kert)
- Felújítandó állapot révén, lehetőség saját ízlés szerinti kialakításra
További információk
- Azonnal birtokba vehető – gyors költözésre alkalmas
- Tehermentes
- Nincs közös költség
Budakeszi (németül: Wudigess)
Város a budapesti agglomerációban, Pest vármegyében, a Budakeszi járás székhelye és második legnépesebb települése Budaörs után.
Földrajza
A Budakeszi-medence északkeleti részén felépült települést keleti, északi és nyugati irányból hegyek határolják: a Biai-hegy, a Kis-Kopasz, a Nagy-Hárs-hegy és a János-hegy. Déli irányból a Budakeszi-árok löszös felszínű völgye található enyhén tagolt domborzattal.
Szomszédos települések: Budapest (II. és XII. kerület), Budaörs, Biatorbágy, Páty, Nagykovácsi és Remeteszőlős. Szintén szomszédosnak számít a közvetlenül nem határos Telki is.
Az alaprajz tájékoztató jellegű kisseb vltoztatások miatt.
Regisztrációs szám
H505805
Az ingatlan adatai
Értékesités
eladó
Jogi státusz
használt
Jelleg
lakás
Építési mód
tégla
Méret
204 m²
Bruttó méret
270 m²
Terasz / erkély mérete
30,9 m²
Kert méret
100 m²
Fűtés
Gáz cirkó
Belmagasság
270 cm
Lakáson belüli szintszám
3
Tájolás
Dél
Panoráma
Zöldre néző panoráma
Lépcsőház típusa
nincs
Állapot
Átlagos
Homlokzat állapota
Átlagos
Lépcsőház állapota
Átlagos
Környék
csendes, jó közlekedés, zöld, központi
Építés éve
1998
Fürdőszobák száma
2
Fekvés
kertre néző
Társaház kert
igen
Garázs
Benne van az árban
Garázs férőhely
2
Víz
Van
Gáz
Van
Villany
Van
Csatorna
Van
Kertkapcsolatos
igen
Tároló
Önálló
Helyiségek
nappali
31.8 m²
ebédlő
12.6 m²
konyha
8.8 m²
hálószoba
9.8 m²
erkély
2 m²
fürdőszoba-wc
4.6 m²
kamra
2.05 m²
előszoba
5.2 m²
terasz
22.9 m²
hálószoba
15.3 m²
hálószoba
11.13 m²
hálószoba
21.6 m²
fürdőszoba-wc
7.26 m²
közlekedő
12.15 m²
erkély
8 m²
garázs
38.4 m²
háztartási helyiség
16.65 m²
tároló
11.42 m²
gardrób
11.42 m²
közlekedő
9.6 m²
előszoba
5.5 m²

Ruczek Krisztina
Hitelszakértő