Elérhető Otthon Start hitellel
Eladó családi ház, H505306
Beregdaróc

13 500 000 Ft

36 000 €

  • 97m²
  • 3 szoba
Kiemelt megbízás

Beregdarócon – 3 szobás ház eladó!

Beregdaróc csendes és barátságos településén kínálunk eladásra egy kivételes lehetőséget, amely ideális választás lehet családok számára. Az ingatlan nettó 97 nm alapterületű, három tágas szobával rendelkezik, így bőséges teret biztosít az otthonos életvitelhez. A fürdőszoba tusolóval , sarokkáddal rendelkezik, amely minden igényt kielégít. A ház állapota jó, így azonnal költözhető, a fűtésről gázkonvektor illetve vegyestüzelésű kazán gondoskodik, amely gazdaságos megoldást jelent a téli hónapokban. A nagy udvar ideális helyszín lehet gyermekek számára a játékra, vagy akár kertészkedésre is. Itt még hosszan lenyúló melléképületek találhatóak , mögötte diófákkal beültetve.
A ház elhelyezkedése kiváló, hiszen a környék csendes, biztonságos, így a nyugodt életvitel kedvelőinek is ideális választás. Beregdaróc közlekedési lehetőségei is kedvezőek, a település jól megközelíthető autóval, de a tömegközlekedés is biztosított, így a közeli városok könnyen elérhetők.
Kérdés esetén hívjon!

Regisztrációs szám

H505306

Az ingatlan adatai

Értékesités
eladó
Jogi státusz
használt
Jelleg
ház
Építési mód
vegyesfalazatú
Méret
97 m²
Bruttó méret
116 m²
Telek méret
2 892 m²
Fűtés
gázkonvektor
Belmagasság
270 cm
Tájolás
Észak
Állapot
Homlokzat állapota
Környék
csendes, jó közlekedés
Építés éve
1970
Fürdőszobák száma
1
Víz
Van
Gáz
Van
Villany
Van

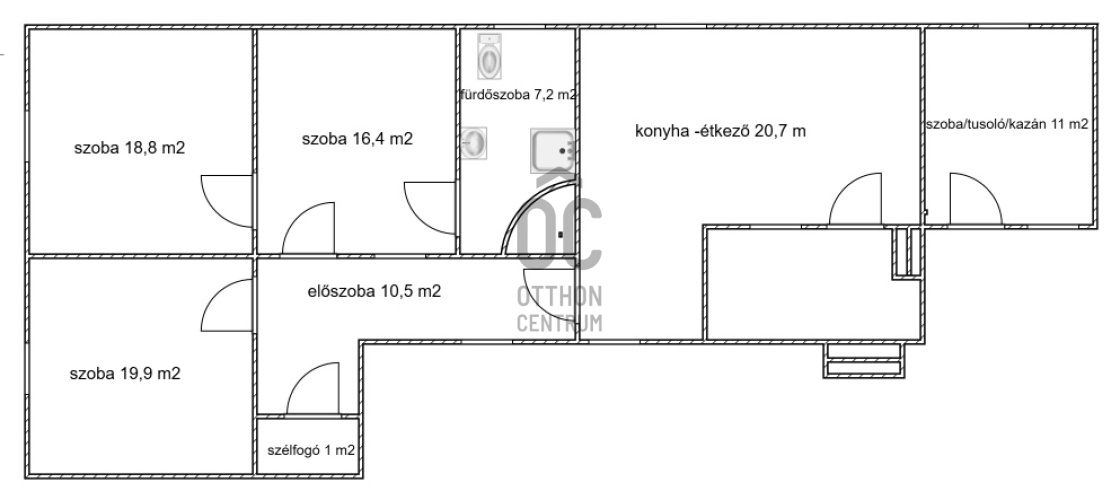
Helyiségek

szoba
18.8 m²
szoba
19.9 m²
szoba
16.4 m²
előszoba
10.5 m²
fürdőszoba-wc
7.2 m²
előszoba
2.2 m²
konyha-étkező
207 m²

Irodánk kínálatából - Vásárosnamény

for sale family house

Index image
data_sheet.details.realestate.section.main.otthonstart_flag.label
11

for sale new construction family house

Index image
data_sheet.details.realestate.section.main.otthonstart_flag.label
6

for sale family house

Index image
data_sheet.details.realestate.section.main.otthonstart_flag.label
27

for sale family house

Index image
data_sheet.details.realestate.section.main.otthonstart_flag.label
13

for sale family house

Index image
data_sheet.details.realestate.section.main.otthonstart_flag.label
17

for sale family house

Index image
data_sheet.details.realestate.section.main.otthonstart_flag.label
23

for sale family house

Index image
data_sheet.details.realestate.section.main.otthonstart_flag.label
30