Elérhető Otthon Start hitellel
Eladó családi ház,
H504504
Halásztelek
46 990 000 Ft
123 000 €
- 45m²
- 2 szoba
Eladó Halásztelken kétgenerációs családi ház csendes, jól megközelíthető környezetben!
Halásztelken található ez az ideális otthon mindazok számára, akik kisebb házat keresnek, de fontos számukra a külön lakrész, a tágas kert és a kiváló elhelyezkedés.
Ingatlan jellemzői:
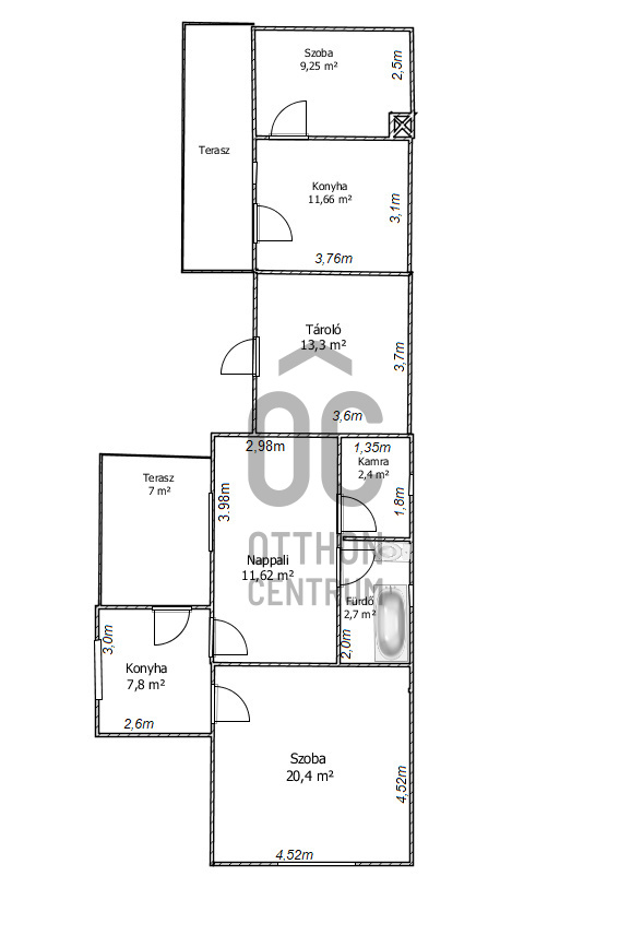
Főépület: 45 m²-es nettó alapterületű téglaépítésű ház, cserép tetőfedéssel.
Helyiségek: konyha, nappali, hálószoba, fürdőszoba, kamra.
Betonfödém, a tető nem szigetelt.
Közművek: Teljes közművel ellátott (víz, villany, gáz, csatorna).
Különálló lakrész:
Alapterület: 20,9 m².
Közművek: Víz és villany bekötve.
Fűtés: Fatüzeléssel megoldott.
Tároló: A ház mellett található 13,3 m²-es tároló.
Telek: 576 m²-es, tágas, gondozható kert.
Kert és környezet:
A ház egy 576 m²-es kerttel rendelkezik, amely tágas teret biztosít kertészkedéshez, szabadidős tevékenységekhez vagy akár további fejlesztésekhez.
Az ingatlan összközműves, így minden modern kényelmi szolgáltatás rendelkezésre áll.
Elhelyezkedés:
Kiváló infrastruktúra: Az ingatlan közelében található általános iskola, könyvtár, játszótér, étterem, valamint buszmegálló, amelyek mind pár perc sétával elérhetők.
Csendes környék: az utcában nyugodt, családbarát környezet várja az új lakókat.
Ne hagyja ki ezt a remek lehetőséget!
Bővebb információért és megtekintésért hívjon bizalommal! Amennyiben hitelre van szüksége, bankfüggetlen kollégáim díjmentesen állnak rendelkezésére!
Eza z ingatlan egyedi konstrukcióban elérhető, további információk a honlapunkon: https://www.oc.hu/felezocsomag
Halásztelken található ez az ideális otthon mindazok számára, akik kisebb házat keresnek, de fontos számukra a külön lakrész, a tágas kert és a kiváló elhelyezkedés.
Ingatlan jellemzői:
Főépület: 45 m²-es nettó alapterületű téglaépítésű ház, cserép tetőfedéssel.
Helyiségek: konyha, nappali, hálószoba, fürdőszoba, kamra.
Betonfödém, a tető nem szigetelt.
Közművek: Teljes közművel ellátott (víz, villany, gáz, csatorna).
Különálló lakrész:
Alapterület: 20,9 m².
Közművek: Víz és villany bekötve.
Fűtés: Fatüzeléssel megoldott.
Tároló: A ház mellett található 13,3 m²-es tároló.
Telek: 576 m²-es, tágas, gondozható kert.
Kert és környezet:
A ház egy 576 m²-es kerttel rendelkezik, amely tágas teret biztosít kertészkedéshez, szabadidős tevékenységekhez vagy akár további fejlesztésekhez.
Az ingatlan összközműves, így minden modern kényelmi szolgáltatás rendelkezésre áll.
Elhelyezkedés:
Kiváló infrastruktúra: Az ingatlan közelében található általános iskola, könyvtár, játszótér, étterem, valamint buszmegálló, amelyek mind pár perc sétával elérhetők.
Csendes környék: az utcában nyugodt, családbarát környezet várja az új lakókat.
Ne hagyja ki ezt a remek lehetőséget!
Bővebb információért és megtekintésért hívjon bizalommal! Amennyiben hitelre van szüksége, bankfüggetlen kollégáim díjmentesen állnak rendelkezésére!
Eza z ingatlan egyedi konstrukcióban elérhető, további információk a honlapunkon: https://www.oc.hu/felezocsomag
Regisztrációs szám
H504504
Az ingatlan adatai
Értékesités
eladó
Jogi státusz
használt
Jelleg
ház
Építési mód
tégla
Méret
45 m²
Bruttó méret
52 m²
Telek méret
576 m²
Terasz / erkély mérete
7 m²
Fűtés
gázkonvektor
Belmagasság
270 cm
Tájolás
Dél-kelet
Állapot
Átlagos
Homlokzat állapota
Átlagos
Építés éve
1980
Fürdőszobák száma
1
Víz
Van
Gáz
Van
Villany
Van
Csatorna
Van
Tároló
Önálló
Vízpart távolsága
500 méterre
Helyiségek
konyha
7.8 m²
nappali
11.62 m²
szoba
20.4 m²
fürdőszoba-wc
2.7 m²
kamra
2.43 m²
Joó Krisztina
Hitelszakértő