Elérhető Otthon Start hitellel
Eladó családi ház,
H502593
Siófok, Fokihegy
149 900 000 Ft
386 000 €
- 375m²
- 7 szoba

































































Árcsökkenés!!!Eladó luxus családi ház Siófok Széplak részén – medencével, jakuzzival, dupla garázzsal!
Siófok egyik legkeresettebb, exkluzív városrészében, Széplakon kínálunk megvételre egy minden igényt kielégítő, háromszintes, teljes körűen felújított luxus családi házat – 700 nm-es telekkel, elsőrangú műszaki és esztétikai állapotban.
Külső adottságok
A ház csendes, elegáns utcában található, kiváló szomszédsággal.
A gondosan karbantartott telek mediterrán hangulatot áraszt: a medencés terasz, a jakuzzival felszerelt télikert.
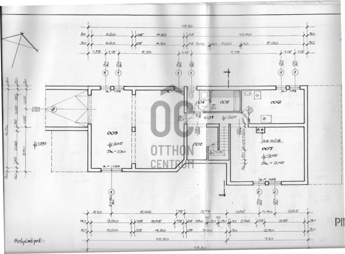
Belső terek – 3 szinten a kényelem és luxus jegyében/375 nm/
Földszint:
Tágas amerikai stílusú nappali konyhával és étkezővel, ízléses, modern beépített bútorzattal, magas minőségű konyhagépekkel
Stílusos fürdőszoba üvegparavános káddal, dupla mosdóval
Előszoba, közlekedő, lépcsőház
Látványos télikert mini bárral és jakuzzival – közvetlen kapcsolat a medencés teraszhoz
+1 külön lakosztály: amerikai konyhás nappali, hálószoba, saját fürdőszoba + WC és terasz – tökéletes vendégek, idősebb családtagok vagy kiadás céljára
Emelet:
Galériás nappali, mely természetes fénnyel árasztja el a teret
3 különálló hálószoba – mindegyik saját fürdőszobával
Erkély, közlekedő, lépcsőház – tágas, kényelmes térérzet
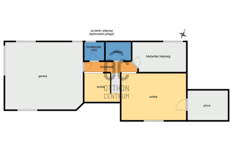
Alagsor:
Dupla garázs elektromos kapuval
Mosókonyha és kazánház
Fürdő, szauna, borospince és pihenőszoba – wellness az otthonában!
Műszaki felszereltség, extra kényelmi funkciók:
Elektromos redőnyök és szúnyoghálók minden nyílászárón
Korszerű kamerarendszer
Padlófűtés az egész házban, fatüzelésű kandalló a nappaliban
Klímaberendezések
Prémium kategóriás beltéri ajtók
Három elektromos nagykapu, kaputelefonos gyalogos bejárat
Külön Helyrajzi számú 1000 nm-es telek tartozik az ingatlanhoz ami külön eladó 50 M-ért , de házzal együtt is megvásárolható kedvezményes áron!Rajta van frissen épült felszerelt nyári konyha.
Kinek ajánljuk?
Ez az ingatlan ideális választás többgenerációs családoknak, de kiváló lehetőség befektetők számára is – akár hosszú távú kiadásra, akár nyaraltatásra. Az elrendezés rugalmas, külön életterek biztosítják a kényelmet több lakó számára is.
Ne hagyja ki ezt a páratlan lehetőséget! Amennyiben felkeltette érdeklődését, hívjon bizalommal a további információkért vagy időpont egyeztetésért!
Ingyenes hitelügyintézés – Használja ki a kedvező lehetőséget!
Szakértő hitelügyintézőnk díjmentesen segít Önnek a hitel felvételének teljes folyamatában – a megfelelő konstrukció kiválasztásától a benyújtáshoz szükséges dokumentumok összeállításáig.
Szeptembertől elérhető egy rendkívül kedvező, mindössze 3%-os kamatozású hitel, amely kiváló lehetőséget nyújt lakásvásárláshoz, felújításhoz, vagy más nagyobb cél megvalósításához.
Ne hagyja ki ezt a kedvező alkalmat – kérjen időpontot még ma, és éljen a támogatott hitellehetőséggel!
Készen állsz a személyes megtekintésre? Hívj bizalommal!
Külső adottságok
A ház csendes, elegáns utcában található, kiváló szomszédsággal.
A gondosan karbantartott telek mediterrán hangulatot áraszt: a medencés terasz, a jakuzzival felszerelt télikert.
Belső terek – 3 szinten a kényelem és luxus jegyében/375 nm/
Földszint:
Tágas amerikai stílusú nappali konyhával és étkezővel, ízléses, modern beépített bútorzattal, magas minőségű konyhagépekkel
Stílusos fürdőszoba üvegparavános káddal, dupla mosdóval
Előszoba, közlekedő, lépcsőház
Látványos télikert mini bárral és jakuzzival – közvetlen kapcsolat a medencés teraszhoz
+1 külön lakosztály: amerikai konyhás nappali, hálószoba, saját fürdőszoba + WC és terasz – tökéletes vendégek, idősebb családtagok vagy kiadás céljára
Emelet:
Galériás nappali, mely természetes fénnyel árasztja el a teret
3 különálló hálószoba – mindegyik saját fürdőszobával
Erkély, közlekedő, lépcsőház – tágas, kényelmes térérzet
Alagsor:
Dupla garázs elektromos kapuval
Mosókonyha és kazánház
Fürdő, szauna, borospince és pihenőszoba – wellness az otthonában!
Műszaki felszereltség, extra kényelmi funkciók:
Elektromos redőnyök és szúnyoghálók minden nyílászárón
Korszerű kamerarendszer
Padlófűtés az egész házban, fatüzelésű kandalló a nappaliban
Klímaberendezések
Prémium kategóriás beltéri ajtók
Három elektromos nagykapu, kaputelefonos gyalogos bejárat
Külön Helyrajzi számú 1000 nm-es telek tartozik az ingatlanhoz ami külön eladó 50 M-ért , de házzal együtt is megvásárolható kedvezményes áron!Rajta van frissen épült felszerelt nyári konyha.
Kinek ajánljuk?
Ez az ingatlan ideális választás többgenerációs családoknak, de kiváló lehetőség befektetők számára is – akár hosszú távú kiadásra, akár nyaraltatásra. Az elrendezés rugalmas, külön életterek biztosítják a kényelmet több lakó számára is.
Ne hagyja ki ezt a páratlan lehetőséget! Amennyiben felkeltette érdeklődését, hívjon bizalommal a további információkért vagy időpont egyeztetésért!
Ingyenes hitelügyintézés – Használja ki a kedvező lehetőséget!
Szakértő hitelügyintézőnk díjmentesen segít Önnek a hitel felvételének teljes folyamatában – a megfelelő konstrukció kiválasztásától a benyújtáshoz szükséges dokumentumok összeállításáig.
Szeptembertől elérhető egy rendkívül kedvező, mindössze 3%-os kamatozású hitel, amely kiváló lehetőséget nyújt lakásvásárláshoz, felújításhoz, vagy más nagyobb cél megvalósításához.
Ne hagyja ki ezt a kedvező alkalmat – kérjen időpontot még ma, és éljen a támogatott hitellehetőséggel!
Készen állsz a személyes megtekintésre? Hívj bizalommal!
Regisztrációs szám
H502593
Az ingatlan adatai
Értékesités
eladó
Jogi státusz
használt
Jelleg
ház
Építési mód
tégla
Méret
375 m²
Bruttó méret
450 m²
Telek méret
807 m²
Fűtés
Gáz cirkó
Belmagasság
280 cm
Lakáson belüli szintszám
3
Tájolás
Nyugat
Állapot
Kiváló
Homlokzat állapota
Kiváló
Pince
Önálló
Környék
csendes, jó közlekedés, zöld
Építés éve
1998
Fürdőszobák száma
6
Garázs
Benne van az árban
Garázs férőhely
2
Fedett beállók száma
1
Víz
Van
Gáz
Van
Villany
Van
Csatorna
Van
Többgenerációs
igen
Tároló
Önálló
Vízpart távolsága
több mint 500 méterre
Helyiségek
nappali-étkező
40 m²
konyha
20 m²
előszoba
10 m²
fürdőszoba-wc
5 m²
nappali-konyha
16 m²
közlekedő
10 m²
télikert
20 m²
fürdőszoba-wc
5 m²
szoba
24 m²
szoba
15 m²
szoba
16 m²
nappali
30 m²
fürdőszoba-wc
6 m²
fürdőszoba-wc
6 m²
fürdőszoba-wc
7 m²
garázs
40 m²
fürdőszoba-wc
7 m²
szoba
20 m²
szoba
10 m²
borospince
8 m²
mosókonyha
10 m²
háztartási helyiség
10 m²
szauna
6 m²
terasz
30 m²
terasz
10 m²
erkély
10 m²