149 000 000 Ft
381 000 €
- 130,7m²
- 5 szoba
- földszint














Zugló csendes szívében – tágas, világos otthon két generációnak is!
Eladó a 14. kerületében, Alsórákoson, csendes, zöld, kertvárosi környezetben egy belső kétszintes, 131 m2-es + 10 nm fedett terasszal rendelkező tégla lakás!
LAKÁS:
- Ha csak költözni szeretne, nem pedig felújítani, megtalálta a tökéletes ingatlant
- Kifejezetten világos fekvésének és hatalmas ablakainak köszöhetően
- Az ingatlan szintenként külön bejárattal is rendelkezik, így könnyedén kétgenerációssá alakítható
- 2023-ban felújításon esett át, ami érintette a nappalit és a konyhát - újszerű, gépesített konyhabútor
- Az elektromos hálózat bővítése is megtörtént - 3 x 25 amper
- 2024-ben új Bosch kondenzációs kazán került beépítésre, kéménybéleléssel együtt
- Fa nyílászárók és tömörfa belső ajtók fokozzák az otthonos hangulatot
- Mindkét hálószobában beépített, fenyőfa szekrény található
- A minőség jegyében, 1995-ben épült társasház rendezett, tiszta, karbantartott
- A lakáshoz 2 nyitott autóbeálló tartozik, ami az ár részét képezi
- Saját helyrajziszámmal rendelkezik, 1/1-es tulajdon
- Per-, teher- és igénymentes, azonnal költözhető
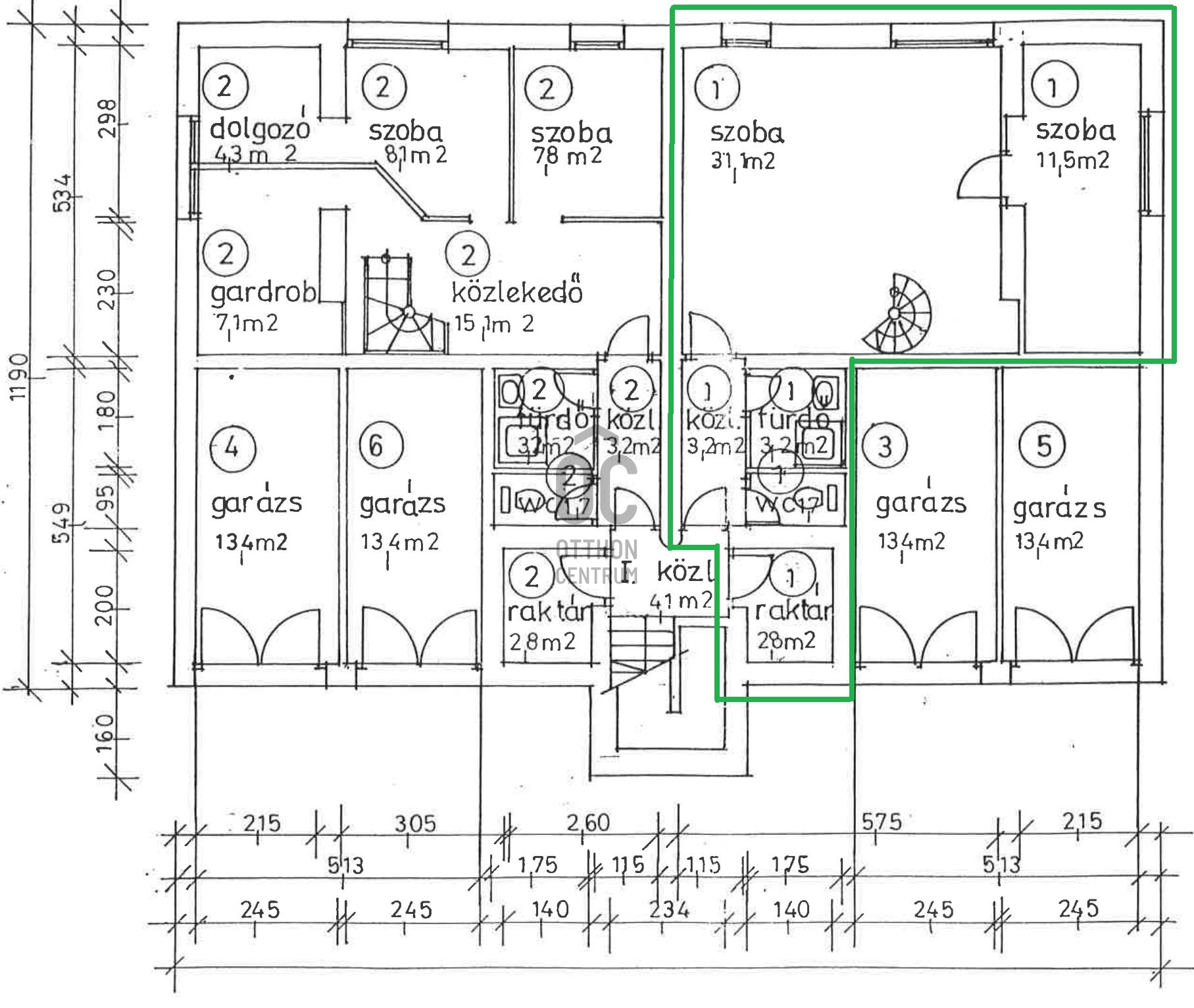
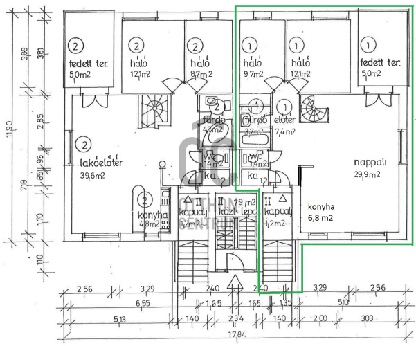
FELSŐ SZINT (magasföldszint, 72 nm):
- A praktikus elrendezés része 1 nagyobb méretű nappali és 2 tágas hálószoba, melyek kényelmes lakóteret nyújtanak
- A nappaliból nyíló fedett terasz tökéletes nyugodt reggeli kávézáshoz, vagy akár esti borozgatáshoz
ALSÓ SZINT (félszuterén, 52 nm):
- Jelenleg tárolóként funkcionál, de lakótérré alakítható
- Külön bejárattal és belső lépcsővel is megközelíthető.
- 2 szoba, saját fürdőszoba és WC is található itt – ideális kétgenerációs használatra
KÖRNYÉK, KÖZLEKEDÉS
- Zugló legkedveltebb kertvárosi része, nyugodt, csendes, biztonságos, családias környék
- Minden könnyedén elérhető, ami a mindennapi élethez szükséges - Általános iskola, óvoda, rendelő, gyógyszertár, bevásárlási lehetőségek, tömegközlekedés stb.
- Az aktív élet kedvelőinek a Rákos-patak partja 3 perc sétával elérhető, ami nagyszerű lehetőséget nyújt akár kutyasétáltatásra, futni, vagy biciklizni vágyóknak egyaránt
- Tömegközlekedés: buszok - 5, 7, 8E, 124, 125, 133E, 277, valamint villamosok - 62, 62A, 69 pár perc alatt elérhetőek
- Autóval: Paskál strand 5 perc, Pólus Center 10 perc, Örs vezér tere, Árkád, Ikea, Sugár, valamint a Városligeti sportpálya 15 perc alatt elérhető
Ajánlom mindazoknak, akik csendes, zöld, biztonságos környezetre vágynak Zugló szívében.
Amennyiben elnyerte tetszését és szeretné megtekinteni az ingatlant, hívjon bizalommal!
LAKÁS:
- Ha csak költözni szeretne, nem pedig felújítani, megtalálta a tökéletes ingatlant
- Kifejezetten világos fekvésének és hatalmas ablakainak köszöhetően
- Az ingatlan szintenként külön bejárattal is rendelkezik, így könnyedén kétgenerációssá alakítható
- 2023-ban felújításon esett át, ami érintette a nappalit és a konyhát - újszerű, gépesített konyhabútor
- Az elektromos hálózat bővítése is megtörtént - 3 x 25 amper
- 2024-ben új Bosch kondenzációs kazán került beépítésre, kéménybéleléssel együtt
- Fa nyílászárók és tömörfa belső ajtók fokozzák az otthonos hangulatot
- Mindkét hálószobában beépített, fenyőfa szekrény található
- A minőség jegyében, 1995-ben épült társasház rendezett, tiszta, karbantartott
- A lakáshoz 2 nyitott autóbeálló tartozik, ami az ár részét képezi
- Saját helyrajziszámmal rendelkezik, 1/1-es tulajdon
- Per-, teher- és igénymentes, azonnal költözhető
FELSŐ SZINT (magasföldszint, 72 nm):
- A praktikus elrendezés része 1 nagyobb méretű nappali és 2 tágas hálószoba, melyek kényelmes lakóteret nyújtanak
- A nappaliból nyíló fedett terasz tökéletes nyugodt reggeli kávézáshoz, vagy akár esti borozgatáshoz
ALSÓ SZINT (félszuterén, 52 nm):
- Jelenleg tárolóként funkcionál, de lakótérré alakítható
- Külön bejárattal és belső lépcsővel is megközelíthető.
- 2 szoba, saját fürdőszoba és WC is található itt – ideális kétgenerációs használatra
KÖRNYÉK, KÖZLEKEDÉS
- Zugló legkedveltebb kertvárosi része, nyugodt, csendes, biztonságos, családias környék
- Minden könnyedén elérhető, ami a mindennapi élethez szükséges - Általános iskola, óvoda, rendelő, gyógyszertár, bevásárlási lehetőségek, tömegközlekedés stb.
- Az aktív élet kedvelőinek a Rákos-patak partja 3 perc sétával elérhető, ami nagyszerű lehetőséget nyújt akár kutyasétáltatásra, futni, vagy biciklizni vágyóknak egyaránt
- Tömegközlekedés: buszok - 5, 7, 8E, 124, 125, 133E, 277, valamint villamosok - 62, 62A, 69 pár perc alatt elérhetőek
- Autóval: Paskál strand 5 perc, Pólus Center 10 perc, Örs vezér tere, Árkád, Ikea, Sugár, valamint a Városligeti sportpálya 15 perc alatt elérhető
Ajánlom mindazoknak, akik csendes, zöld, biztonságos környezetre vágynak Zugló szívében.
Amennyiben elnyerte tetszését és szeretné megtekinteni az ingatlant, hívjon bizalommal!
Regisztrációs szám
H501291
Az ingatlan adatai
Értékesités
eladó
Jogi státusz
használt
Jelleg
lakás
Építési mód
tégla
Méret
130,7 m²
Bruttó méret
140,7 m²
Terasz / erkély mérete
10 m²
Fűtés
gáz kazán
Belmagasság
270 cm
Lakáson belüli szintszám
1
Tájolás
Dél-nyugat
Panoráma
Zöldre néző panoráma
Lépcsőház típusa
zárt lépcsőház
Állapot
Kiváló
Homlokzat állapota
Jó
Lépcsőház állapota
Jó
Környék
csendes, jó közlekedés, zöld
Építés éve
1995
Fürdőszobák száma
2
Fekvés
kertre néző
Társaház kert
igen
Közös költség
25000
Garázs
Benne van az árban
Víz
Van
Gáz
Van
Villany
Van
Csatorna
Van
Helyiségek
előszoba
7.4 m²
kamra
1.2 m²
wc
1.4 m²
fürdőszoba-wc
3.7 m²
nappali-konyha
32.7 m²
szoba
12.1 m²
szoba
9.7 m²
terasz
10 m²
közlekedő
3.2 m²
szoba
31.1 m²
szoba
11.5 m²
tároló
2.8 m²
fürdőszoba
3.2 m²
wc
1.7 m²
garázs
13.4 m²
garázs
13.4 m²

Durucskó Gabriella
Hitelszakértő