Eladó lakás, H501230
Budapest VI. kerület, Belső VI., Bajcsy-Zsilinszky út

75 000 000 Ft

193 000 €

  • 40m²
  • 1 szoba
  • 1. emelet
Kiemelt megbízás

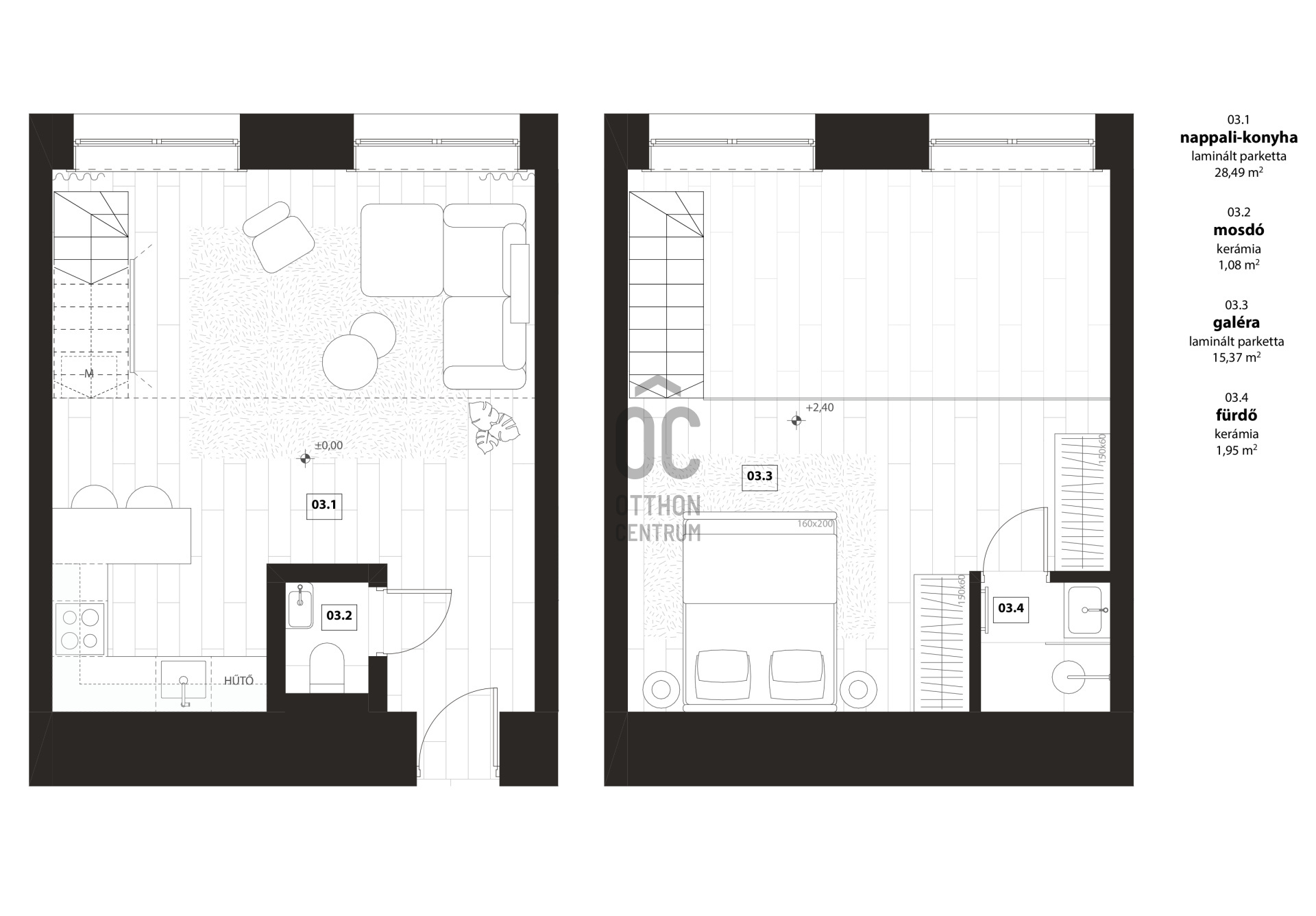
In the city center of Budapest, on Nagymező Street in the VI district, a 55m2 first-floor apartment is for sale. The apartment faces the street, is bright, and due to its high ceiling, the property has two levels. The apartment will be handed over fully furnished and equipped, making it immediately rentable upon completion. Excellent location: Opera House, Andrássy Avenue, metro just a few minutes away. Important: In addition to this apartment, there are 2 more apartments for sale. 1st apartment: 50m2 for 75 million HUF 2nd apartment: 47m2 for 75 million HUF Therefore, the property can also be purchased as a whole, making it available as an excellent investment package consisting of multiple rental units that ensure a great return. We offer tailored home loans to meet your unique needs. Our bank-independent Loan Center competes for you with offers from all banks and financial institutions available in the country, free of charge. Our colleagues, with extensive professional experience, are ready to assist you at a pre-arranged time, even after normal working hours. For more information and to schedule a viewing, please call us with confidence!

Regisztrációs szám

H501230

Az ingatlan adatai

Értékesités
eladó
Jogi státusz
használt
Jelleg
lakás
Építési mód
tégla
Méret
40 m²
Bruttó méret
55 m²
Fűtés
elektromos fan-coil
Belmagasság
450 cm
Lakáson belüli szintszám
1
Tájolás
Dél
Lépcsőház típusa
zárt lépcsőház
Állapot
Kiváló
Homlokzat állapota
Kiváló
Lépcsőház állapota
Környék
jó közlekedés, központi
Építés éve
1900
Fürdőszobák száma
1
Fekvés
utcai
Közös költség
10000
Víz
Van
Villany
Van
Csatorna
Van
Lift
van

Helyiségek

előszoba
7 m²
nappali-konyha
29 m²
galéria
16 m²
fürdőszoba
2 m²
wc
1 m²

Irodánk kínálatából - VII. kerület - Kertész utca

for rent apartment

Index image
25

for sale apartment

Index image
13

for sale apartment

Index image
data_sheet.details.realestate.section.main.otthonstart_flag.label
15

for sale plot

Index image
4

eladó lakás

Index image
15

Gárdonyi projekt

Index image
5

for sale apartment

Index image
19

for sale apartment

Index image
16