142 000 000 Ft
366 000 €
- 86m²
- 2 szoba
- 4. emelet







































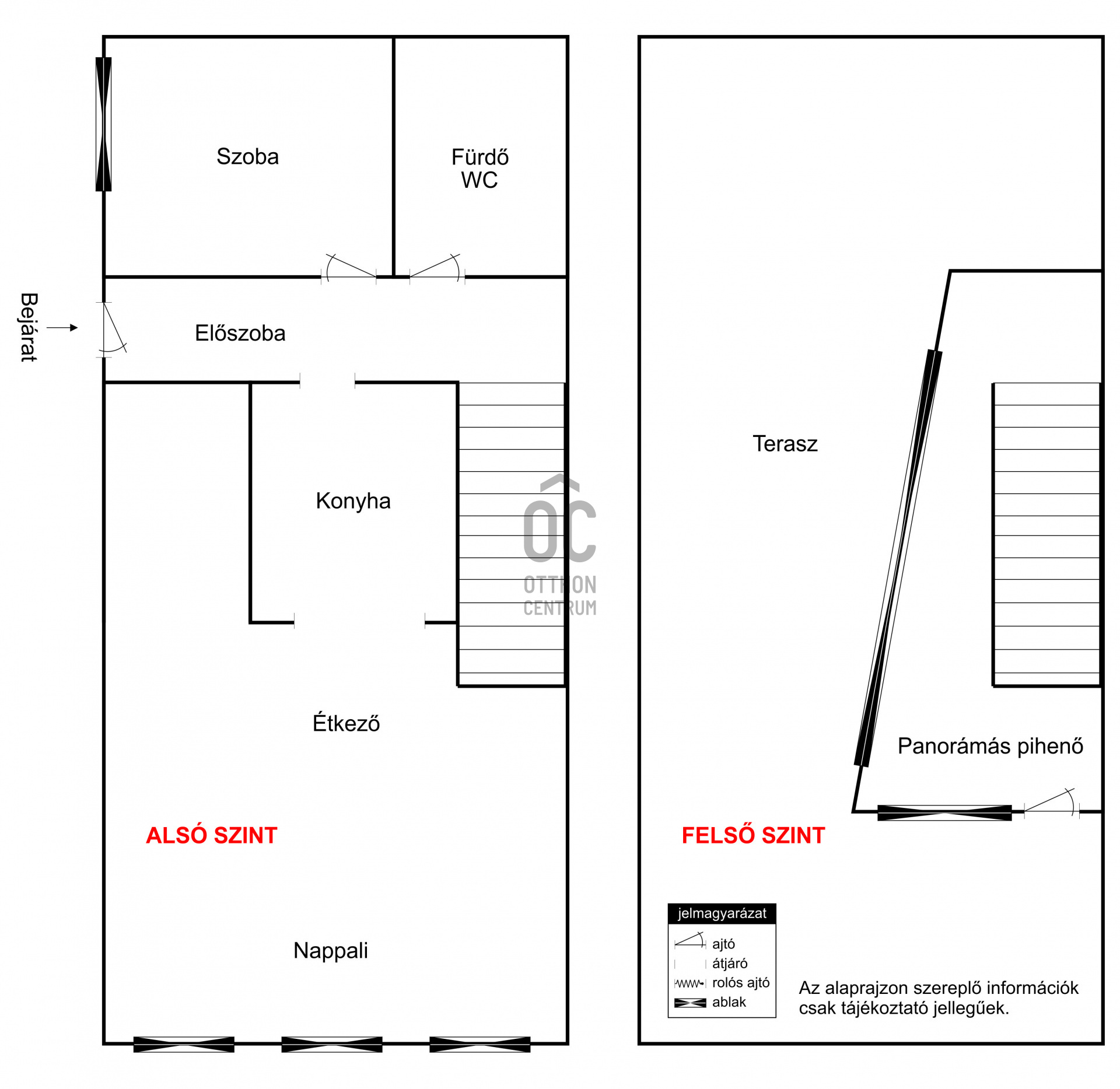
Eladóvá vált a belváros szívében a Deák tér közvetlen közelében, a Paulay Ede utcában egy igényesen rendben tartott ház 4. emeletén egy Loft stílusú lakás. Az alsó szint 86 nm-es ahol egy tágas, egyben fényes nappaliban találhatjuk magunkat ami különleges stílusával exclusive hangulatot nyújt. Emellett pedig egy hálószobának kialakított helységgel büszkélkedik az ingatlan. Gyönyörű és minőségi építő anyagokkal még egy plusz életérzést adhat környezetünknek. Egy kényelmesen kialakított lépcsőn érhetünk fel a dolgozó szobába és a városra néző 75 nm-es panorámás teraszra, amely abszolút kedvezően kialakítható bármely igény szerint. Az udvaron lehetőség van a parkolásra, a lakás tulajdonosának.
Amennyiben Felkeltettem az érdeklődését hívjon nyugodtan.
Amennyiben Felkeltettem az érdeklődését hívjon nyugodtan.
Regisztrációs szám
H500959
Az ingatlan adatai
Értékesités
eladó
Jogi státusz
használt
Jelleg
lakás
Építési mód
tégla
Méret
86 m²
Bruttó méret
95 m²
Fűtés
Gáz cirkó
Belmagasság
300 cm
Lakáson belüli szintszám
2
Tájolás
Dél-nyugat
Lépcsőház típusa
körfolyosó
Állapot
Kiváló
Homlokzat állapota
Kiváló
Lépcsőház állapota
Kiváló
Építés éve
1950
Fürdőszobák száma
1
Fekvés
utcai
Közös költség
24850
Víz
Van
Gáz
Van
Villany
Van
Csatorna
Van
Lift
van
Helyiségek
szoba
12 m²
nappali
50 m²
fürdőszoba-wc
7 m²
gardrób
4 m²
konyha
8 m²
előszoba
10 m²
lépcsőház
10 m²
dolgozószoba
7 m²

Torday Tibor
Hitelszakértő