193 500 000 Ft
498 000 €
- 123m²
- 3 szoba
- 1. emelet






















Nagypolgári lakás a Pesti Belvárosban
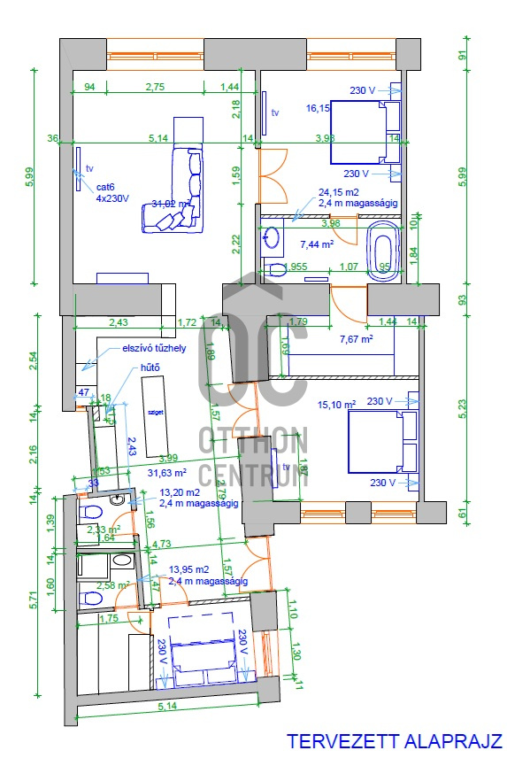
Az V. kerület legkedveltebb részén, a Váci utca szomszédságában, Párizsi utcára néző, első emeleti, 3 szobás lakást kínálok eladásra. A 123 négyzetméteres ingatlan egy századfordulón épült, átlagos állapotú liftes ház első emeletén található. A lakás hosszú ideje nem lakott, legutóbb vélelmezhetően irodai célra használták. A ház megőrizte századfordulós hangulatát, ahogy a lakásban található nyílászárók, zárszerkezetek is erről tanúskodnak. Korábban kombi cirkó berendezés, klíma berendezés is működött itt. Három fázisú elektromos hálózat van. Közös költsége 40.500 Ft havonta. Az ingatlan jelenlegi állapotában nem lakható, teljes felújításra szorul. Az ingatlan tehermentes, azonnal költözhető. Amennyiben ilyen felújítandó, nagy belmagasságú (415 cm), akár két lakássá alakítható ingatlant keres remek helyen, liftes, belvárosi házban, várom hívását!
Regisztrációs szám
H500711
Az ingatlan adatai
Értékesités
eladó
Jogi státusz
használt
Jelleg
lakás
Építési mód
tégla
Méret
123 m²
Bruttó méret
123 m²
Fűtés
Gáz cirkó
Belmagasság
415 cm
Lakáson belüli szintszám
1
Tájolás
Észak-nyugat
Lépcsőház típusa
zárt lépcsőház
Állapot
Felújítandó
Homlokzat állapota
Átlagos
Lépcsőház állapota
Átlagos
Környék
csendes, jó közlekedés, központi
Építés éve
1898
Fürdőszobák száma
2
Fekvés
utcai
Közös költség
40500
Víz
Van
Gáz
Van
Villany
Van
Csatorna
Van
Lift
van
Helyiségek
konyha-étkező
35 m²
szoba
31 m²
szoba
24 m²
szoba
23 m²
fürdőszoba
7 m²
wc-kézmosó
2 m²

Bán Marianna
Hitelszakértő