109 000 000 Ft
279 000 €
- 103m²
- 4 szoba
- 2. emelet
















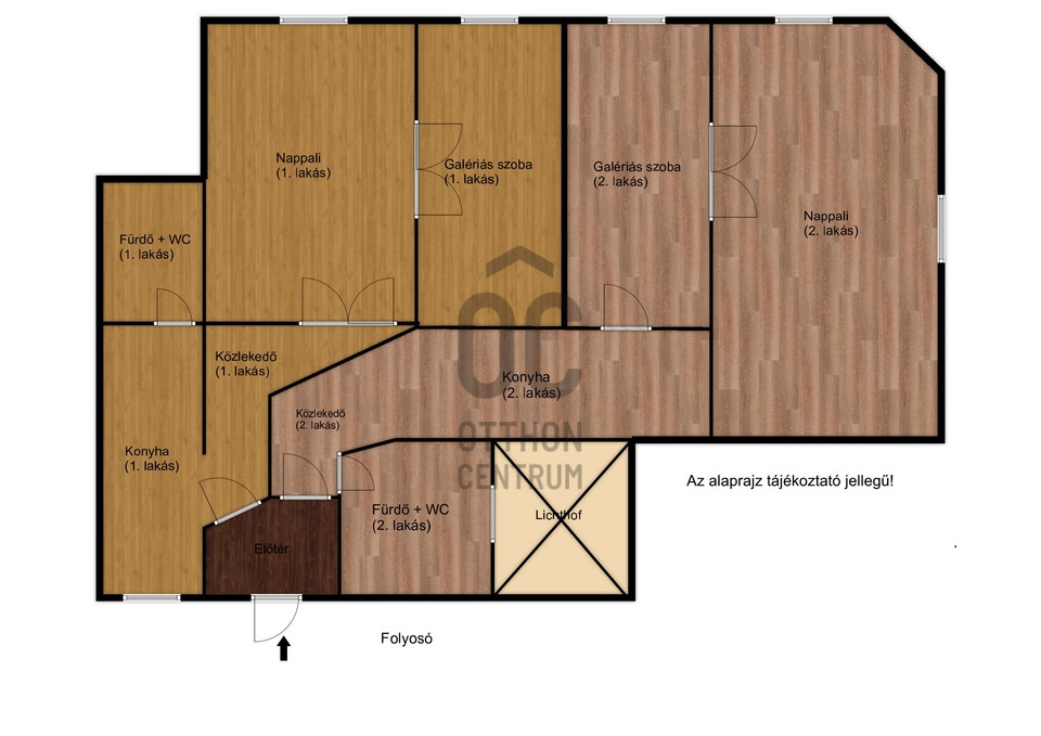
103 m² Property for Sale Near Stadionok – Easily Convertible into Two Separate Units
Prime location, excellent public transport, and a continuously developing neighborhood – all in one place, in District VIII near Stadionok.
Main features of the apartment:
- 103 m² brick-built apartment on the 2nd floor
- Currently divided into two separate units, each with its own entrance – ideal for renting out as two separate apartments
- Layout: 2x2 rooms (each with a gallery), 2x1 bathrooms with toilet, 2x1 kitchens
- Perfect choice for multi-generational living – together yet separate
- Easily reconfigurable into one large unit if desired – ideal for a larger family
Renovation and technical details:
- Fully renovated in the 2000s (including replacement of water, gas, and electrical systems)
- Gas boiler heating with radiators
- Nighttime electricity available
- A new electric water heater has also been installed
Additional features:
- Includes a private basement storage space of approx. 5–6 m²
- Solid, well-maintained brick building
- Neighborhood and infrastructure:
- Rapidly developing area with new apartment buildings under construction nearby
- Lidl supermarket just 1 minute away on foot
- Pharmacy located on the ground floor of the building facing the street
Excellent public transport connections:
- Trams 1 and 37
- Bus 75
- Night buses 901 and 918 also available nearby
Highly recommended for investors – the current layout allows for two apartments to be rented out simultaneously, ensuring stable, long-term income.
Ideal for large families – spacious, easily adaptable living space that flexibly meets various needs.
Feel free to call me! If I can't answer right away, I promise to return your call as soon as possible.
Main features of the apartment:
- 103 m² brick-built apartment on the 2nd floor
- Currently divided into two separate units, each with its own entrance – ideal for renting out as two separate apartments
- Layout: 2x2 rooms (each with a gallery), 2x1 bathrooms with toilet, 2x1 kitchens
- Perfect choice for multi-generational living – together yet separate
- Easily reconfigurable into one large unit if desired – ideal for a larger family
Renovation and technical details:
- Fully renovated in the 2000s (including replacement of water, gas, and electrical systems)
- Gas boiler heating with radiators
- Nighttime electricity available
- A new electric water heater has also been installed
Additional features:
- Includes a private basement storage space of approx. 5–6 m²
- Solid, well-maintained brick building
- Neighborhood and infrastructure:
- Rapidly developing area with new apartment buildings under construction nearby
- Lidl supermarket just 1 minute away on foot
- Pharmacy located on the ground floor of the building facing the street
Excellent public transport connections:
- Trams 1 and 37
- Bus 75
- Night buses 901 and 918 also available nearby
Highly recommended for investors – the current layout allows for two apartments to be rented out simultaneously, ensuring stable, long-term income.
Ideal for large families – spacious, easily adaptable living space that flexibly meets various needs.
Feel free to call me! If I can't answer right away, I promise to return your call as soon as possible.
Regisztrációs szám
H499132
Az ingatlan adatai
Értékesités
eladó
Jogi státusz
használt
Jelleg
lakás
Építési mód
tégla
Méret
103 m²
Bruttó méret
105 m²
Fűtés
Gáz cirkó
Belmagasság
260 cm
Tájolás
Kelet
Lépcsőház típusa
függőfolyosó
Állapot
Jó
Homlokzat állapota
Átlagos
Lépcsőház állapota
Átlagos
Pince
Önálló
Építés éve
1896
Fürdőszobák száma
2
Fekvés
utcai
Közös költség
32400
Víz
Van
Gáz
Van
Villany
Van
Csatorna
Van
Helyiségek
hálószoba
18 m²
hálószoba
10 m²
nappali
29 m²
ebédlő
14 m²
konyha
7.5 m²
konyha
7 m²
közlekedő
4 m²
közlekedő
2 m²
előszoba
4 m²
fürdőszoba-wc
4 m²
fürdőszoba-wc
8 m²