Elérhető Otthon Start hitellel
Eladó lakás,
H494534
Hajdúszoboszló, Fürdőnegyed
49 900 000 Ft
132 000 €
- 79m²
- 3 szoba
- földszint
Fedezze fel álmai otthonát Hajdúszoboszlón tágas 3 szobás házban a fürdőnegyed szívében!
Hajdúszoboszlón sorházi lakások eladók!
Jellemzői :
- 78 nm
- kétszintes
- tégla építésű
- az épület szigetelt ( 15 cm )
- a tető szigetelt
- műanyag nyílászárók
- fűtése klímával ( 5 db Daikin 3.5 Kw-os )
- Ariston villanybojler
Az 5 lakásos társasház külsőleg teljesen fel lett újítva,a de belső kialakítása a leendő tulajdonosok feladata.
Mindegyik lakáshoz saját kert és autóbeálló tartozik.
Plussz kocsibeálló vásárlása is lehetséges amelynek ára : 1.5 Mft
Infrastruktúrálisan nagyon jó elhelyezkedésű.
A fürdő bejárata 200 méter.
Helyben boltok,éttermek,buszvégállomás,Mátyás király sétány....stb...
A HÍRDETÉSI ADATOK ÉS AZ ALAPRAJZ TÁJÉKOZTATÓ JELLEGŰEK !
Amennyiben vásárláshoz hitelre is lenne szükséged van független hitel tanácsadónk aki ingyenesen tud Neked segítséget nyújtani a legjobb konstrukciók kiválasztásában és a folyamat lebonyolításában.
Irodánk kereső ügyfeleinknek teljes körű szolgáltatást nyújt, szakszerű tanácsadással, energetikai tanúsítvány elkészítésével, hitelügyintézéssel és profi ügyvédi segítséggel.
Fektess be a jövődbe Hajdúszoboszlón, a fürdőnegyed szívében található, kiváló adottságokkal rendelkező ingatlanunkkal!
Ez a lakás nemcsak otthonod lehet, hanem befektetési lehetőséget is kínál, hiszen a környék folyamatosan fejlődik, és a kereslet egyre nő.
Az ingatlan alapterülete 79 nm.
A házban három tágas szoba található, amelyek tökéletesen alkalmasak a családi élethez vagy vendégek fogadásához.
Két fürdőszoba áll rendelkezésre, így a reggeli készülődés sosem lesz gond.
A hűtésről és a fűtésről klíma gondoskodik ami a kényelmet és a hatékonyságot egyaránt szolgálja.
A környék ellátottsága kiváló, minden szükséges szolgáltatás, bolt, étterem és iskola a közelben található.
A közlekedési csomópont közelsége miatt a központi elhelyezkedés ideális választás mindazoknak, akik gyorsan és egyszerűen szeretnének eljutni a város különböző pontjaira.
A kitűnő közlekedési lehetőségek révén a munkahelyek, iskolák és a szórakozási lehetőségek könnyedén elérhetők, így a mindennapok során nem kell sokat vesződnöd az utazással. Hajdúszoboszló, különösen a fürdőnegyed, egy felkapott környék, ahol a turisták és a helyiek egyaránt megtalálják a számításaikat.
A gyógyfürdők közelsége, a szép parkok és a csendes utcák mind hozzájárulnak ahhoz, hogy itt élni egy igazi élmény legyen.
A biztonságos és nyugodt környezet ideális a családok számára, és a befektetők számára is vonzó lehetőségeket kínál.
Ne habozz, ha kérdéseid vannak, vagy szeretnéd megtekinteni ezt a kivételes ingatlant, bátran keress meg! Bizalommal állok rendelkezésedre, hogy segítségedre legyek a megfelelő döntés meghozatalában, legyen szó akár saját otthonodról, akár befektetési célú vásárlásról.
Az ingatlan piaca folyamatosan változik, és ez a lehetőség nem fog sokáig várni rád!
#hajdubiharvarmegye #hajduszoboszlo #3szoba #2furdoszoba #befektetes #fürdokozeli
Jellemzői :
- 78 nm
- kétszintes
- tégla építésű
- az épület szigetelt ( 15 cm )
- a tető szigetelt
- műanyag nyílászárók
- fűtése klímával ( 5 db Daikin 3.5 Kw-os )
- Ariston villanybojler
Az 5 lakásos társasház külsőleg teljesen fel lett újítva,a de belső kialakítása a leendő tulajdonosok feladata.
Mindegyik lakáshoz saját kert és autóbeálló tartozik.
Plussz kocsibeálló vásárlása is lehetséges amelynek ára : 1.5 Mft
Infrastruktúrálisan nagyon jó elhelyezkedésű.
A fürdő bejárata 200 méter.
Helyben boltok,éttermek,buszvégállomás,Mátyás király sétány....stb...
A HÍRDETÉSI ADATOK ÉS AZ ALAPRAJZ TÁJÉKOZTATÓ JELLEGŰEK !
Amennyiben vásárláshoz hitelre is lenne szükséged van független hitel tanácsadónk aki ingyenesen tud Neked segítséget nyújtani a legjobb konstrukciók kiválasztásában és a folyamat lebonyolításában.
Irodánk kereső ügyfeleinknek teljes körű szolgáltatást nyújt, szakszerű tanácsadással, energetikai tanúsítvány elkészítésével, hitelügyintézéssel és profi ügyvédi segítséggel.
Fektess be a jövődbe Hajdúszoboszlón, a fürdőnegyed szívében található, kiváló adottságokkal rendelkező ingatlanunkkal!
Ez a lakás nemcsak otthonod lehet, hanem befektetési lehetőséget is kínál, hiszen a környék folyamatosan fejlődik, és a kereslet egyre nő.
Az ingatlan alapterülete 79 nm.
A házban három tágas szoba található, amelyek tökéletesen alkalmasak a családi élethez vagy vendégek fogadásához.
Két fürdőszoba áll rendelkezésre, így a reggeli készülődés sosem lesz gond.
A hűtésről és a fűtésről klíma gondoskodik ami a kényelmet és a hatékonyságot egyaránt szolgálja.
A környék ellátottsága kiváló, minden szükséges szolgáltatás, bolt, étterem és iskola a közelben található.
A közlekedési csomópont közelsége miatt a központi elhelyezkedés ideális választás mindazoknak, akik gyorsan és egyszerűen szeretnének eljutni a város különböző pontjaira.
A kitűnő közlekedési lehetőségek révén a munkahelyek, iskolák és a szórakozási lehetőségek könnyedén elérhetők, így a mindennapok során nem kell sokat vesződnöd az utazással. Hajdúszoboszló, különösen a fürdőnegyed, egy felkapott környék, ahol a turisták és a helyiek egyaránt megtalálják a számításaikat.
A gyógyfürdők közelsége, a szép parkok és a csendes utcák mind hozzájárulnak ahhoz, hogy itt élni egy igazi élmény legyen.
A biztonságos és nyugodt környezet ideális a családok számára, és a befektetők számára is vonzó lehetőségeket kínál.
Ne habozz, ha kérdéseid vannak, vagy szeretnéd megtekinteni ezt a kivételes ingatlant, bátran keress meg! Bizalommal állok rendelkezésedre, hogy segítségedre legyek a megfelelő döntés meghozatalában, legyen szó akár saját otthonodról, akár befektetési célú vásárlásról.
Az ingatlan piaca folyamatosan változik, és ez a lehetőség nem fog sokáig várni rád!
#hajdubiharvarmegye #hajduszoboszlo #3szoba #2furdoszoba #befektetes #fürdokozeli
Regisztrációs szám
H494534
Az ingatlan adatai
Értékesités
eladó
Jogi státusz
használt
Jelleg
lakás
Építési mód
tégla
Méret
79 m²
Bruttó méret
79 m²
Telek méret
1 280 m²
Fűtés
egyéb
Belmagasság
270 cm
Lakáson belüli szintszám
1
Tájolás
Dél
Panoráma
városi panoráma
Lépcsőház típusa
nincs
Állapot
Jó
Homlokzat állapota
Kiváló
Lépcsőház állapota
Átlagon aluli
Környék
jó közlekedés, zöld, központi
Építés éve
1980
Fürdőszobák száma
2
Fekvés
utcai
Társaház kert
igen
Víz
Van
Gáz
Utcán
Villany
Van
Csatorna
Van
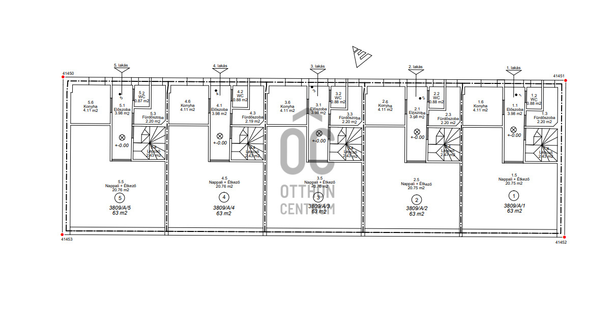
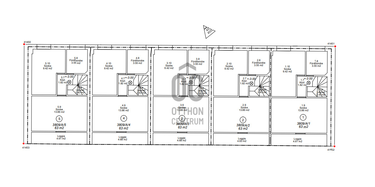
Helyiségek
előszoba
3.98 m²
konyha
4.11 m²
nappali-étkező
20.75 m²
fürdőszoba
2.2 m²
wc
0.88 m²
lépcsőház
2.43 m²
hálószoba
9.42 m²
hálószoba
13.86 m²
fürdőszoba-wc
3.55 m²
közlekedő
1.82 m²
loggia
4.61 m²
Katonáné Boruzs Ildikó
Hitelszakértő