Elérhető Otthon Start hitellel
Eladó családi ház, H483729
Gárdony

145 000 000 Ft

374 000 €

  • 150m²
  • 5 szoba

A ház van Önökért!

Gárdonyban, festők utcáiban, kertvárosi környezetben eladó egy kétgenerációs, 5 szobás, FEDETT TERASZOS, 150m2-es családi ház, GARÁZZSAL, KERTI KIÜLŐVEL, dús növényekkel teli kertben.
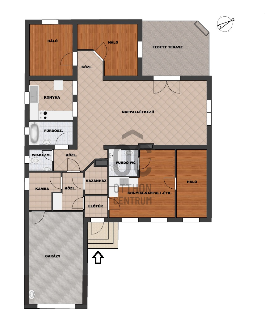
A két lakóegység kialakítását egymást nem zavaró bejárással oldották meg.
A kisebb lakrész 27,8m2, áll egy konyha-étkező-nappaliból, zuhanyzós fürdőszoba -WC-ből és egy hálószobából. Déli fekvése, világos, napos helységei vidámságot tükröznek.
A nagyobb lakórészbe a garázsból is közvetlen bejárhatunk. Kamrából a közlekedőbe és már a nappali étkezőben is vagyunk. Itt elszeparálva de egy légtérben van együtt a konyhával. Tágas ajtók nyílnak a fedett erkélyre és két különálló hálószobára. Egy fürdőszoba, egy külön WC és egy kazánház nyílik a közlekedőből.
Kertben egy fedett kiülőn kívül van még egy pergola tetejű is és a kert hátsó részén két faház tárolás céljából.
A ház 2004-ben épült, PTH 30-as téglából, 8 cm-es hőszigeteléssel, vasbeton födémmel és Bramac tetőcseréppel. Műanyag nyílászárókon redőny és szúnyogháló is használatban van.
Fűtése 1 éves modern SAUNIER DUVAL kazánról, radiátoros hőleadással működik. A nappaliban igazi remekmű, egy gyönyörű cserépkályha is ad meleget téli bekuckózásokhoz.
A sok gondoskodással művelt kert fúrt kútról van öntözve. Rengeteg dísznövény és gyümölcsfa található. Magas ágyásokban konyhakerti növények zöldellnek.
Közelben elérhető óvoda, iskola és a termál fürdő is. Kertvárosi csendes környezete tökéletes a home office-ra, vagy akár kerti partikra is.
Az m7 autópályáról az ingatlan 12 perc alatt megközelíthető, Aldi 12perce Vasútállomás 20percre van gyalogosan.

Hívjon, nézzük meg együtt amíg még megvan!

Irodai azonosító : H483729

Regisztrációs szám

H483729

Az ingatlan adatai

Értékesités
eladó
Jogi státusz
használt
Jelleg
ház
Építési mód
tégla
Méret
150 m²
Bruttó méret
175 m²
Telek méret
1 107 m²
Fűtés
Gáz cirkó
Belmagasság
255 cm
Tájolás
Kelet
Állapot
Homlokzat állapota
Építés éve
2004
Fürdőszobák száma
2
Garázs
Benne van az árban
Víz
Van
Gáz
Van
Villany
Van
Csatorna
Van
Tároló
Önálló

Helyiségek

nappali-étkező
34.8 m²
fürdőszoba-wc
5.5 m²
konyha
7.9 m²
szoba
11 m²
hálószoba
10.5 m²
közlekedő
3.8 m²
wc-kézmosó
2.2 m²
közlekedő
4.76 m²
kamra
4.5 m²
garázs
18.4 m²
kazánház
2.6 m²
közlekedő
1.1 m²
nappali-konyha
15.6 m²
hálószoba
8.8 m²
terasz
15.9 m²
Leitner-Paraidi Beáta Tímea
Leitner-Paraidi Beáta Tímea

Hitelszakértő

Irodánk kínálatából - Székesfehérvár - Várkörút

for sale vacation home

Index image
9

for sale plot

Index image
12

for sale vacation home

Index image
15

for sale family house

Index image
data_sheet.details.realestate.section.main.otthonstart_flag.label
17

for sale apartment

Index image
data_sheet.details.realestate.section.main.otthonstart_flag.label
19

for sale apartment

Index image
data_sheet.details.realestate.section.main.otthonstart_flag.label
21

for sale apartment

Index image
data_sheet.details.realestate.section.main.otthonstart_flag.label
14

for sale family house

Index image
data_sheet.details.realestate.section.main.otthonstart_flag.label
14