Elérhető Otthon Start hitellel
Eladó családi ház,
H480359
Budapest XV. kerület, Rákospalota
135 000 000 Ft
347 000 €
- 186m²
- 3 szoba
Üzleti tevékenységre is alkalmas családi ház
Üzleti tevékenységre is alkalmas családi ház
Budapesten, XV. kerületben, Rákospalotán eladó egy két szintes családi ház. 186 nm-es, 494 nm-es telek tartozik hozzá.
Egy autónak van garázs, 28 nm-es, három autó tud még parkolni a telken.
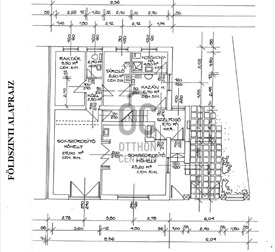
Az alsó szintje ipari tevékenységre alkalmas, 380 V delej cirkulál a vezetékekben. Korábban nyomdai tevékenységet folytattak, de sokféle tevékenység végzésére alkalmas lehet. Be lehet állni az alsó szintre kisebb teherautóval.
Az alsó szinten van még a kazánház, mely az egész épület fűtését, meleg víz ellátását biztosítja.
Két műhely rész, raktár, mosdó, WC, öltöző található ezen kívül.
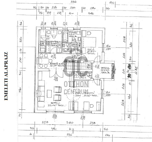
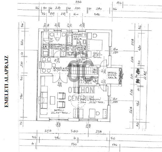
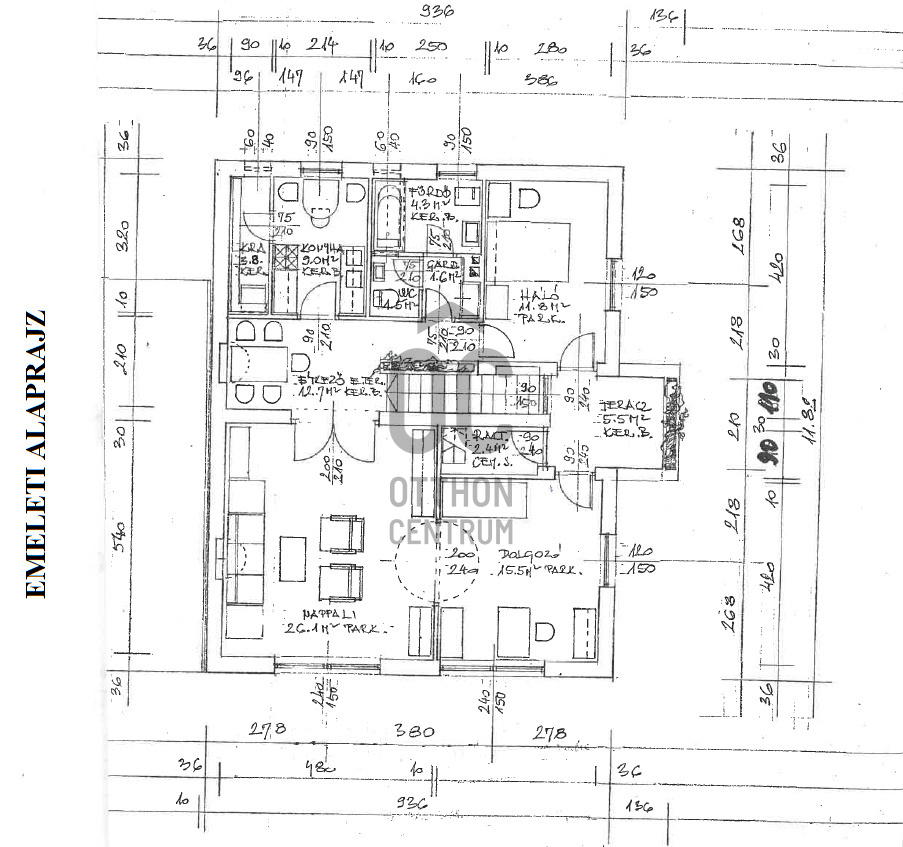
A felső szinten tágas nappali, két hálószoba, konyha, étkező, fürdőszoba, külön WC szagelszívóval mosdóval, a , közlekedők, és egy terasz is található. Egyik hálószobában klíma járul hozzá a kedvező hőmérséklethez. A lépcső feljáratnál egy videó mutatja a házba belépni szándékozókat. Ezzel a kapu is nyitható, amennyiben nem rabló szeretne belépni.
Az felső szinten nagyon sok ablak van, a helyiségek úsznak a fényben, már amikor süt a nap.
A közlekedés kiváló, a közeli Kolozsvári úton sokféle színű és számú busz közlekedik az utazó közönség nagy örömére. A villamosok csak bővítik ezt az örömérzést, hiszen a világ négy égtája felé közlekednek.
Budapesten, XV. kerületben, Rákospalotán eladó egy két szintes családi ház. 186 nm-es, 494 nm-es telek tartozik hozzá.
Egy autónak van garázs, 28 nm-es, három autó tud még parkolni a telken.
Az alsó szintje ipari tevékenységre alkalmas, 380 V delej cirkulál a vezetékekben. Korábban nyomdai tevékenységet folytattak, de sokféle tevékenység végzésére alkalmas lehet. Be lehet állni az alsó szintre kisebb teherautóval.
Az alsó szinten van még a kazánház, mely az egész épület fűtését, meleg víz ellátását biztosítja.
Két műhely rész, raktár, mosdó, WC, öltöző található ezen kívül.
A felső szinten tágas nappali, két hálószoba, konyha, étkező, fürdőszoba, külön WC szagelszívóval mosdóval, a , közlekedők, és egy terasz is található. Egyik hálószobában klíma járul hozzá a kedvező hőmérséklethez. A lépcső feljáratnál egy videó mutatja a házba belépni szándékozókat. Ezzel a kapu is nyitható, amennyiben nem rabló szeretne belépni.
Az felső szinten nagyon sok ablak van, a helyiségek úsznak a fényben, már amikor süt a nap.
A közlekedés kiváló, a közeli Kolozsvári úton sokféle színű és számú busz közlekedik az utazó közönség nagy örömére. A villamosok csak bővítik ezt az örömérzést, hiszen a világ négy égtája felé közlekednek.
Regisztrációs szám
H480359
Az ingatlan adatai
Értékesités
eladó
Jogi státusz
használt
Jelleg
ház
Építési mód
tégla
Méret
186 m²
Bruttó méret
186 m²
Telek méret
494 m²
Terasz / erkély mérete
8 m²
Fűtés
Gáz cirkó
Belmagasság
260 cm
Lakáson belüli szintszám
1
Tájolás
Dél-kelet
Állapot
Átlagos
Homlokzat állapota
Átlagos
Építés éve
1990
Fürdőszobák száma
1
Garázs
Benne van az árban
Garázs férőhely
1
Víz
Van
Gáz
Van
Villany
Van
Csatorna
Van
Tároló
Önálló
Helyiségek
szoba
15 m²
szoba
12 m²
nappali
26 m²
ebédlő
13 m²
konyha
9 m²
kamra
3 m²
közlekedő
1.5 m²
wc-kézmosó
1.5 m²
fürdőszoba
4 m²
terasz
5 m²
egyéb helyiség
23 m²
egyéb helyiség
25 m²
kazánház
6.7 m²
tároló
8 m²
mosókonyha
4 m²
közlekedő
2 m²
raktár
9 m²
wc-kézmosó
2 m²
előszoba
6 m²
Bán Marianna
Hitelszakértő