229 000 000 Ft
605 000 €
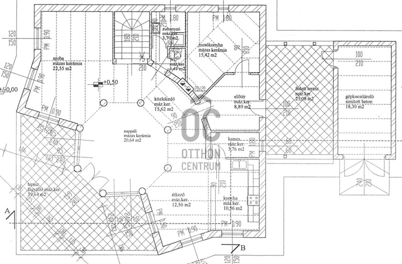
- 297m²
- 6 szoba
Exkluzív családi ház Veresegyház legszebb, zöldövezeti részén!
Nyugodt, természetközeli környezetben kínálunk megvételre egy magas műszaki tartalommal, kifinomult ízléssel megépített prémium családi otthont, amely a tágas élettereket, az időtálló minőséget és a privát életstílust helyezi előtérbe.
Reprezentatív terek & elegáns arányok:
• 297 m² gondosan megtervezett lakótér
• 6 méteres belmagasságú, különleges kivitelezésű, galériás nappali, kandallóval
• nagyvonalú amerikai konyha kényelmes étkezővel
• többfunkciós tetőtéri szint – hatalmas dolgozószoba, hálószobák, vendégtér vagy privát lakrész kialakítására
A belső terek tágas és harmonikus arányai, valamint a természetes fény jelenléte jellemzi az egész épületet.
Prémium anyaghasználat & beépített megoldások:
• porotherm téglából épült, szigetelt ház
• különleges, fa oszlopos tartószerkezetek
• számos egyedileg tervezett beépített bútor
• diszkréten integrált tárolómegoldások
• minőségi kivitelezés, időtálló részletek
Privát kert & kültéri luxus:
• 800 m²-es, parkosított, intim kert
• automata öntözőrendszer kiépítve
• 60 m²-es DNy-i tájolású, fedett terasz, székely dézsával
• két különálló faház - egy kisebb és egy nagyobb tároló
• tökéletes helyszín pihenéshez, családi eseményekhez, vendéglátáshoz
Kényelmes parkolás & praktikum:
• garázs
• fedett autóbeálló
• bőséges tárolási lehetőségek a telken és az épületen belül is
Korszerű technológia & fenntartható komfort:
• padlófűtés kondenzációs kazánról, radiátorokkal kiegészítve
• alternatív megoldások: kandalló, ionkazán
• napelemek, napkollektor, klímaberendezések
• víz kezelő rendszer, riasztó
• energiahatékony, tudatosan kialakított gépészet
Kitűnő lokáció – természet és elérhetőség egyensúlya:
• Csendes, zöldövezeti környezet
• Budapest gyorsan és kényelmesen elérhető
• Ideális külföldi vásárlók számára is, akik értékelik a repülőtér közelségét és a prémium életstílust
Ez az otthon azok számára készült, akik nem kompromisszumokban, hanem életminőségben gondolkodnak.
Nyugodt, természetközeli környezetben kínálunk megvételre egy magas műszaki tartalommal, kifinomult ízléssel megépített prémium családi otthont, amely a tágas élettereket, az időtálló minőséget és a privát életstílust helyezi előtérbe.
Reprezentatív terek & elegáns arányok:
• 297 m² gondosan megtervezett lakótér
• 6 méteres belmagasságú, különleges kivitelezésű, galériás nappali, kandallóval
• nagyvonalú amerikai konyha kényelmes étkezővel
• többfunkciós tetőtéri szint – hatalmas dolgozószoba, hálószobák, vendégtér vagy privát lakrész kialakítására
A belső terek tágas és harmonikus arányai, valamint a természetes fény jelenléte jellemzi az egész épületet.
Prémium anyaghasználat & beépített megoldások:
• porotherm téglából épült, szigetelt ház
• különleges, fa oszlopos tartószerkezetek
• számos egyedileg tervezett beépített bútor
• diszkréten integrált tárolómegoldások
• minőségi kivitelezés, időtálló részletek
Privát kert & kültéri luxus:
• 800 m²-es, parkosított, intim kert
• automata öntözőrendszer kiépítve
• 60 m²-es DNy-i tájolású, fedett terasz, székely dézsával
• két különálló faház - egy kisebb és egy nagyobb tároló
• tökéletes helyszín pihenéshez, családi eseményekhez, vendéglátáshoz
Kényelmes parkolás & praktikum:
• garázs
• fedett autóbeálló
• bőséges tárolási lehetőségek a telken és az épületen belül is
Korszerű technológia & fenntartható komfort:
• padlófűtés kondenzációs kazánról, radiátorokkal kiegészítve
• alternatív megoldások: kandalló, ionkazán
• napelemek, napkollektor, klímaberendezések
• víz kezelő rendszer, riasztó
• energiahatékony, tudatosan kialakított gépészet
Kitűnő lokáció – természet és elérhetőség egyensúlya:
• Csendes, zöldövezeti környezet
• Budapest gyorsan és kényelmesen elérhető
• Ideális külföldi vásárlók számára is, akik értékelik a repülőtér közelségét és a prémium életstílust
Ez az otthon azok számára készült, akik nem kompromisszumokban, hanem életminőségben gondolkodnak.
Regisztrációs szám
GDH392254
Az ingatlan adatai
Értékesités
eladó
Jogi státusz
használt
Jelleg
ház
Építési mód
tégla
Méret
297 m²
Bruttó méret
297 m²
Telek méret
800 m²
Terasz / erkély mérete
40 m²
Fűtés
Gáz cirkó
Belmagasság
3 000 cm
Tájolás
Dél-nyugat
Állapot
Kiváló
Építés éve
2003
Fekvés
udvari
Garázs férőhely
1
Víz
Van
Gáz
Van
Villany
Van
Csatorna
Van
Kertkapcsolatos
igen
Tároló
Önálló
Bán Marianna
Hitelszakértő