11 200 000 Ft
29 000 €
- 17,6m²







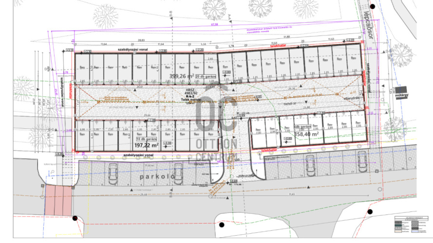
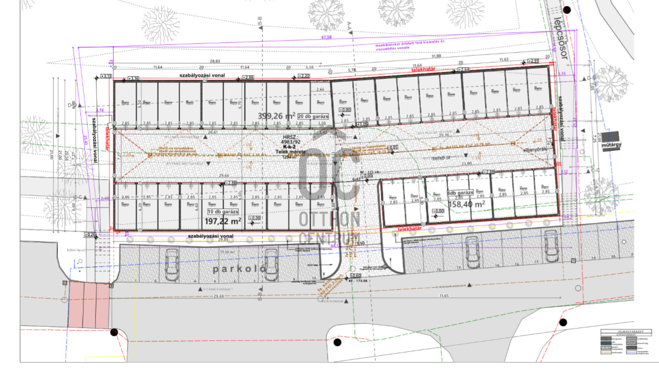
Zalaegerszeg-LANDORHEGYEN ÚJ modern garázsok ELADÓK!!!
Korszerű előregyártott beton elemekből készülő, modern stílusú garázsok LANDORHEGY szívében.
Jellemzők:
- Hőszigetelt oldalfalakkal és lapos tetővel, szekcionált, motoros garázskapukkal.
- Egységes, 17,68 nm alapterülettel.
- A garázsok közötti elválasztó falak variálhatóak, illetve nagyobb terek létrehozásához kivehetőek, így dupla garázsok is létrehozhatóak, egyedi igény szerint.
- A tervezésnél különös figyelmet fordítottak az épület külső megjelenése illeszkedjen a jelenlegi környezethez.
- A nyugati épületsoron zöld tető kerül kialakításra.
- A keleti homlokzat felfutó növény telepítéssel kerül kivitelezésre,illetve dísznövények kerülnek a járda melletti földsávra.
- Körbekerített, sorompóval lezárt, tér világítással ellátott terület.
- Villamos hálózat: Nappali tarifás villamos energiaellátás: 1x32Amper/garázs. A garázsokban villamos alapszerelés kerül kialakításra, a gégecsövek a tartó szerkezetekben történő elhelyezésével. 3db 220V aljzat, 1db kapcsoló, 1db mennyezeti lámpa, a szerkezetbe süllyesztve, dobozhely kiállással,
vezetékelve. Az áramszolgáltató felé előzetes energiaigény lett benyújtva a fentiek szerint.
A kivitelezés ütemezése az alábbiak szerint:
I. ÜTEM: 10 db garázs 2025. szeptember- 2026. március
II. ÜTEM: 8 db garázs 2026. március- 2026. szeptember
További információért keressen bizalommal!
Jellemzők:
- Hőszigetelt oldalfalakkal és lapos tetővel, szekcionált, motoros garázskapukkal.
- Egységes, 17,68 nm alapterülettel.
- A garázsok közötti elválasztó falak variálhatóak, illetve nagyobb terek létrehozásához kivehetőek, így dupla garázsok is létrehozhatóak, egyedi igény szerint.
- A tervezésnél különös figyelmet fordítottak az épület külső megjelenése illeszkedjen a jelenlegi környezethez.
- A nyugati épületsoron zöld tető kerül kialakításra.
- A keleti homlokzat felfutó növény telepítéssel kerül kivitelezésre,illetve dísznövények kerülnek a járda melletti földsávra.
- Körbekerített, sorompóval lezárt, tér világítással ellátott terület.
- Villamos hálózat: Nappali tarifás villamos energiaellátás: 1x32Amper/garázs. A garázsokban villamos alapszerelés kerül kialakításra, a gégecsövek a tartó szerkezetekben történő elhelyezésével. 3db 220V aljzat, 1db kapcsoló, 1db mennyezeti lámpa, a szerkezetbe süllyesztve, dobozhely kiállással,
vezetékelve. Az áramszolgáltató felé előzetes energiaigény lett benyújtva a fentiek szerint.
A kivitelezés ütemezése az alábbiak szerint:
I. ÜTEM: 10 db garázs 2025. szeptember- 2026. március
II. ÜTEM: 8 db garázs 2026. március- 2026. szeptember
További információért keressen bizalommal!
Regisztrációs szám
G1996946
Az ingatlan adatai
Értékesités
eladó
Jogi státusz
új
Jelleg
garázs
Típus
egyedi
Méret
17,6 m²
Állapot
Kiváló
Homlokzat állapota
Kiváló
Környék
jó közlekedés, központi
Építés éve
2025
Garázs férőhely
1