169 000 000 Ft
434 000 €
- 108m²
- 4 szoba
- 5. emelet
Világos, tágas 108 nm-es lakás Krisztinaváros szívében garázsbeállóval, kiváló közlekedéssel!
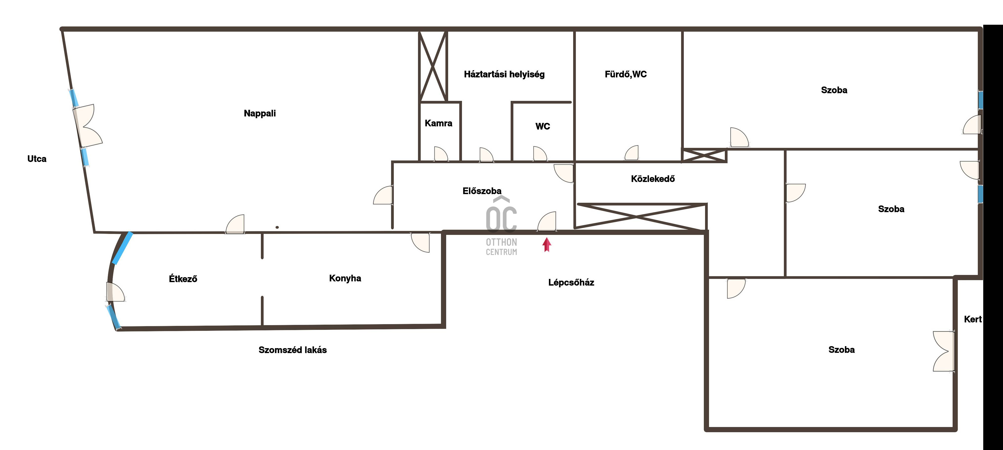
Eladó egy ritka adottságokkal rendelkező, 108 m²-es, dupla komfortos, napfényes lakás Budapest I. kerületének egyik legkedveltebb részén, Krisztinavárosban liftes, jó állapotú társasház 5. emeletén.
A lakás főbb jellemzői:
- Nappali + étkező nyugati tájolással világos, napos tér egész délután
-Három külön nyíló hálószoba keleti fekvéssel a társasház csendes, zöld kertjére néznek
-Tágas, jól szeparált elrendezés, megtartva a hálórész intimitását kényelmes családi otthon
-Fürdőszoba WC-vel, bidével, külön WC dupla komfort
-Cirkófűtés radiátoros hőleadókkal (felújított Baxi Ecofour kazán), alacsony fenntartási költség
-Műanyag nyílászárók redőnyökkel
-Jó állapotú, de esztétikai frissítést igényel egyedi igényekre szabható
-A társasház 1988-ban épült, karbantartott, lifttel felszerelt, kívül-belül rendezett
-Kis számú lakóközösség (14 lakás)
A lakáshoz tartozik egy teremgarázs-beállóhely a ház földszintjén, amelynek ára 20 millió Ft a lakás vételárán felül, megvásárlása kötelező.
Elhelyezkedés Krisztinaváros, a nyugalom és a belváros határán:
Ez a lakás egy fás-ligetes mellékutcában található, ugyanakkor pár perc sétára elérhető:
-a Vérmező és a Városmajor park tökéletes szabadtéri kikapcsolódáshoz
- a Déli pályaudvar, a Széll Kálmán tér és a budai fonódó villamosvonal
- a Krisztina körút üzletei, pékségek, kávézók, patikák, iskolák, rendelők
Kiváló közlekedés:
- M2-es metró (Déli pályaudvar) 5 perc gyalog
- Villamosok: 17, 56, 59, 61 a Széll Kálmán tér 1 megálló
- Számos buszjárat a belváros és a budai hegyvidék irányába
-Autóval gyorsan elérhető az Erzsébet híd, a Hegyalja út vagy akár az M1/M7 autópálya bevezető
Kinek ajánljuk?
Ez a lakás kiváló választás lehet:
- többgyermekes családnak
-otthonról dolgozóknak, akik külön dolgozószobát keresnek
-orvosi rendelőnek, irodának
-hosszú távú befektetésnek, kiadásra is remek lehetőség a környék adottságai miatt
A budai lokáció, a zöldre néző ablakok, a dupla komfort és a teremgarázs együtt ritka kombináció! Jöjjön el, nézze meg, és képzelje el benne a saját jövőjét!
További információért és időpont egyeztetésért kérem, keressen bizalommal!
Eladó egy ritka adottságokkal rendelkező, 108 m²-es, dupla komfortos, napfényes lakás Budapest I. kerületének egyik legkedveltebb részén, Krisztinavárosban liftes, jó állapotú társasház 5. emeletén.
A lakás főbb jellemzői:
- Nappali + étkező nyugati tájolással világos, napos tér egész délután
-Három külön nyíló hálószoba keleti fekvéssel a társasház csendes, zöld kertjére néznek
-Tágas, jól szeparált elrendezés, megtartva a hálórész intimitását kényelmes családi otthon
-Fürdőszoba WC-vel, bidével, külön WC dupla komfort
-Cirkófűtés radiátoros hőleadókkal (felújított Baxi Ecofour kazán), alacsony fenntartási költség
-Műanyag nyílászárók redőnyökkel
-Jó állapotú, de esztétikai frissítést igényel egyedi igényekre szabható
-A társasház 1988-ban épült, karbantartott, lifttel felszerelt, kívül-belül rendezett
-Kis számú lakóközösség (14 lakás)
A lakáshoz tartozik egy teremgarázs-beállóhely a ház földszintjén, amelynek ára 20 millió Ft a lakás vételárán felül, megvásárlása kötelező.
Elhelyezkedés Krisztinaváros, a nyugalom és a belváros határán:
Ez a lakás egy fás-ligetes mellékutcában található, ugyanakkor pár perc sétára elérhető:
-a Vérmező és a Városmajor park tökéletes szabadtéri kikapcsolódáshoz
- a Déli pályaudvar, a Széll Kálmán tér és a budai fonódó villamosvonal
- a Krisztina körút üzletei, pékségek, kávézók, patikák, iskolák, rendelők
Kiváló közlekedés:
- M2-es metró (Déli pályaudvar) 5 perc gyalog
- Villamosok: 17, 56, 59, 61 a Széll Kálmán tér 1 megálló
- Számos buszjárat a belváros és a budai hegyvidék irányába
-Autóval gyorsan elérhető az Erzsébet híd, a Hegyalja út vagy akár az M1/M7 autópálya bevezető
Kinek ajánljuk?
Ez a lakás kiváló választás lehet:
- többgyermekes családnak
-otthonról dolgozóknak, akik külön dolgozószobát keresnek
-orvosi rendelőnek, irodának
-hosszú távú befektetésnek, kiadásra is remek lehetőség a környék adottságai miatt
A budai lokáció, a zöldre néző ablakok, a dupla komfort és a teremgarázs együtt ritka kombináció! Jöjjön el, nézze meg, és képzelje el benne a saját jövőjét!
További információért és időpont egyeztetésért kérem, keressen bizalommal!
Regisztrációs szám
DLK057291
Az ingatlan adatai
Értékesités
eladó
Jogi státusz
használt
Jelleg
lakás
Építési mód
tégla
Méret
108 m²
Bruttó méret
108 m²
Fűtés
Gáz cirkó
Belmagasság
260 cm
Lakáson belüli szintszám
1
Tájolás
Nyugat
Lépcsőház típusa
zárt lépcsőház
Állapot
Jó
Homlokzat állapota
Kiváló
Építés éve
1988
Fürdőszobák száma
1
Fekvés
utcai
Közös költség
30341
Lift
van
Kertkapcsolatos
igen
Helyiségek
nappali
31.3 m²
ebédlő
5.3 m²
konyha
6.1 m²
előszoba
6.75 m²
kamra
0.95 m²
háztartási helyiség
5.3 m²
wc
1.45 m²
közlekedő
8 m²
fürdőszoba-wc
5.9 m²
szoba
14 m²
szoba
9 m²
szoba
13.95 m²
Torma Zsuzsanna
Hitelszakértő