690 000 000 Ft
1 806 000 €
- 416m²
- 6 szoba
PRÉMIUM MINIMÁL VILLA KÜLTÉRI MEDENCÉVEL, SZAUNÁVAL ÉS TELJESEN KÉSZ BELSŐ TEREKKEL LAKE FOREST VILLAPARK
Eladó egy Budapesttől karnyújtásnyi távolságra található, zárt, őrzött luxus villaparkban álló, önálló, 416 m²-es, okosotthon-rendszerrel felszerelt családi villa 1 654 m²-es, parkosított telken, kétállásos teremgarázzsal.
A nappali + 4 hálós, triplakomfortos otthon minden részlete a gondos tervezést és a kompromisszummentes anyaghasználatot tükrözi az ingatlan időközben teljes befejezést kapott, így az új tulajdonos azonnal élvezheti a prémium életérzést.
Kiemelt újdonságok
Emeleti, üvegfalú szauna az intim teraszon, közvetlenül a szülői lakosztályból megközelíthetően négy évszakos kikapcsolódás zöldpanorámával.
Fedett kerti grillkonyha professzionális beépített gépekkel: nagyméretű gázgrill, mosogató, hűtő/fiókos tárolók, munkapult, külön pizzasütő kemence tökéletes szabadtéri vendéglátó tér.
Nagyformátumú kőburkolatok és egyedi fényépítészet a reprezentatív belső terekben (dizájn LED-vonalvilágítás a márványhatású falon).
Elegáns, fedett teraszok kőburkolattal, közvetlen kapcsolattal a kerthez és a medencéhez.
Elrendezés & Életérzés
A földszinti, hatalmas üvegfelületekkel megnyitott nappaliétkezőkonyha tér a fedett teraszra és a gondozott kertre tárul. Itt található a fűtött, 4×8 m-es Compass medence automata redőnyfedéssel sportoláshoz és családi pihenéshez egyaránt ideális.
Az emeleti szülői lakosztály saját gardróbbal és fürdővel, valamint a szaunához nyíló privát teraszkapcsolattal rendelkezik; a további hálók külön fürdőblokkhoz csatlakoznak.
Műszaki tartalom (válogatás)
Loxone okosház-előkészítés és vezetékezés az egész épületben
Légtechnika: friss levegő befúvás (rekuperáció), elszívás szellőztetés ablaknyitás nélkül
Mennyezethűtésfűtés + padlófűtés, FUJITSU hőszivattyú
A++ energiahatékonyság, 40 cm hőszigetelés, 3 rétegű nyílászárók
Napelem/napkollektor teljes előkészítése
Központi porszívó csövezés
Elektromos zsaluziák, távirányítható LED-szalagok helyiségenként
Vízteres kandalló kiállás frisslevegő-beszívással
Hörmann elektromos garázskapu, ujjlenyomatos bejárati ajtó
30×50 A elektromos ellátás, EV-töltő kiállás a garázsban
Nappaliban 5.1 házimozi kiépítés, beépített páncélszekrény
Kamerarendszer és riasztó előkészítés, kétállásos padlófűtött garázs
400 l-es HMV-tartály
Medence & Kert
Compass 4×8 m carbon pools medence, 70 kg teherbírású automata redőny
Automata vízkezelés/vegyszeradagolás, távvezérelt medencevilágítás
Hidegmeleg vizes kerti és emeleti terasz-zuhany
Parkosított, intim, zöldövezeti telek, prémium burkolatok és hatalmas, fedett/nyitott teraszfelületek
Ikonikus luxus ikonikus környezetben azoknak, akik a modern minimalizmust, a kifinomult anyaghasználatot és a kifogástalan műszaki tartalmat keresik.
Bővebb információért és a részletes, helyszíni bemutatásért várom megkeresését.
Eladó egy Budapesttől karnyújtásnyi távolságra található, zárt, őrzött luxus villaparkban álló, önálló, 416 m²-es, okosotthon-rendszerrel felszerelt családi villa 1 654 m²-es, parkosított telken, kétállásos teremgarázzsal.
A nappali + 4 hálós, triplakomfortos otthon minden részlete a gondos tervezést és a kompromisszummentes anyaghasználatot tükrözi az ingatlan időközben teljes befejezést kapott, így az új tulajdonos azonnal élvezheti a prémium életérzést.
Kiemelt újdonságok
Emeleti, üvegfalú szauna az intim teraszon, közvetlenül a szülői lakosztályból megközelíthetően négy évszakos kikapcsolódás zöldpanorámával.
Fedett kerti grillkonyha professzionális beépített gépekkel: nagyméretű gázgrill, mosogató, hűtő/fiókos tárolók, munkapult, külön pizzasütő kemence tökéletes szabadtéri vendéglátó tér.
Nagyformátumú kőburkolatok és egyedi fényépítészet a reprezentatív belső terekben (dizájn LED-vonalvilágítás a márványhatású falon).
Elegáns, fedett teraszok kőburkolattal, közvetlen kapcsolattal a kerthez és a medencéhez.
Elrendezés & Életérzés
A földszinti, hatalmas üvegfelületekkel megnyitott nappaliétkezőkonyha tér a fedett teraszra és a gondozott kertre tárul. Itt található a fűtött, 4×8 m-es Compass medence automata redőnyfedéssel sportoláshoz és családi pihenéshez egyaránt ideális.
Az emeleti szülői lakosztály saját gardróbbal és fürdővel, valamint a szaunához nyíló privát teraszkapcsolattal rendelkezik; a további hálók külön fürdőblokkhoz csatlakoznak.
Műszaki tartalom (válogatás)
Loxone okosház-előkészítés és vezetékezés az egész épületben
Légtechnika: friss levegő befúvás (rekuperáció), elszívás szellőztetés ablaknyitás nélkül
Mennyezethűtésfűtés + padlófűtés, FUJITSU hőszivattyú
A++ energiahatékonyság, 40 cm hőszigetelés, 3 rétegű nyílászárók
Napelem/napkollektor teljes előkészítése
Központi porszívó csövezés
Elektromos zsaluziák, távirányítható LED-szalagok helyiségenként
Vízteres kandalló kiállás frisslevegő-beszívással
Hörmann elektromos garázskapu, ujjlenyomatos bejárati ajtó
30×50 A elektromos ellátás, EV-töltő kiállás a garázsban
Nappaliban 5.1 házimozi kiépítés, beépített páncélszekrény
Kamerarendszer és riasztó előkészítés, kétállásos padlófűtött garázs
400 l-es HMV-tartály
Medence & Kert
Compass 4×8 m carbon pools medence, 70 kg teherbírású automata redőny
Automata vízkezelés/vegyszeradagolás, távvezérelt medencevilágítás
Hidegmeleg vizes kerti és emeleti terasz-zuhany
Parkosított, intim, zöldövezeti telek, prémium burkolatok és hatalmas, fedett/nyitott teraszfelületek
Ikonikus luxus ikonikus környezetben azoknak, akik a modern minimalizmust, a kifinomult anyaghasználatot és a kifogástalan műszaki tartalmat keresik.
Bővebb információért és a részletes, helyszíni bemutatásért várom megkeresését.
Regisztrációs szám
DHZ097972
Az ingatlan adatai
Értékesités
eladó
Jogi státusz
új
Jelleg
ház
Építési mód
tégla
Méret
416 m²
Bruttó méret
416 m²
Telek méret
1 654 m²
Terasz / erkély mérete
110,9 m²
Fűtés
egyéb
Belmagasság
275 cm
Lakáson belüli szintszám
2
Tájolás
Dél-kelet
Állapot
Jó
Homlokzat állapota
Jó
Építés éve
2023
Fürdőszobák száma
3
Fekvés
udvari
Víz
Van
Gáz
Utcán
Villany
Van
Csatorna
Van
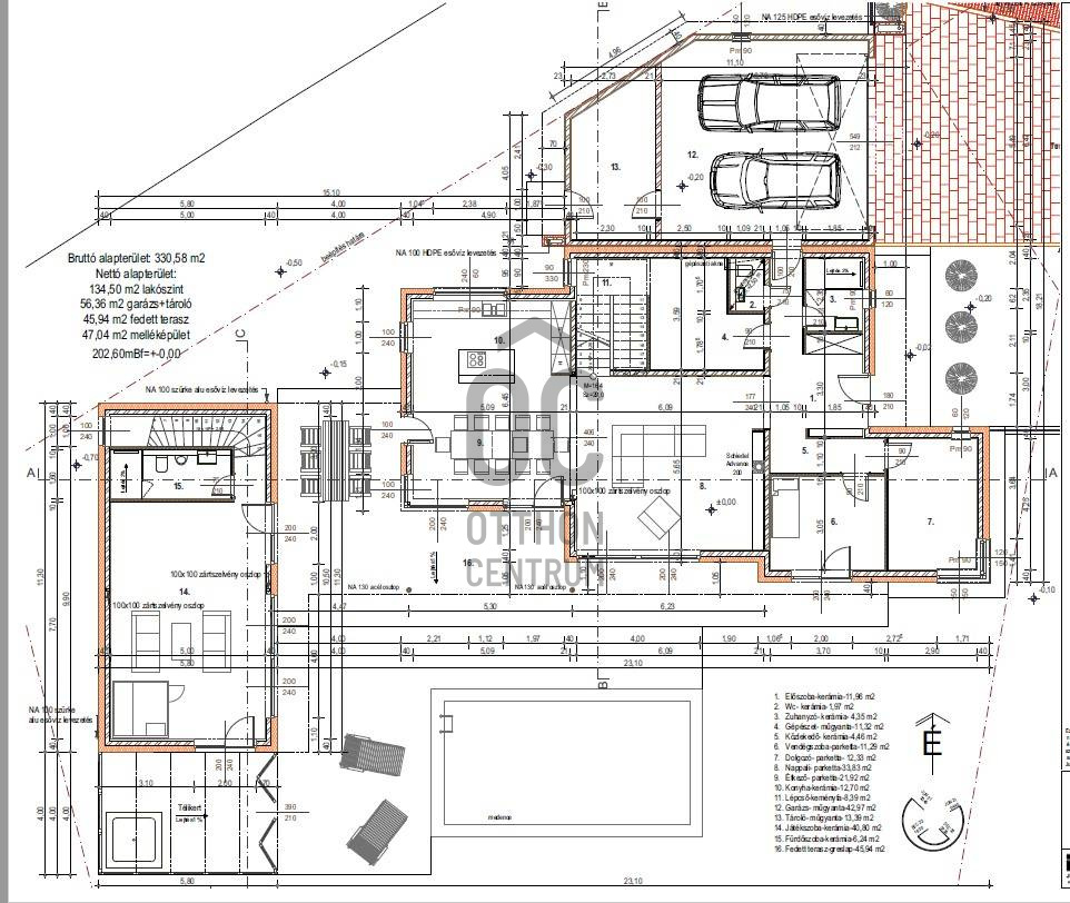
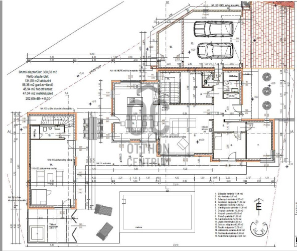
Helyiségek
wc
1.97 m²
közlekedő
4.46 m²
szoba
11.29 m²
szoba
12.33 m²
nappali
33.83 m²
ebédlő
21.92 m²
konyha
12.7 m²
lépcsőház
8.39 m²
fürdőszoba-wc
6.24 m²
veranda
45.94 m²
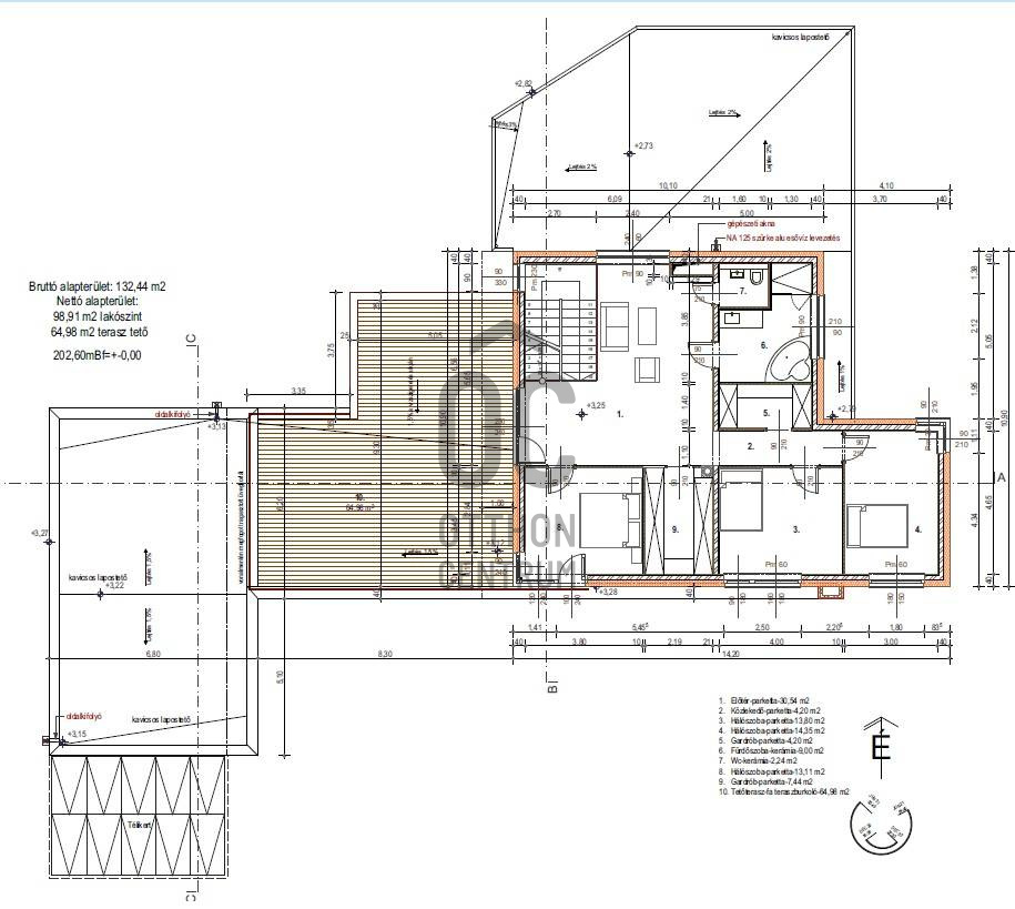
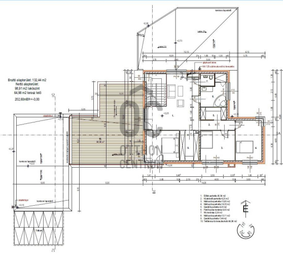
hall
30.54 m²
közlekedő
4.2 m²
szoba
13.8 m²
szoba
14.35 m²
gardrób
4.2 m²
fürdőszoba-wc
9 m²
wc
2.24 m²
szoba
13.11 m²
gardrób
7.44 m²
terasz
64.98 m²
előszoba
11.96 m²