Elérhető Otthon Start hitellel
Eladó újépítésű ikerház,
DHZ086570
Dunavarsány,
123 000 000 Ft
316 000 €
- 141m²
- 4 szoba
















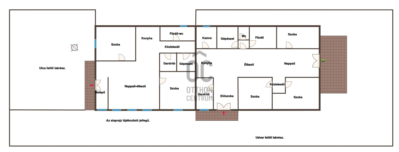
Dunavarsányon eladó egy 496 nm-es körbekerített telken lévő újépítésű 113 nm alapterületű ikerház fél, hőszivattyús fűtésrendszerű A+ energetikai besorolással rendelkező családi ház! Az épületben a riasztórendszer előkészítése megtörtént. A telekre elektromos nagykapun keresztül juthatunk be.
Az épület belsőudvari 113 nm-es melyhez 496 nm-es elkerített telekrész tartozik.
Belső elrendezése előszoba, gardrób, amerikai-konyhás-nappali, kamra, gépészeti helyiség, wc-kézmosó, fürdő, három külön nyíló szoba, terasz.
Az épület beton sávalapra épült, 30cm-es tégla falazattal +15 cm hungarocell szigeteléssel.
Fa födémes, 30 cm-es födémszigeteléssel
A két lakrész padlástere hanggátló gipszkartonnal elválasztott
A fűtést korszerű levegő-levegő hőszivattyú, mennyezeti hűtés-fűtés rendszer biztosítja.
A melegvíz szükségletet hőszivattyús bojler elégíti ki.
A nyílászárók műanyagok 3 rétegű 5 légkamrás belül fehér kívül antracit szürke színűek.
Választható burkolatok és belső elemek:
Hidegburkolatok:5.500 Ft/nm
Melegburkolatok: 4.500.- Ft/ nm
Szaniterek: 100.000.- Ft
A kert öntözésére fúrt kút áll a rendelkezésünkre. A telken belül villany, vezetékes víz és átemelős rendszerű csatorna található.
A birtokbaadás az elfogadásra került Vételi szándéknyilatkozatott követően 30-90 napon belül költözhető!
Ha megtetszett Önnek az ingatlan kérem hívjon bizalommal a hét bármely napján, akár hétvégén is.
A közelben minden megtalálható ami a mindennapi élethez szükséges.
Az épület belsőudvari 113 nm-es melyhez 496 nm-es elkerített telekrész tartozik.
Belső elrendezése előszoba, gardrób, amerikai-konyhás-nappali, kamra, gépészeti helyiség, wc-kézmosó, fürdő, három külön nyíló szoba, terasz.
Az épület beton sávalapra épült, 30cm-es tégla falazattal +15 cm hungarocell szigeteléssel.
Fa födémes, 30 cm-es födémszigeteléssel
A két lakrész padlástere hanggátló gipszkartonnal elválasztott
A fűtést korszerű levegő-levegő hőszivattyú, mennyezeti hűtés-fűtés rendszer biztosítja.
A melegvíz szükségletet hőszivattyús bojler elégíti ki.
A nyílászárók műanyagok 3 rétegű 5 légkamrás belül fehér kívül antracit szürke színűek.
Választható burkolatok és belső elemek:
Hidegburkolatok:5.500 Ft/nm
Melegburkolatok: 4.500.- Ft/ nm
Szaniterek: 100.000.- Ft
A kert öntözésére fúrt kút áll a rendelkezésünkre. A telken belül villany, vezetékes víz és átemelős rendszerű csatorna található.
A birtokbaadás az elfogadásra került Vételi szándéknyilatkozatott követően 30-90 napon belül költözhető!
Ha megtetszett Önnek az ingatlan kérem hívjon bizalommal a hét bármely napján, akár hétvégén is.
A közelben minden megtalálható ami a mindennapi élethez szükséges.
Regisztrációs szám
DHZ086570
Az ingatlan adatai
Értékesités
eladó
Jogi státusz
új
Jelleg
ház
Építési mód
tégla
Méret
141 m²
Bruttó méret
141 m²
Telek méret
496 m²
Terasz / erkély mérete
12 m²
Fűtés
egyéb
Belmagasság
270 cm
Lakáson belüli szintszám
1
Tájolás
Dél-kelet
Állapot
Jó
Homlokzat állapota
Jó
Építés éve
2025
Fürdőszobák száma
1
Fekvés
udvari
Víz
Van
Gáz
Van
Villany
Van
Csatorna
Van
Helyiségek
szoba
10.85 m²
gardrób
5.95 m²
közlekedő
3.96 m²
fürdőszoba-wc
6.96 m²
nappali-konyha
42.24 m²
szoba
11.47 m²
közlekedő
3.96 m²
terasz
12 m²
szoba
12.4 m²
wc
1.8 m²
kamra
4.93 m²

Durucskó Gabriella
Hitelszakértő