Elérhető Otthon Start hitellel
Eladó újépítésű családi ház,
DHZ064039
Tatárszentgyörgy
67 000 000 Ft
171 000 €
- 92,4m²
- 4 szoba
ÖNÁLLÓ CSALÁDI HÁZ eladó Tatárszentgyörgyön természetközelben, nyugodt aszfaltos utcában.
10%-al foglalózható!
A és B ház épül a telken, melyek társasházi alapító okirattal, önálló helyrajzi számmal fognak rendelkezni.
Az A épület utcafronti, a B épületnek privát szférát alakítanak ki és ügyvéd által lefektetett szolgalmi úton közelíthető meg.
Az épületek teljesen különálló ÖNÁLLÓ CSALÁDI HÁZAK, melyek semmilyen formában nem csatlakoznak egymáshoz.
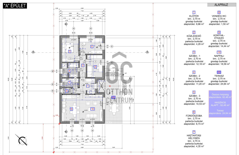
Az ingatlan hasznos alapterülete 92 m2, 3 hálószoba + amerikai konyhás nappalival kialakított,
2 FÜRDŐSZOBÁVAL ELLÁTOTT. A fürdőszobában fürdőkád és épített zuhany is ki lesz alakítva.
A nappaliból nyílik egy 25 m2-es TERASZ, ahol kényelmesen eltöltheti a szabadidejét.
A ház energetikai besorolása A+
A falazat nemzetközileg elfogadott, japán technológiával készült.
Rétegrend: színvakolat; vékonyvakolat; cementbázisú hálóerősítés; Austrotherm AT-H80(1); Austrotherm AT-H80(14); ragasztó; vasbeton; hőszigetelés; vasbeton.
A tető fafödémmel épül, 20 cm kőzetgyapot födém szigeteléssel ellátott lesz.
A ház fűtése HŐSZIVATTYÚS kialakítású, H tarifával.
Beágyazott fűtőfelülettel rendelkező (padló-, fal-, mennyezetfűtés)
Központi előremenő hőmérséklet szabályozás helyiségenkénti hőmérséklet szabályozással.
A NYÍLÁSZÁRÓK korszerű, háromrétegű üvegezésű ablakok.
A házhoz 600 m2 saját használatú telek tartozik, ahol akár két autó is kényelmesen parkolhat.
VÁRHATÓ ÁTADÁS: 2026. nyár
Amennyiben felkeltettem az érdeklődését, hívjon bizalommal!
10%-al foglalózható!
A és B ház épül a telken, melyek társasházi alapító okirattal, önálló helyrajzi számmal fognak rendelkezni.
Az A épület utcafronti, a B épületnek privát szférát alakítanak ki és ügyvéd által lefektetett szolgalmi úton közelíthető meg.
Az épületek teljesen különálló ÖNÁLLÓ CSALÁDI HÁZAK, melyek semmilyen formában nem csatlakoznak egymáshoz.
Az ingatlan hasznos alapterülete 92 m2, 3 hálószoba + amerikai konyhás nappalival kialakított,
2 FÜRDŐSZOBÁVAL ELLÁTOTT. A fürdőszobában fürdőkád és épített zuhany is ki lesz alakítva.
A nappaliból nyílik egy 25 m2-es TERASZ, ahol kényelmesen eltöltheti a szabadidejét.
A ház energetikai besorolása A+
A falazat nemzetközileg elfogadott, japán technológiával készült.
Rétegrend: színvakolat; vékonyvakolat; cementbázisú hálóerősítés; Austrotherm AT-H80(1); Austrotherm AT-H80(14); ragasztó; vasbeton; hőszigetelés; vasbeton.
A tető fafödémmel épül, 20 cm kőzetgyapot födém szigeteléssel ellátott lesz.
A ház fűtése HŐSZIVATTYÚS kialakítású, H tarifával.
Beágyazott fűtőfelülettel rendelkező (padló-, fal-, mennyezetfűtés)
Központi előremenő hőmérséklet szabályozás helyiségenkénti hőmérséklet szabályozással.
A NYÍLÁSZÁRÓK korszerű, háromrétegű üvegezésű ablakok.
A házhoz 600 m2 saját használatú telek tartozik, ahol akár két autó is kényelmesen parkolhat.
VÁRHATÓ ÁTADÁS: 2026. nyár
Amennyiben felkeltettem az érdeklődését, hívjon bizalommal!
Regisztrációs szám
DHZ064039
Az ingatlan adatai
Értékesités
eladó
Jogi státusz
új
Jelleg
ház
Építési mód
egyéb
Méret
92,4 m²
Bruttó méret
92,4 m²
Telek méret
600 m²
Terasz / erkély mérete
24,6 m²
Fűtés
egyéb
Belmagasság
270 cm
Lakáson belüli szintszám
1
Tájolás
Dél
Állapot
Jó
Homlokzat állapota
Jó
Építés éve
2026
Fürdőszobák száma
1
Fekvés
udvari
Víz
Van
Villany
Van
Csatorna
Van
Helyiségek
előszoba
8.66 m²
közlekedő
4.29 m²
szoba
12.18 m²
szoba
11.2 m²
szoba
10.53 m²
fürdőszoba-wc
6.73 m²
háztartási helyiség
4.35 m²
wc
1.5 m²
konyha-étkező
14.44 m²
nappali
18.58 m²
terasz
24.64 m²