185 000 000 Ft
473 000 €
- 284,1m²
- 3 szoba



















Vásároljon OKOS otthont!
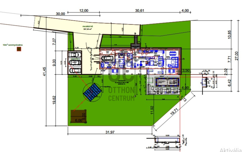
Eladó egy 2025-ben épült, intelligens, okos otthon Debrecen varázslatos környezetében, a Diószegi út irányából a Fancsikai tavak felé, az Erdős pusztai Arborétum közelében. Az ingatlan 199,07 m²-es hasznos alapterülettel büszkélkedhet, mely földszintes kivitelben került megalkotásra, plusz a 3,08 méteres építménymagasság teszi még impozánsabbá. A telekhez tartozik még egy 2800 nm alapterületű telek, mely ingyenes, 50 évre szóló bérleti joggal használható. Továbbá a telek mellett található 10.000 nm alapterületű erdő megvásárlása esetén, még teljesebb körű élményt nyújt az új tulajdonosnak.
Ez az ingatlan tökéletes választás azoknak, akik az élvonalbeli kényelmi lehetőségek mellett fontosnak tartják az ökotudatos életmódot és a természettel való harmonikus együttélést. A modern berendezéseket az eladási ár tartalmazza, így az új tulajdonosok azonnal élvezhetik ezen exkluzív otthon adta lehetőségeket.
Az épület 85%-os készültségi állapotú, néhány helyiségben még hiányoznak a burkolatok és lámpatestek, azonban ezeknek a beszerzés már megtörtént, csupán a munkák befejezés szükséges. Kisebb tereprendezés és a gépészeti rendszer beüzemelésére is szükség van.
A lakókomfortot tovább növeli a kültéri jacuzzi és medence, valamint a beltéri 3 az 1-ben finn szauna és a kétszemélyes pezsgőfürdő. Egy különlegesen kialakított szobához tartozik fürdőkádas, zuhanykabinos fürdőszoba is. Az ingatlan falazata tégla, plusz 10 cm-es hungarocell szigetelést kapott, a tetőt cserép héjazat borítja és fából készült szigetelt tetőszerkezettel rendelkezik.
Az épület modern, okos otthon technológiával büszkélkedik, elő van készítve a legkorszerűbb funkcióknak megfelelően. A fűtést és hűtést a padló-, fal- és mennyezetbe integrált rendszer, valamint a talajhőszivattyú biztosítja, míg az energiaellátást egy 5 kW-os napenergia rendszer teszi hatékonnyá. Teljes közműellátással rendelkezik, a szennyvíz kezelése akár talajszivárogtatással, vagy a gerincvezetékre történő csatlakozással megoldható.
Az ingatlanhoz vezető 1.500 m²-es szolgalmi út garantálja a privát megközelíthetőséget, szintén megvásárolható, illetve az ingatlan további terület-vásárlási vagy bérleti lehetőségekkel is bővíthető - akár egy teljes hektár területtel is!
A természet és nyugalom kedvelőinek ideális választás ez a hely, ahol a város zajától távol, de mégis nem túl messze élvezhetik otthonuk nyugalmát.
Ha felkeltette érdeklődését az ajánlatom, forduljon hozzám bizalommal, akár hétvégén is szívesen megmutatom.
Eladó egy 2025-ben épült, intelligens, okos otthon Debrecen varázslatos környezetében, a Diószegi út irányából a Fancsikai tavak felé, az Erdős pusztai Arborétum közelében. Az ingatlan 199,07 m²-es hasznos alapterülettel büszkélkedhet, mely földszintes kivitelben került megalkotásra, plusz a 3,08 méteres építménymagasság teszi még impozánsabbá. A telekhez tartozik még egy 2800 nm alapterületű telek, mely ingyenes, 50 évre szóló bérleti joggal használható. Továbbá a telek mellett található 10.000 nm alapterületű erdő megvásárlása esetén, még teljesebb körű élményt nyújt az új tulajdonosnak.
Ez az ingatlan tökéletes választás azoknak, akik az élvonalbeli kényelmi lehetőségek mellett fontosnak tartják az ökotudatos életmódot és a természettel való harmonikus együttélést. A modern berendezéseket az eladási ár tartalmazza, így az új tulajdonosok azonnal élvezhetik ezen exkluzív otthon adta lehetőségeket.
Az épület 85%-os készültségi állapotú, néhány helyiségben még hiányoznak a burkolatok és lámpatestek, azonban ezeknek a beszerzés már megtörtént, csupán a munkák befejezés szükséges. Kisebb tereprendezés és a gépészeti rendszer beüzemelésére is szükség van.
A lakókomfortot tovább növeli a kültéri jacuzzi és medence, valamint a beltéri 3 az 1-ben finn szauna és a kétszemélyes pezsgőfürdő. Egy különlegesen kialakított szobához tartozik fürdőkádas, zuhanykabinos fürdőszoba is. Az ingatlan falazata tégla, plusz 10 cm-es hungarocell szigetelést kapott, a tetőt cserép héjazat borítja és fából készült szigetelt tetőszerkezettel rendelkezik.
Az épület modern, okos otthon technológiával büszkélkedik, elő van készítve a legkorszerűbb funkcióknak megfelelően. A fűtést és hűtést a padló-, fal- és mennyezetbe integrált rendszer, valamint a talajhőszivattyú biztosítja, míg az energiaellátást egy 5 kW-os napenergia rendszer teszi hatékonnyá. Teljes közműellátással rendelkezik, a szennyvíz kezelése akár talajszivárogtatással, vagy a gerincvezetékre történő csatlakozással megoldható.
Az ingatlanhoz vezető 1.500 m²-es szolgalmi út garantálja a privát megközelíthetőséget, szintén megvásárolható, illetve az ingatlan további terület-vásárlási vagy bérleti lehetőségekkel is bővíthető - akár egy teljes hektár területtel is!
A természet és nyugalom kedvelőinek ideális választás ez a hely, ahol a város zajától távol, de mégis nem túl messze élvezhetik otthonuk nyugalmát.
Ha felkeltette érdeklődését az ajánlatom, forduljon hozzám bizalommal, akár hétvégén is szívesen megmutatom.
Regisztrációs szám
DHZ046364
Az ingatlan adatai
Értékesités
eladó
Jogi státusz
új
Jelleg
ház
Építési mód
tégla
Méret
284,1 m²
Bruttó méret
284,1 m²
Telek méret
360 m²
Terasz / erkély mérete
112,3 m²
Fűtés
megújuló
Belmagasság
270 cm
Lakáson belüli szintszám
1
Tájolás
Dél-nyugat
Állapot
Jó
Homlokzat állapota
Jó
Építés éve
2025
Fürdőszobák száma
3
Fekvés
udvari
Víz
Van
Gáz
Van
Villany
Van
Csatorna
Van
Helyiségek
ebédlő
14.09 m²
nappali
22.01 m²
konyha
14.4 m²
wc
1.5 m²
előszoba
10.49 m²
szoba
14.55 m²
fürdőszoba-wc
4.26 m²
gardrób
3.2 m²
közlekedő
7.13 m²
fürdőszoba-wc
9.36 m²
szoba
11.92 m²
terasz
78.45 m²
veranda
30.8 m²
veranda
3.08 m²

Czellér András
Hitelszakértő