259 900 000 Ft
681 000 €
- 330m²
- 5 szoba
Eladó luxus villa Budapesten a 15.-ik kerületben!
Ez az ingatlan tökéletes választás azok számára, akik értékelik a modern építészeti megoldásokat, a kényelmet és a luxust. Ne hagyja ki ezt a kivételes lehetőséget, hogy Ön lehessen ennek az exkluzív otthonnak a tulajdonosa.
Az épület egy kb. 330 m2 alapterületű, tégla építésű luxus ház. 2012-ben épült. Két lakószinttel + egy hatalmas borospincével rendelkezik. Az elrendezése: hatalmas amerikai konyha+nappali, 4 szoba, 3 fürdőszoba, 3 gardrób( melyek szobává alakíthatók), téli kert, ahol a jacuzzi található és a borospince.
A ház műszaki tartalma kimagasló színvonalú: A belső terek prémium burkolatokkal, bútorokkal és háztartási gépekkel lettek kialakítva. Az ingatlan belső tereit gondosan tervezték meg, hogy maximalizálják a kényelmet és a funkcionalitást. Az otthon melegét gáz kazánnal, míg a nyári hónapok kellemes hőmérsékletét klímaberendezéssel biztosíthatja a jövőbeli tulajdonos. A helyiségek praktikus elrendezésűek, stílusukat belsőépítész tervei alapján alkotta meg a tulajdonos.
Műszaki tartalom:
- gázfűtés padló és falfűtéssel
-l égkondícionálás
- Prémium hőszigetlet nyilászárók, hatalmas üvegfelületek
- Jacuzzi
- poroszsüveges borospince
- iroda
- több gardróbszoba
- 2 állásos garázs
- gyönyörű parkosított kert
A telek 736 m2 területű. A házból nyíló udvari nézet nyugalommal tölti meg a lakóteret, Ez a sajátos elhelyezkedés teszi lehetővé, hogy élvezze a városi élet minden előnyét. A terület rendelkezik egy kb. 55 m2-es igényesen kivitelezett duplagarázzsal is.
Az ingatlan nem csak modern kényelemmel, de kiváló közlekedési kapcsolatokkal is rendelekzik. Egy igazi ritkaság azok számára, akik minőségi lakókörnyezetre vágynak.
Keressen bizalommal!
Ez az ingatlan tökéletes választás azok számára, akik értékelik a modern építészeti megoldásokat, a kényelmet és a luxust. Ne hagyja ki ezt a kivételes lehetőséget, hogy Ön lehessen ennek az exkluzív otthonnak a tulajdonosa.
Az épület egy kb. 330 m2 alapterületű, tégla építésű luxus ház. 2012-ben épült. Két lakószinttel + egy hatalmas borospincével rendelkezik. Az elrendezése: hatalmas amerikai konyha+nappali, 4 szoba, 3 fürdőszoba, 3 gardrób( melyek szobává alakíthatók), téli kert, ahol a jacuzzi található és a borospince.
A ház műszaki tartalma kimagasló színvonalú: A belső terek prémium burkolatokkal, bútorokkal és háztartási gépekkel lettek kialakítva. Az ingatlan belső tereit gondosan tervezték meg, hogy maximalizálják a kényelmet és a funkcionalitást. Az otthon melegét gáz kazánnal, míg a nyári hónapok kellemes hőmérsékletét klímaberendezéssel biztosíthatja a jövőbeli tulajdonos. A helyiségek praktikus elrendezésűek, stílusukat belsőépítész tervei alapján alkotta meg a tulajdonos.
Műszaki tartalom:
- gázfűtés padló és falfűtéssel
-l égkondícionálás
- Prémium hőszigetlet nyilászárók, hatalmas üvegfelületek
- Jacuzzi
- poroszsüveges borospince
- iroda
- több gardróbszoba
- 2 állásos garázs
- gyönyörű parkosított kert
A telek 736 m2 területű. A házból nyíló udvari nézet nyugalommal tölti meg a lakóteret, Ez a sajátos elhelyezkedés teszi lehetővé, hogy élvezze a városi élet minden előnyét. A terület rendelkezik egy kb. 55 m2-es igényesen kivitelezett duplagarázzsal is.
Az ingatlan nem csak modern kényelemmel, de kiváló közlekedési kapcsolatokkal is rendelekzik. Egy igazi ritkaság azok számára, akik minőségi lakókörnyezetre vágynak.
Keressen bizalommal!
Regisztrációs szám
DHZ031129
Az ingatlan adatai
Értékesités
eladó
Jogi státusz
használt
Jelleg
ház
Építési mód
tégla
Méret
330 m²
Bruttó méret
330 m²
Telek méret
736 m²
Lakáson belüli szintszám
2
Tájolás
Dél-kelet
Állapot
Kiváló
Homlokzat állapota
Kiváló
Építés éve
2012
Fürdőszobák száma
2
Fekvés
udvari
Víz
Van
Gáz
Van
Villany
Van
Csatorna
Van
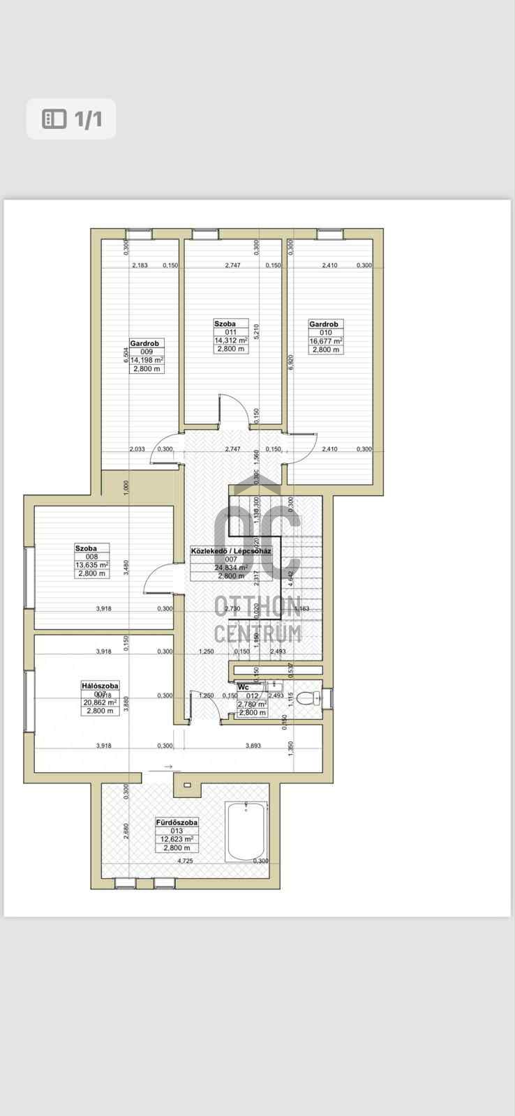
Helyiségek
szoba
14.3 m²
gardrób
14.1 m²
gardrób
16.6 m²
közlekedő
24.8 m²
szoba
13.6 m²
szoba
20.8 m²
wc
2.78 m²
nappali
29 m²
konyha-étkező
25.1 m²
előszoba
9.8 m²
közlekedő
10.41 m²
gardrób
5.47 m²
fürdőszoba-wc
6.5 m²
nappali
54.7 m²
Pomaházi Pál
Hitelszakértő