Völgyhíd Lakópark
ÚJ ÉPÍTÉSŰ SORHÁZI LAKÁSOK BALATONFÖLDVÁRON a Kőröshegyi Völgyhíd alatti dinamikusan fejlődő lakóparkban
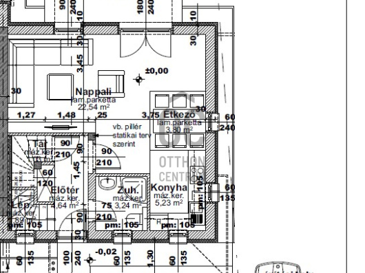
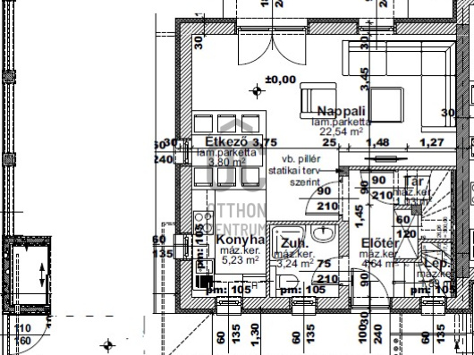
Balatonföldvár egyik legígéretesebb, újonnan kialakuló lakókörnyezetében épülő 4 lakásos sorházi lakásokat talált. Kivételes lokáció, modern építészet kialakuló új lakópark.
A projekt ideális választás saját otthonnak, nyaralónak, értékálló befektetésnek.
A PROJEKT FŐBB JELLEMZŐI:
-4 lakásos, kis volumenű sorház
-modern, letisztult megjelenés
-privát terasz és kertkapcsolat
-családbarát, nyugodt környezet
-könnyű megközelíthetőség (M7, Balaton-part néhány perc)
A lokáció presztízsét az ikonikus völgyhíd közelsége és a Balaton-parti infrastruktúra biztosítja.
FINANSZÍROZÁSI LEHETŐSÉG
A lakások akár Otthon Start Program hitellel is megvásárolhatók, így ideális lehetőség első lakásvásárlóknak vagy tudatos befektetőknek is.
MIÉRT JÓ DÖNTÉS?
-Folyamatosan fejlődő környezet
-Értéknövekedési potenciál
-Kiváló kiadhatóság szezonálisan és hosszú távon is
#Balatonföldvár #BalatonÉletérzés #PanorámaOtthon #VölgyhídLátvány #BalatoniOtthon #ÚjÉpítésű
#ModernOtthon #Kertkapcsolat #TeraszÉlet #BalatonPart #OtthonAholJóLenni #ReggeliKávéATeraszon #NapfényesOtthon #BalatoniMindennapok #NyugalomÉsStílus
#LassabbRitmus #Értékálló #IngatlanBefektetés #LimitáltProjekt #Értéknövekedés #BiztosDöntés
#OtthonStartProgram #BalatoniIngatlan #PrémiumLokáció
Balatonföldvár egyik legígéretesebb, újonnan kialakuló lakókörnyezetében épülő 4 lakásos sorházi lakásokat talált. Kivételes lokáció, modern építészet kialakuló új lakópark.
A projekt ideális választás saját otthonnak, nyaralónak, értékálló befektetésnek.
A PROJEKT FŐBB JELLEMZŐI:
-4 lakásos, kis volumenű sorház
-modern, letisztult megjelenés
-privát terasz és kertkapcsolat
-családbarát, nyugodt környezet
-könnyű megközelíthetőség (M7, Balaton-part néhány perc)
A lokáció presztízsét az ikonikus völgyhíd közelsége és a Balaton-parti infrastruktúra biztosítja.
FINANSZÍROZÁSI LEHETŐSÉG
A lakások akár Otthon Start Program hitellel is megvásárolhatók, így ideális lehetőség első lakásvásárlóknak vagy tudatos befektetőknek is.
MIÉRT JÓ DÖNTÉS?
-Folyamatosan fejlődő környezet
-Értéknövekedési potenciál
-Kiváló kiadhatóság szezonálisan és hosszú távon is
#Balatonföldvár #BalatonÉletérzés #PanorámaOtthon #VölgyhídLátvány #BalatoniOtthon #ÚjÉpítésű
#ModernOtthon #Kertkapcsolat #TeraszÉlet #BalatonPart #OtthonAholJóLenni #ReggeliKávéATeraszon #NapfényesOtthon #BalatoniMindennapok #NyugalomÉsStílus
#LassabbRitmus #Értékálló #IngatlanBefektetés #LimitáltProjekt #Értéknövekedés #BiztosDöntés
#OtthonStartProgram #BalatoniIngatlan #PrémiumLokáció