Exkluzív újépítésű lakások a II. kerület zöldövezetében!
A természet közelsége és a modern városi élet harmóniája egyesül ebben a kivételes újépítésű társasházban, amely Budapest II. kerületének egyik kedvelt részén valósul meg.
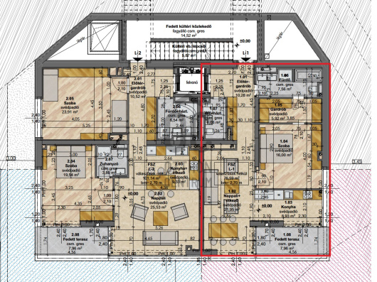
A háromszintes, letisztult vonalvezetésű épületben összesen négy lakás került kialakításra, köztük egy exkluzív penthouse is.
A társasház a legmodernebb műszaki megoldásokkal, energiatakarékos hőszivattyús rendszerrel, okosotthon-vezérléssel, parkosított kerttel és elektromos autótöltési lehetőséggel rendelkezik.
Lakáselosztás
Földszint: 1 db kertkapcsolatos lakás
I. emelet: 2 db lakás (igény esetén egyben is megvásárolható)
II. emelet: 1 db Penthouse, lenyűgöző panorámás terasszal
Minden lakáshoz erkély vagy terasz, valamint saját tároló és gépkocsibeálló tartozik a pinceszinten. A lakáshoz opcionálisan megvásárolható tágas parkolóhely (15 M Ft/db), valamint egy 12 m²-es, dupla mosogatós tárolóhelyiség (10 M Ft), mely praktikus bővítése lehet az ingatlan kényelmének.
Műszaki jellemzők
Hőszivattyús hűtő-fűtő rendszer és padlófűtés
Loxone okosotthon rendszer
Prémium minőségű burkolatok, szaniterek
Elektromos autótöltési lehetőség
Parkosított kert automata öntözőrendszerrel
Kaputelefon rendszer
Lift és akadálymentes közlekedés
Zöldtető és korszerű hőszigetelés
Parkolás
A pinceszinten elhelyezett, kényelmes méretű gépkocsibeállók biztosítják a lakók parkolását.
A parkolókból közvetlenül megközelíthető a lift és a lépcsőház, így teljes kényelemben juthatunk fel a lakásokhoz.
Környezet
A környék nyugodt, csendes, zöldövezeti, ugyanakkor kiváló közlekedéssel és infrastruktúrával rendelkezik.
A közelben számos bevásárlási lehetőség, iskola és nemzetközi intézmény található (pl. British International School of Budapest), valamint a Rózsadomb Center, Mammut Bevásárlóközpont, és több természetközeli sétaútvonal is elérhető pár perc alatt.
További részletekért hívjon mielőbb!
Egyedi igényekre szabott lakáshitelekkel állunk rendelkezésére. Bankfüggetlen Hitel Centrumunk az országban elérhető összes bank és hitelintézet ajánlatát versenyezteti az Ön számára díjmentesen.
Munkatársaink nagy szakmai tapasztalattal várják Önt az előre egyeztetett időpontban akár a normál munkaidő után is.
A háromszintes, letisztult vonalvezetésű épületben összesen négy lakás került kialakításra, köztük egy exkluzív penthouse is.
A társasház a legmodernebb műszaki megoldásokkal, energiatakarékos hőszivattyús rendszerrel, okosotthon-vezérléssel, parkosított kerttel és elektromos autótöltési lehetőséggel rendelkezik.
Lakáselosztás
Földszint: 1 db kertkapcsolatos lakás
I. emelet: 2 db lakás (igény esetén egyben is megvásárolható)
II. emelet: 1 db Penthouse, lenyűgöző panorámás terasszal
Minden lakáshoz erkély vagy terasz, valamint saját tároló és gépkocsibeálló tartozik a pinceszinten. A lakáshoz opcionálisan megvásárolható tágas parkolóhely (15 M Ft/db), valamint egy 12 m²-es, dupla mosogatós tárolóhelyiség (10 M Ft), mely praktikus bővítése lehet az ingatlan kényelmének.
Műszaki jellemzők
Hőszivattyús hűtő-fűtő rendszer és padlófűtés
Loxone okosotthon rendszer
Prémium minőségű burkolatok, szaniterek
Elektromos autótöltési lehetőség
Parkosított kert automata öntözőrendszerrel
Kaputelefon rendszer
Lift és akadálymentes közlekedés
Zöldtető és korszerű hőszigetelés
Parkolás
A pinceszinten elhelyezett, kényelmes méretű gépkocsibeállók biztosítják a lakók parkolását.
A parkolókból közvetlenül megközelíthető a lift és a lépcsőház, így teljes kényelemben juthatunk fel a lakásokhoz.
Környezet
A környék nyugodt, csendes, zöldövezeti, ugyanakkor kiváló közlekedéssel és infrastruktúrával rendelkezik.
A közelben számos bevásárlási lehetőség, iskola és nemzetközi intézmény található (pl. British International School of Budapest), valamint a Rózsadomb Center, Mammut Bevásárlóközpont, és több természetközeli sétaútvonal is elérhető pár perc alatt.
További részletekért hívjon mielőbb!
Egyedi igényekre szabott lakáshitelekkel állunk rendelkezésére. Bankfüggetlen Hitel Centrumunk az országban elérhető összes bank és hitelintézet ajánlatát versenyezteti az Ön számára díjmentesen.
Munkatársaink nagy szakmai tapasztalattal várják Önt az előre egyeztetett időpontban akár a normál munkaidő után is.