Taksonyi kizárólag garázsoknál érintkező, újépítésű ikerházak eladók
- téglaépítésű
- kétszintes
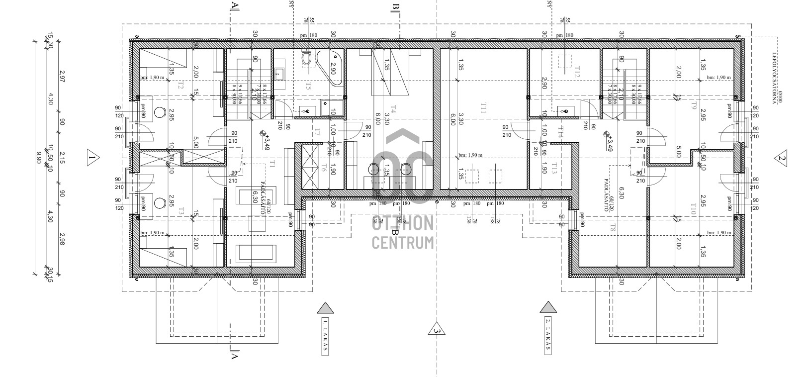
- földszint nettó alapterület: 124,67 m2 + garázs +terasz
(földszint: 67,32 m2 + emelet 87,46 m2 (hasznos: 57,35 m2))
- amerikai konyhás nappali + 4 hálószoba
- két fürdőszoba
- fűtése: hőszivattyú + padlófűtés
- választható burkolatok (hideg: 6.000,- Ft/m2, meleg: 5.000,- Ft/m2)
- garázs
- fedett terasz
- Hitel, CSOK, Otthon Start igényelhető
Közlekedés: Dunaharaszti HÉV megálló 15p, Közvágóhíd autóval 25p, tömegközlekedéssel kb 45 perc.
Buszok: 653,655,660
Megbízható, magyar vállalkozó, aki kifejezetten odafigyel a kivitelezés minőségére.
Várható átadás: 2026.08.31.
- téglaépítésű
- kétszintes
- földszint nettó alapterület: 124,67 m2 + garázs +terasz
(földszint: 67,32 m2 + emelet 87,46 m2 (hasznos: 57,35 m2))
- amerikai konyhás nappali + 4 hálószoba
- két fürdőszoba
- fűtése: hőszivattyú + padlófűtés
- választható burkolatok (hideg: 6.000,- Ft/m2, meleg: 5.000,- Ft/m2)
- garázs
- fedett terasz
- Hitel, CSOK, Otthon Start igényelhető
Közlekedés: Dunaharaszti HÉV megálló 15p, Közvágóhíd autóval 25p, tömegközlekedéssel kb 45 perc.
Buszok: 653,655,660
Megbízható, magyar vállalkozó, aki kifejezetten odafigyel a kivitelezés minőségére.
Várható átadás: 2026.08.31.