Álom luxuskivetelben a Jókain
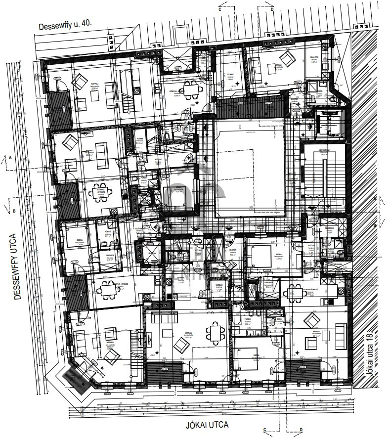
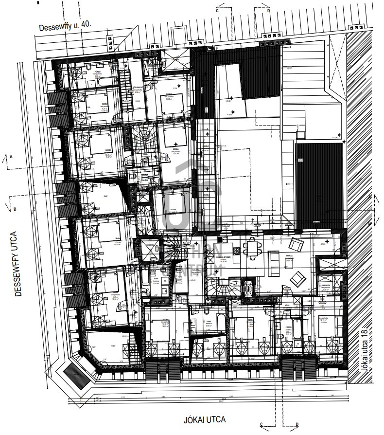
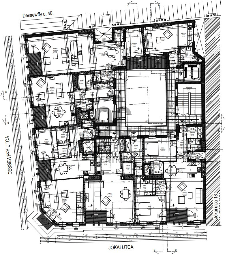
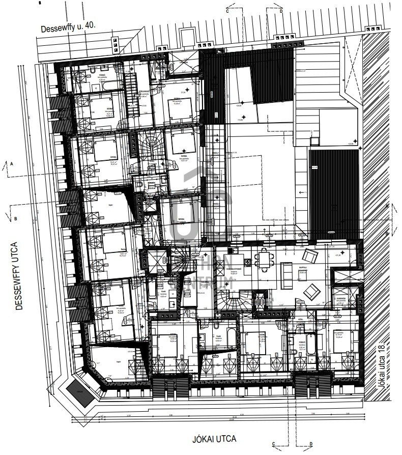
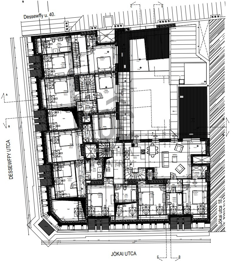
Kétszintes tetőtérbeépítés és emeletráépítés keretében 7 db egy- illetve belső kétszintes, változatos méretű (nettó 32 - 130 nm-es) és elosztású (stúdió, nappali + 2, 3 hálószobás), nagy teraszos, utcai nézetű luxus lakást kínálok eladásra a Jókai és az Dessewffy utca saroképületén.
Minden lakó- és pihenő igényt kielégítő modern, a szabványoknak megfelelő, vagy azt meghaladó méretű, funkciójú igény és minőségi szintű helyiségekkel, illetve innovatív építészeti megoldásokkal kerültek megtervezésre.
Elsődleges szempont volt, hogy minden nappali és a szobák nagy része, illetve az emeleten található szobák teraszkapcsolattal is rendelkezzenek, ezzel jelentősen nyitottak legyenek a külvilágra, így fényes, szellős és tágas terek alakuljanak ki, nagy nyílászárókkal, jelentős üvegfelületekkel rendelkeznek.
Levegő-víz rendszerű hőszivattyús hűtés-fűtés rendszerrel kerülnek beépítésre, amelyhez külön geo-tarifás mérőórát biztosít az áramszolgáltató, így az elektromos energia ára 20-30% kedvezőbb az általános lakossági tarifáknál.
A fejlesztésünk során elkészül a ház felújítása is, amely érinti a külső-belső homlokzatokat, nyílászárókat, az elektromos hálózatot, a közmű-bekötéseket. Az épületbe modern lift kerül beépítésre.
A két világháború között, a ’20-as években épült nagypolgári épület a Jókai - Dessewffy utca sarkán található, a nyüzsgő budapesti belváros szívében, a Liszt Ferenc tér közvetlen közelében, egy háztömbnyire a Teréz körúttól, a VI. kerületi Bajcsy-Zsilinszky - Andrássy út - Teréz körút által határolt Belső-Terézváros legfrekventáltabb részén.
Az épület Budapest egyik leginkább városias-belvárosias szövetének része, ennek megfelelően a környéken, mind a kereskedelem, mind a szórakozási-kulturális lehetőségek, mind az oktatás intézmények szinte minden spektruma rövid sétatávolságon belül megtalálható.
Tömegközlekedési eszközökkel is jól megközelíthető, a pesti városrész nevezetességei (Opera, Bazilika), és méltán egyre népszerűbb szórakozóhelyei, éttermei, romkocsmái, akár gyalog is elérhetőek. A közelben jár a 4-es 6-os villamos, de a 3-as metró Nyugati téri állomásához, és az Oktogonnál lévő 1-es metróhelyéhez is néhány perces sétával el lehet jutni.
Minden lakó- és pihenő igényt kielégítő modern, a szabványoknak megfelelő, vagy azt meghaladó méretű, funkciójú igény és minőségi szintű helyiségekkel, illetve innovatív építészeti megoldásokkal kerültek megtervezésre.
Elsődleges szempont volt, hogy minden nappali és a szobák nagy része, illetve az emeleten található szobák teraszkapcsolattal is rendelkezzenek, ezzel jelentősen nyitottak legyenek a külvilágra, így fényes, szellős és tágas terek alakuljanak ki, nagy nyílászárókkal, jelentős üvegfelületekkel rendelkeznek.
Levegő-víz rendszerű hőszivattyús hűtés-fűtés rendszerrel kerülnek beépítésre, amelyhez külön geo-tarifás mérőórát biztosít az áramszolgáltató, így az elektromos energia ára 20-30% kedvezőbb az általános lakossági tarifáknál.
A fejlesztésünk során elkészül a ház felújítása is, amely érinti a külső-belső homlokzatokat, nyílászárókat, az elektromos hálózatot, a közmű-bekötéseket. Az épületbe modern lift kerül beépítésre.
A két világháború között, a ’20-as években épült nagypolgári épület a Jókai - Dessewffy utca sarkán található, a nyüzsgő budapesti belváros szívében, a Liszt Ferenc tér közvetlen közelében, egy háztömbnyire a Teréz körúttól, a VI. kerületi Bajcsy-Zsilinszky - Andrássy út - Teréz körút által határolt Belső-Terézváros legfrekventáltabb részén.
Az épület Budapest egyik leginkább városias-belvárosias szövetének része, ennek megfelelően a környéken, mind a kereskedelem, mind a szórakozási-kulturális lehetőségek, mind az oktatás intézmények szinte minden spektruma rövid sétatávolságon belül megtalálható.
Tömegközlekedési eszközökkel is jól megközelíthető, a pesti városrész nevezetességei (Opera, Bazilika), és méltán egyre népszerűbb szórakozóhelyei, éttermei, romkocsmái, akár gyalog is elérhetőek. A közelben jár a 4-es 6-os villamos, de a 3-as metró Nyugati téri állomásához, és az Oktogonnál lévő 1-es metróhelyéhez is néhány perces sétával el lehet jutni.