1,539,271 Ft
4,300 €
- 190m²
- ground floor
Kiadó egy kivételes adottságokkal rendelkező üzlethelyiség Budapest egyik legforgalmasabb kereskedelmi csomópontjában, a XI. kerület szívében, a Móricz Zsigmond körtéren.
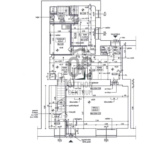
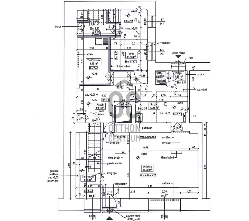
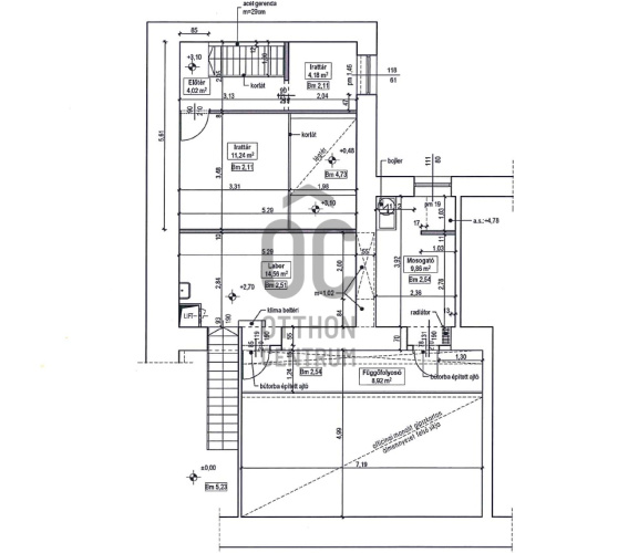
Az üzlethelyiség földszinti területe kb 90 m², amely tágas, jól alakítható eladótérrel és nagy méretű, utcafronti portállal rendelkezik.
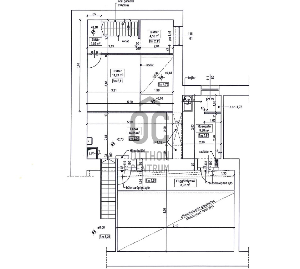
Emeleti része 50 m², mely, igény szerint tovább bővíthető, így akár galériás, irodai vagy vendégtérként is hasznosítható.
Pince területe 50 m² ami ideális raktár, előkészítő helyiség vagy egyéb kiszolgáló funkciók számára.
Az üzlethelyiség nagy utcai portállal rendelkezik, amely közvetlenül a körtér egyik villamosmegállójára néz, így garantált az egész napos, intenzív gyalogosforgalom.
Közelben található továbbá a villamosmegálló zebrája és a 4-es metró feljárata is.
Az ingatlan adottságainak és elhelyezkedésének köszönhetően ideális lehet kiskereskedelmi egységnek (üzlet, bemutatóterem), vendéglátóhelynek (kávézó, pékség, street food, pizza, tészta), de ideális szolgáltató tevékenységnek is.
Az üzlethelyiség előtt terasz kialakítására is van lehetőség, ami különösen vonzóvá teszi vendéglátó funkció esetén. Ez az ingatlan kiváló választás mindazok számára, akik frekventált, prémium lokációban, kiemelkedő láthatósággal és rugalmasan alakítható térrel keresnek üzleti lehetőséget Budapest egyik legpezsgőbb csomópontjában.
Az energetikai tanúsítvány készítése folyamatban van, amint rendelkezésre áll, úgy azzal a hirdetés frissítésre kerül.
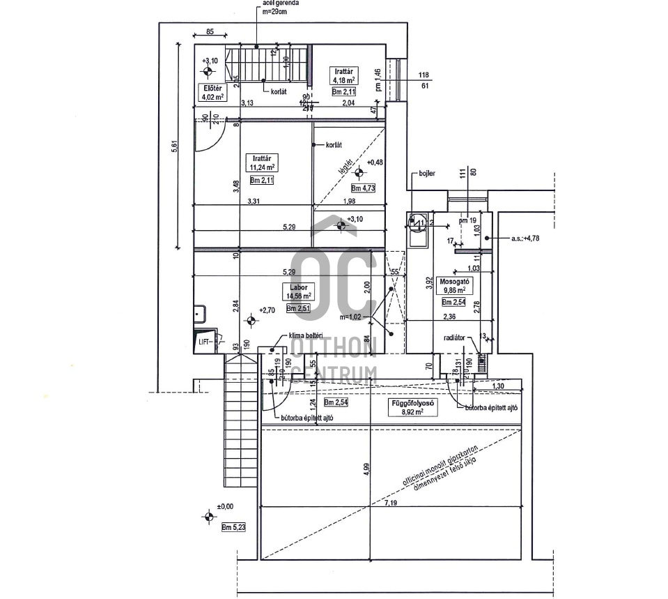
Az üzlethelyiség földszinti területe kb 90 m², amely tágas, jól alakítható eladótérrel és nagy méretű, utcafronti portállal rendelkezik.
Emeleti része 50 m², mely, igény szerint tovább bővíthető, így akár galériás, irodai vagy vendégtérként is hasznosítható.
Pince területe 50 m² ami ideális raktár, előkészítő helyiség vagy egyéb kiszolgáló funkciók számára.
Az üzlethelyiség nagy utcai portállal rendelkezik, amely közvetlenül a körtér egyik villamosmegállójára néz, így garantált az egész napos, intenzív gyalogosforgalom.
Közelben található továbbá a villamosmegálló zebrája és a 4-es metró feljárata is.
Az ingatlan adottságainak és elhelyezkedésének köszönhetően ideális lehet kiskereskedelmi egységnek (üzlet, bemutatóterem), vendéglátóhelynek (kávézó, pékség, street food, pizza, tészta), de ideális szolgáltató tevékenységnek is.
Az üzlethelyiség előtt terasz kialakítására is van lehetőség, ami különösen vonzóvá teszi vendéglátó funkció esetén. Ez az ingatlan kiváló választás mindazok számára, akik frekventált, prémium lokációban, kiemelkedő láthatósággal és rugalmasan alakítható térrel keresnek üzleti lehetőséget Budapest egyik legpezsgőbb csomópontjában.
Az energetikai tanúsítvány készítése folyamatban van, amint rendelkezésre áll, úgy azzal a hirdetés frissítésre kerül.
Registration Number
UZ019555
Property Details
Sales
for rent
Legal Status
used
Character
commercial
Type of Business Property
part of building
Construction Method
brick
Net Size
190 m²
Above-Ground Net Size
140 m²
Heating
Gas circulator
Ceiling Height
520 cm
Condition
Average
Condition of Facade
Good
Condition of Staircase
Good
Common Costs
45000
Water
Available
Gas
Available
Electricity
Available
Sewer
Available
Possible Functions
retail, hospitality unit, office, office and showroom or shop, office and warehouse, showroom, showroom and service or warehouse, logistics center, healthcare center, educational center
Visibility
Easily visible from busy main road
Accessibility
Entrance from high foot traffic street
Utilization
vacant
Ruczek Krisztina
Credit Expert