972,900 Ft
2,500 €
- 112m²
- ground floor
Directly on the Danube, a unique apartment/office/showroom for health and educational purposes is available for rent with immediate move-in, even with a garage.
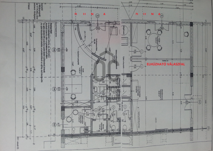
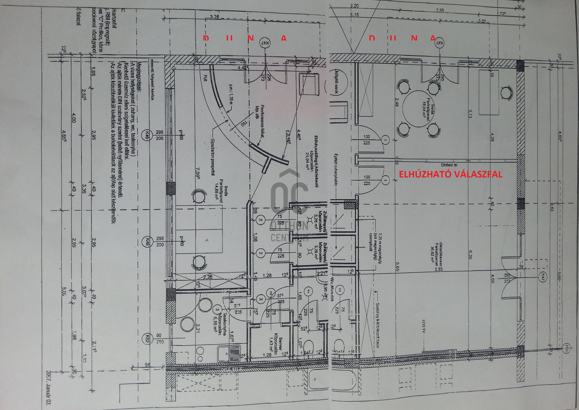
Ground floor with terrace/garden connection. It features 2 showers, 2 toilets, and a large open space of up to 50 square meters (which can be separated with a built-in partition wall if required) with a ceiling height of 400 cm (!), wheelchair accessible, with direct access from the Danube side and from the residential complex.
Previously used as an office/showroom/educational space, it is perfectly suited for creative work due to its excellent local attributes! All utilities are billed individually, and high-speed internet can be requested. - With some modifications, it could even become a fantastic apartment or mixed-use space.
- Located in a truly splendid, tree-lined, quiet natural environment (there is no hospitality or vehicle traffic here), directly on the banks of the Danube!
- The property faces southeast, bathed in a cozy light, with large terraces and a massive 4m ceiling height. - If peace, tranquility, and proximity to nature are important to you, this will be the perfect place! The newly built luxury residential complex offers corresponding services: a gated park, a camera system, and 24-hour security for the residents' peace of mind, along with a beautifully maintained garden featuring a swimming pool (8x16m) with a mirrored surface.
A parking space in the garage and an 11 square meter storage unit are available for rent, but it is also located in a free parking zone. Office furniture can be rented upon request.
2,500 Euros/month, tax-free for private individuals, or with VAT for companies, payable in Euros or HUF, of course, the rent can be paid monthly via bank transfer based on an invoice, with a lawyer-drafted lease agreement and a two-month deposit. If you see the potential in this property, please call me with any further questions.
Ground floor with terrace/garden connection. It features 2 showers, 2 toilets, and a large open space of up to 50 square meters (which can be separated with a built-in partition wall if required) with a ceiling height of 400 cm (!), wheelchair accessible, with direct access from the Danube side and from the residential complex.
Previously used as an office/showroom/educational space, it is perfectly suited for creative work due to its excellent local attributes! All utilities are billed individually, and high-speed internet can be requested. - With some modifications, it could even become a fantastic apartment or mixed-use space.
- Located in a truly splendid, tree-lined, quiet natural environment (there is no hospitality or vehicle traffic here), directly on the banks of the Danube!
- The property faces southeast, bathed in a cozy light, with large terraces and a massive 4m ceiling height. - If peace, tranquility, and proximity to nature are important to you, this will be the perfect place! The newly built luxury residential complex offers corresponding services: a gated park, a camera system, and 24-hour security for the residents' peace of mind, along with a beautifully maintained garden featuring a swimming pool (8x16m) with a mirrored surface.
A parking space in the garage and an 11 square meter storage unit are available for rent, but it is also located in a free parking zone. Office furniture can be rented upon request.
2,500 Euros/month, tax-free for private individuals, or with VAT for companies, payable in Euros or HUF, of course, the rent can be paid monthly via bank transfer based on an invoice, with a lawyer-drafted lease agreement and a two-month deposit. If you see the potential in this property, please call me with any further questions.
Registration Number
UZ019468
Property Details
Sales
for rent
Legal Status
used
Character
commercial
Type of Business Property
part of building
Construction Method
brick
Net Size
112 m²
Size of Terrace / Balcony
30 m²
Above-Ground Net Size
112 m²
Heating
Gas circulator
Ceiling Height
400 cm
View
river or lake view
Condition
Good
Condition of Facade
Good
Condition of Staircase
Good
Furnished
yes
Water
Available
Electricity
Available
Sewer
Available
Elevator
available
Distance to Waterfront
Direct waterfront
Possible Functions
office, office and showroom or shop, office and warehouse, showroom, showroom and service or warehouse, sports center, healthcare center, educational center
Utilization
vacant
Andrejcsik Nikoletta
Credit Expert