800,000 Ft
2,240 €
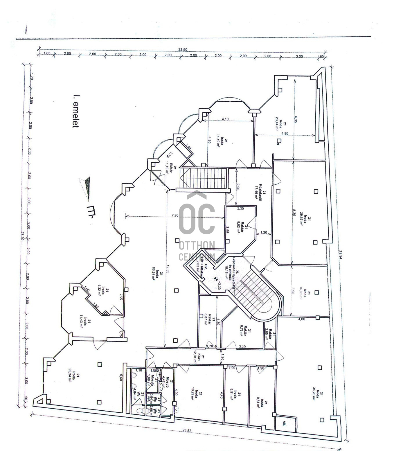
- 382m²
- 2nd floor
Kiadó iroda a Margit híd közelében Budán !
Teljes emelet, amely közvetlen utcai bejárattal rendelkezik. Az irodaként funkcionáló ingatlan központjában egy 80 m2-es, tanfolyamok, továbbképzések és előadások megtartására alkalmas tér van, amelyet körbevesznek a részben belső udvarra, részben az utca felé néző irodák,illetve kiszolgáló egységek. (konyha, mosdók, tároló, szerverszoba stb) Az épület pillérvázas szerkezetének köszönhetően a belső tér igény szerint alakítható.
A nagy ablakfelületek természetes fényt biztosítanak , illetve a 3 rétegű üvegezésnek köszönhetően kiváló a hang és hőszigetelés.
Az iroda fűtését kondenzációs gázkazán biztosítja. Valamennyi utcafronti helyiség klimatizált. Az ingatlan önálló mérőórákkal rendelkezik. Kaputelefon és központi riasztórendszer is kiépítésre került. Az irodákban a munkaállomásokhoz informatikai csatlakozás ki van építve.
Tömegközlekedés kiváló, több busz(86,160,260) és villamos (4-es,6-os) pár lépésre található. 2 villamosmegállónyira a Mammut bevásárlóközpont és a Millenáris Park, a Duna felé pedig a Margit híd sétatávolságban van . Parkolni a környező utcákban és az irodaház melletti teremgarázsban lehet.
Cégközpontnak, ügyfélközpontnak,irodának,oktatási központnak, bemutatóteremnek, vagy egészségügyi intézménynek egyaránt alkalmas, akár nagy ügyfélforgalom lebonyolításával is. Birtokbavétel Augusztustól lehetséges.
A bérleti díj nettó, plusz ÁFA értendő!!!
Ha költöztetné vállalkozását,érdemes mérlegelnie ezt a lehetőséget. További információkkal kapcsolatban várjuk megtisztelő érdeklődését! Az energetikai tanúsítvány készítése folyamatban van, amint rendelkezésre áll, úgy azzal a hirdetés frissítésre kerül.
A nagy ablakfelületek természetes fényt biztosítanak , illetve a 3 rétegű üvegezésnek köszönhetően kiváló a hang és hőszigetelés.
Az iroda fűtését kondenzációs gázkazán biztosítja. Valamennyi utcafronti helyiség klimatizált. Az ingatlan önálló mérőórákkal rendelkezik. Kaputelefon és központi riasztórendszer is kiépítésre került. Az irodákban a munkaállomásokhoz informatikai csatlakozás ki van építve.
Tömegközlekedés kiváló, több busz(86,160,260) és villamos (4-es,6-os) pár lépésre található. 2 villamosmegállónyira a Mammut bevásárlóközpont és a Millenáris Park, a Duna felé pedig a Margit híd sétatávolságban van . Parkolni a környező utcákban és az irodaház melletti teremgarázsban lehet.
Cégközpontnak, ügyfélközpontnak,irodának,oktatási központnak, bemutatóteremnek, vagy egészségügyi intézménynek egyaránt alkalmas, akár nagy ügyfélforgalom lebonyolításával is. Birtokbavétel Augusztustól lehetséges.
A bérleti díj nettó, plusz ÁFA értendő!!!
Ha költöztetné vállalkozását,érdemes mérlegelnie ezt a lehetőséget. További információkkal kapcsolatban várjuk megtisztelő érdeklődését! Az energetikai tanúsítvány készítése folyamatban van, amint rendelkezésre áll, úgy azzal a hirdetés frissítésre kerül.
Registration Number
UZ019403
Property Details
Sales
for rent
Legal Status
used
Character
commercial
Type of Business Property
part of building
Construction Method
brick
Net Size
382 m²
Above-Ground Net Size
382 m²
Ceiling Height
300 cm
View
city view
Condition
Good
Condition of Facade
Good
Condition of Staircase
Good
Year of Construction
1990
Common Costs
52096
Water
Available
Gas
Available
Electricity
Available
Sewer
Available
Elevator
available
Distance to Waterfront
200 meters
Possible Functions
office, showroom, healthcare center, educational center
Visibility
Easily visible on a high foot traffic street
Accessibility
Entrance from high foot traffic street
Utilization
rented out
Monthly Rental Fee
800000
Ruczek János
Credit Expert