119,000,000 Ft
307,000 €
- 300m²
 
            
                                                            
            
                                                            
            
                                                            
            
                                                            
            
                                                            
            
                                                            
            
                                                            
            
                                                            
            
                                                            
            
                                                            
            
                                                            
            
                                                            
            
                                                            
            
                                                            
            
                                                            
            
                                                            Belvárosi, 8 szobás, klimatizált üzletház eladó Hajdúnánáson – kiváló befektetés, jelenleg is bérbeadott!
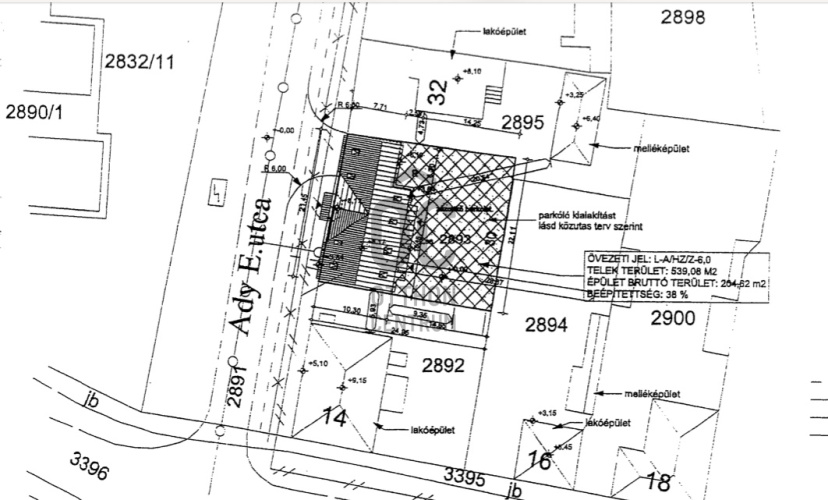
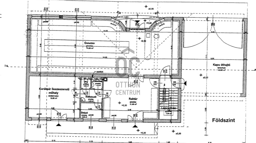
Hajdúnánás belvárosában, frekventált helyen, 540 m²-es telken kínálunk eladásra egy kétszintes, 8 szobás, klimatizált üzletházat, mely jelenleg teljes egészében bérbeadott, így azonnali hozamot biztosít új tulajdonosának.
Az ingatlan a kétezres évek elején épült, beton alapra, tégla falazattal, cserepeslemez tetővel.
Alapterülete: 325 m² (nettó 281 m²).
Fűtését gázkazán biztosítja, emellett 5 darab hűtő-fűtő klíma gondoskodik a kellemes hőmérsékletről egész évben.
Helyiségek beosztása:
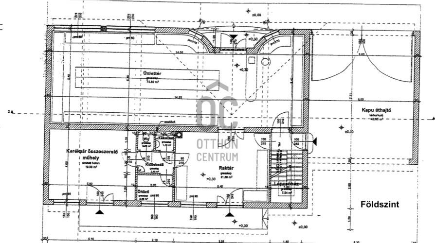
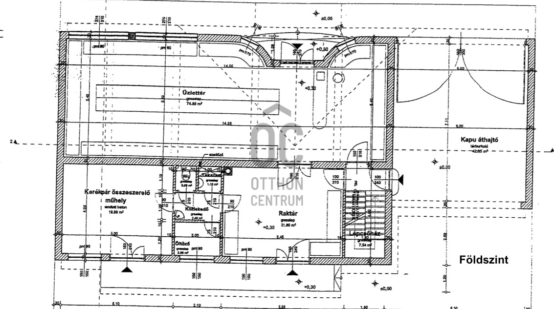
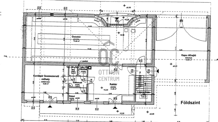
Földszint:
1 db 75 m²-es, utcafronti, nagy helyiség
2 külön szoba (22 és 20 m²)
Konyha, WC, kézmosó, lépcsőház
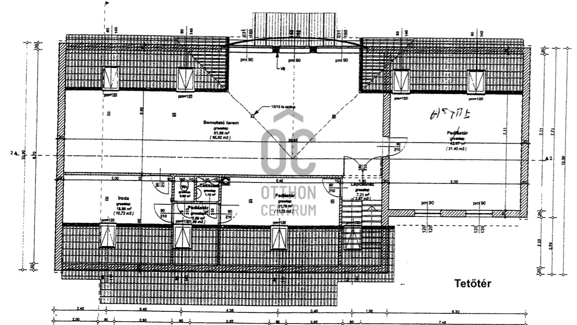
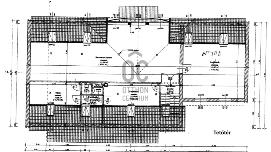
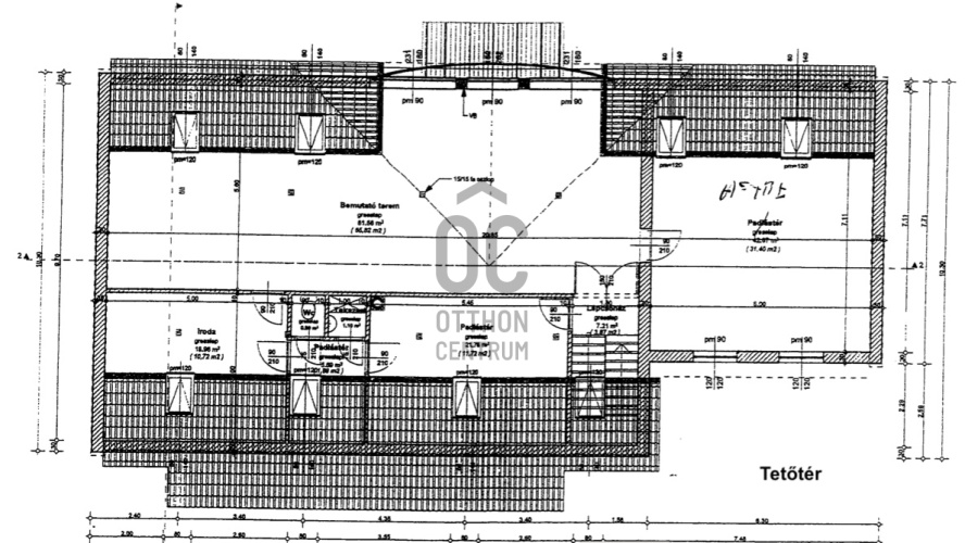
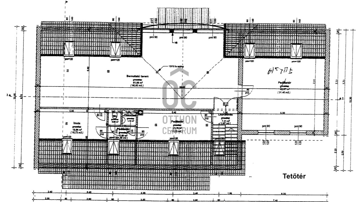
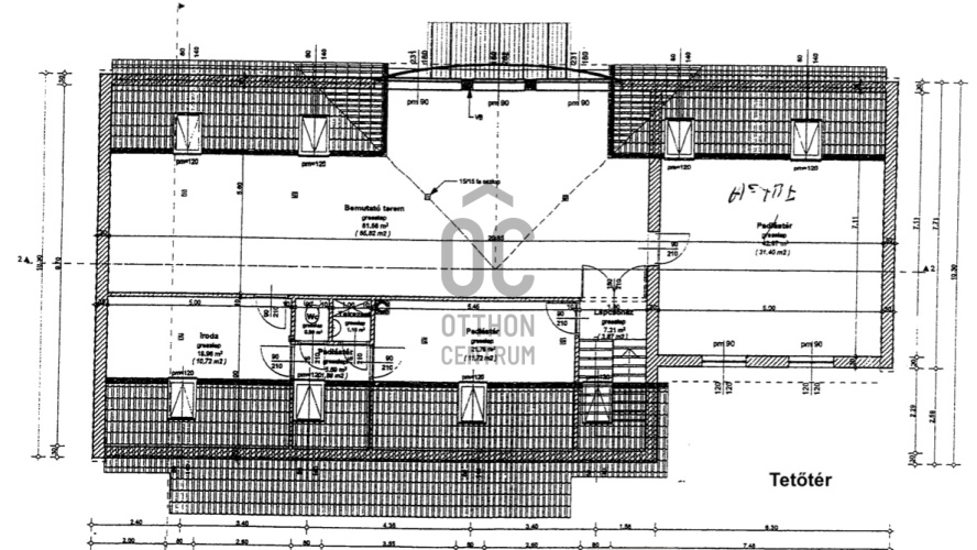
Tetőtér:
82/66 m²-es nagy szoba
42/31 m²-es szoba
2 kisebb szoba (21/11 m² és 19/10 m²)
WC, tusoló, lépcsőház
A teljesen térkövezett udvar akár 8 autó parkolására is alkalmas, valamint található rajta egy kb. 20 m²-es különálló épület, amelyben szoba, fürdőszoba és WC került kialakításra – lakhatásra vagy irodának is kiváló.
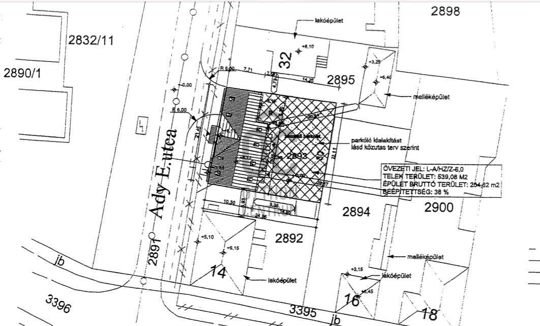
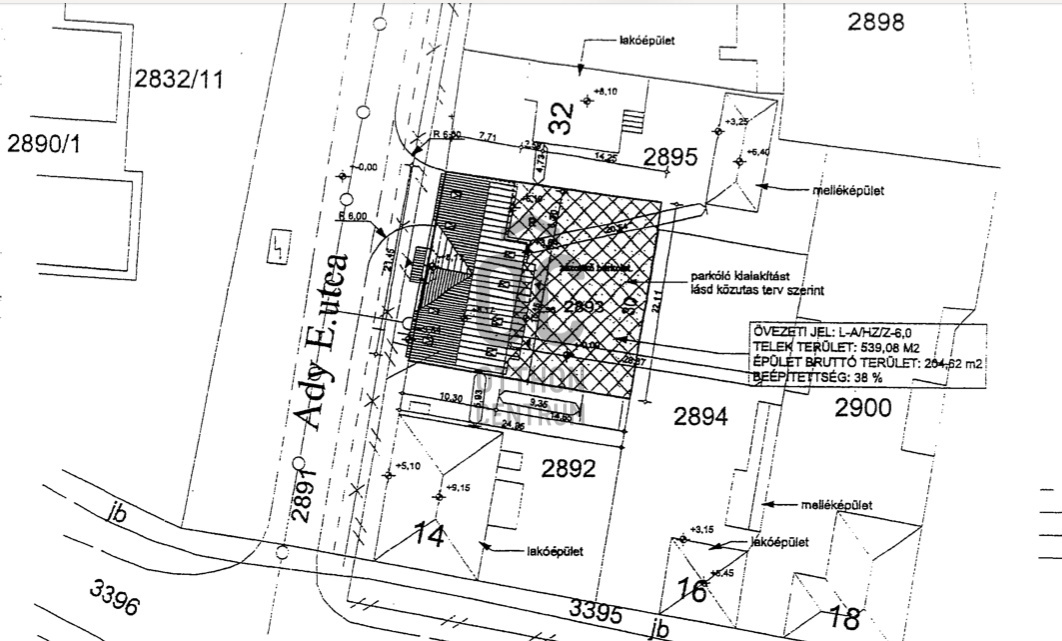
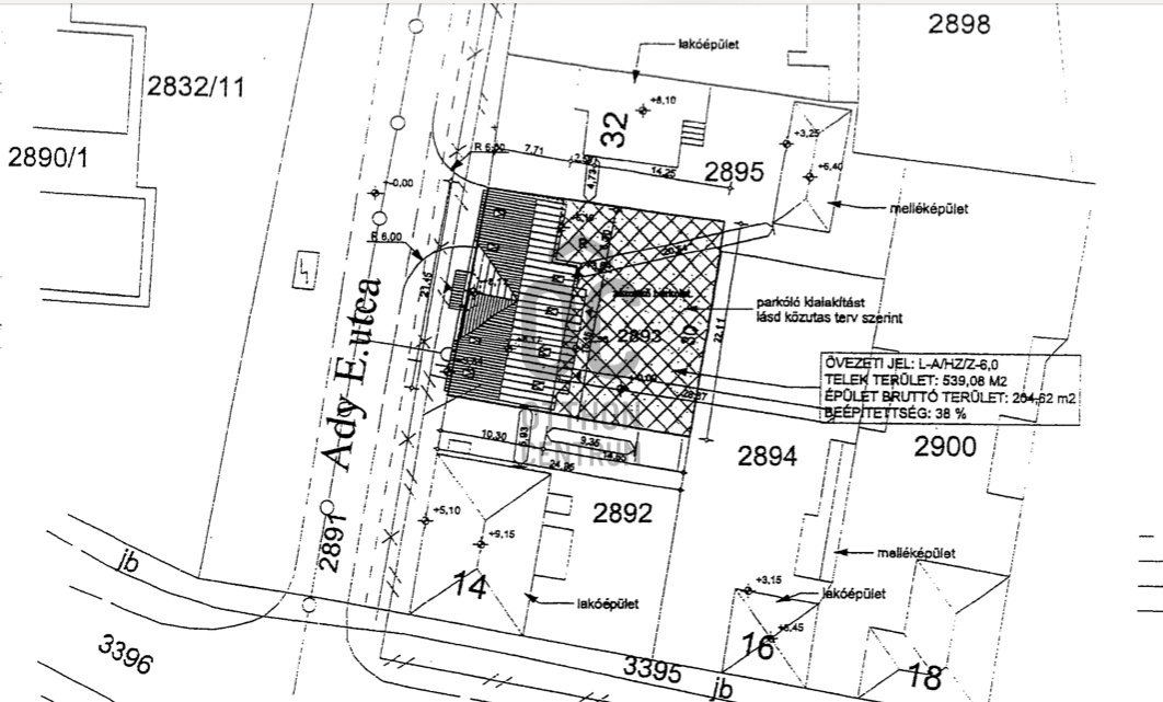
Tulajdoni lapon: kivett lakóház, udvar, műszaki bolt megnevezés szerepel.
Főbb jellemzők:
Központi, belvárosi elhelyezkedés
540 m² telek, 325/281 m² hasznos alapterület
8 szoba + konyha + szociális helyiségek
Gázkazán és 5 klíma (hűtés-fűtés)
Parkoló: akár 8 autó részére
Különálló, 20 m²-es lakható melléképület
Stabil bérlői háttér, azonnali hozam
Ár alkuképes!
Kiváló választás befektetőknek, vállalkozóknak, vagy akár többfunkciós irodaháznak, rendelőnek, panziónak is.
Jelenlegi bérleti szerkezete biztos, folyamatos bevételt nyújt!
Az ingatlan megtekintése kizárólag előre egyeztetett időpontban lehetséges. Hívjon bizalommal – ne maradjon le erről a lehetőségről!
                    Hajdúnánás belvárosában, frekventált helyen, 540 m²-es telken kínálunk eladásra egy kétszintes, 8 szobás, klimatizált üzletházat, mely jelenleg teljes egészében bérbeadott, így azonnali hozamot biztosít új tulajdonosának.
Az ingatlan a kétezres évek elején épült, beton alapra, tégla falazattal, cserepeslemez tetővel.
Alapterülete: 325 m² (nettó 281 m²).
Fűtését gázkazán biztosítja, emellett 5 darab hűtő-fűtő klíma gondoskodik a kellemes hőmérsékletről egész évben.
Helyiségek beosztása:
Földszint:
1 db 75 m²-es, utcafronti, nagy helyiség
2 külön szoba (22 és 20 m²)
Konyha, WC, kézmosó, lépcsőház
Tetőtér:
82/66 m²-es nagy szoba
42/31 m²-es szoba
2 kisebb szoba (21/11 m² és 19/10 m²)
WC, tusoló, lépcsőház
A teljesen térkövezett udvar akár 8 autó parkolására is alkalmas, valamint található rajta egy kb. 20 m²-es különálló épület, amelyben szoba, fürdőszoba és WC került kialakításra – lakhatásra vagy irodának is kiváló.
Tulajdoni lapon: kivett lakóház, udvar, műszaki bolt megnevezés szerepel.
Főbb jellemzők:
Központi, belvárosi elhelyezkedés
540 m² telek, 325/281 m² hasznos alapterület
8 szoba + konyha + szociális helyiségek
Gázkazán és 5 klíma (hűtés-fűtés)
Parkoló: akár 8 autó részére
Különálló, 20 m²-es lakható melléképület
Stabil bérlői háttér, azonnali hozam
Ár alkuképes!
Kiváló választás befektetőknek, vállalkozóknak, vagy akár többfunkciós irodaháznak, rendelőnek, panziónak is.
Jelenlegi bérleti szerkezete biztos, folyamatos bevételt nyújt!
Az ingatlan megtekintése kizárólag előre egyeztetett időpontban lehetséges. Hívjon bizalommal – ne maradjon le erről a lehetőségről!
Registration Number
UZ019110
                Property Details
Sales
                                        for sale
                                                                                                                                                Legal Status
                                        used
                                                                                                                                                Character
                                        commercial
                                                                                                                                                                                                                    Type of Business Property
                                        entire building
                                                                                                                                                Construction Method
                                        brick
                                                                                                                                                                                                                                                                                                                                                                                                                                                                                                    Net Size
                                        300 m²
                                                                                                                                                                                                                    Plot Size
                                        539 m²
                                                                                                                                                                                                                    Above-Ground Net Size
                                        204 m²
                                                                                                                                                                                                                                                                                                                                                            Heating
                                        Gas circulator
                                                                                                                                                Ceiling Height
                                        280 cm
                                                                                                                                                Number of Levels Within the Property
                                        2
                                                                                                                                                                                                                    View
                                        city view
                                                                                                                                                                                                                    Condition
                                        Good
                                                                                                                                                Condition of Facade
                                        Good
                                                                                                                                                                                                                                                                                                                                                            Year of Construction
                                        2002
                                                                                                                                                                                                                                                                                                                                                                                                                                                                                                                                                                                                                                                                                                                                                                                    Water
                                        Available
                                                                                                                                                Gas
                                        Available
                                                                                                                                                Electricity
                                        Available
                                                                                                                                                Sewer
                                        Available
                                                                                                                                                                                                                                                                                                                                                                                                                                                                                                                                                                                            Possible Functions
                                            hospitality unit, office, office and showroom or shop, office and warehouse, showroom, showroom and service or warehouse, guesthouse, hostel
                                                                                                                                                                                                                                                                                                                                                                                                                                                                                Accessibility
                                            Entrance from busy main road
                                                                                                                                                                Utilization
                                            owner-occupied
                                                                                                                                                                                                                                                                    
            
                            Plébán László
Credit Expert