1,300,000,000 Ft
3,344,000 €
- 800m²













Budapest szívében, nagy forgalmú utcában exkluzív étterem eladó
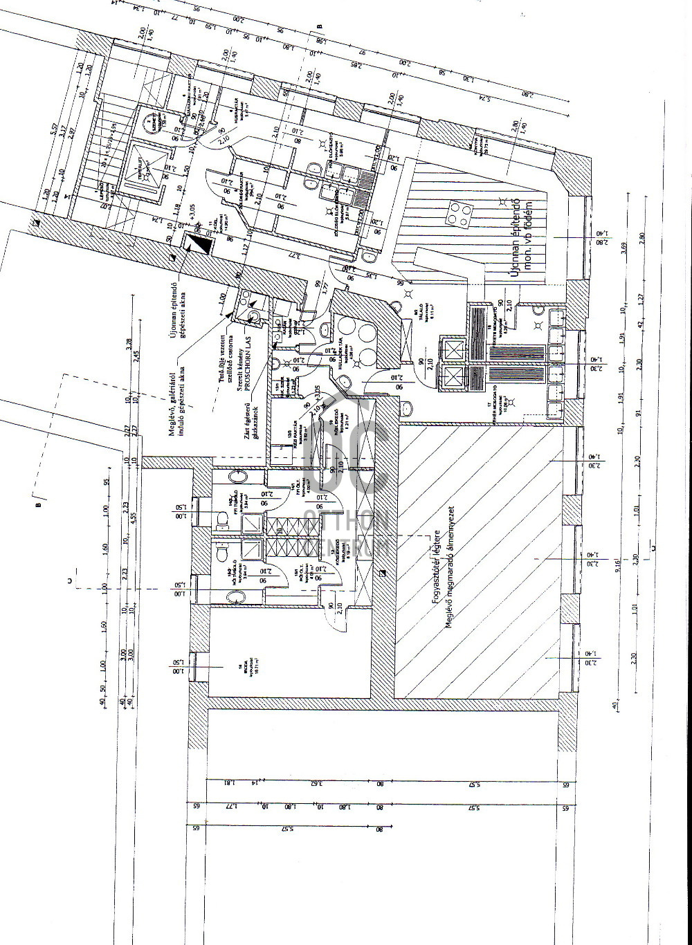
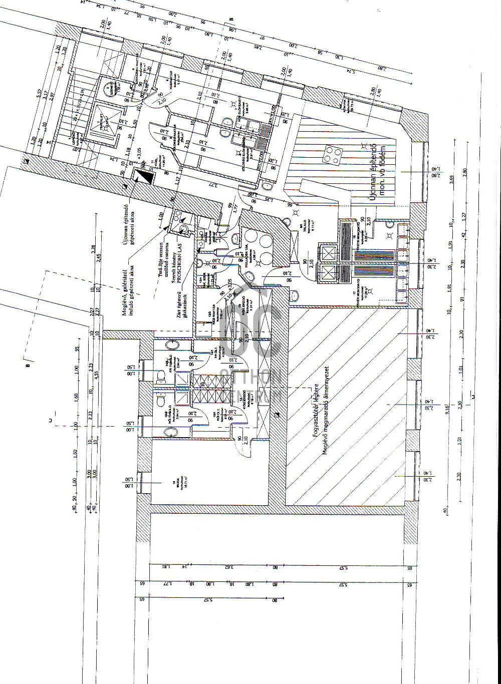
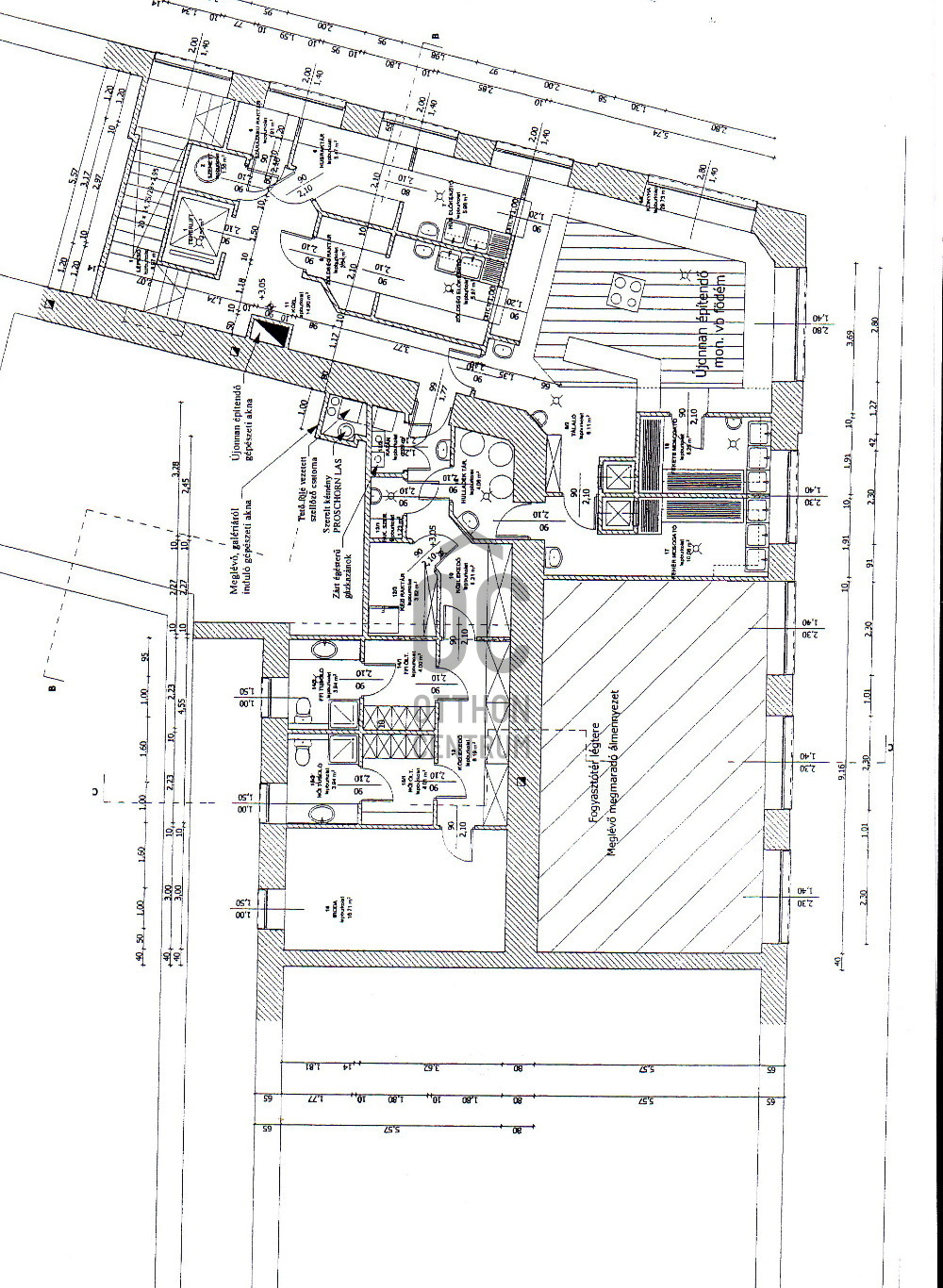
Megvételre kínálom a IX, kerület turisták által is szívesen látogatott nagy gyalogosforgalmú utcájában ezt az exkluzív éttermet, amely 250 vendég fogadására alkalmas. Az üvegportálos vendéglátóhely patinás belsővel rendelkezik, vörösfenyő nyílászárók, igényes falburkolatok biztosítják a vendégek számára fogyasztás közben a harmonikus környezetet. A három szintes ingatlan két bejárattal rendelkezik és összesen 800 négyzetméteren terül el. A földszinten a vendégtér és az italraktár, az emeleten a konyha, előkészítők, raktárak, öltözők és az iroda, míg a pincében a további vendégtér mellett, raktárakat és gépészetet találunk. A pincében a belmagasság 4 méter és az elszívó rendszer is ki van építve. Az étterem előtt az utcai terasszal bővíthető a vendégtér, így további 50 fő fogadására válik alkalmassá.
A fűtést és használati melegvizet gázkazán biztosítja illetve befúvó - elszívó berendezés és klíma berendezés is rendelkezésre áll. A konyha részben berendezett és megközelítőleg 300 adag étel elkészítésére van tervezve, természetesen fekete és fehér mosogatók, hús és zöldség előkészítők és raktárak tartoznak hozzá. Az üzemi terület saját külön elszívó-befúvó berendezéssel van felszerelve.
Az ingatlan a 3-as metró közelsége miatt tömegközlekedéssel is könnyűszerrel megközelíthető. Kiváló befektetés, mivel a környék a hazánkba látogató külföldiek kedvelt célpontja és az étterem bejáratott ügyfélkörrel rendelkezik.
Az éttermet a teljes berendezéssel együtt értékesítjük és elsősorban a céggel együtt eladó, de más konstrukció is szóba jöhet. Az ingatlan rugalmasan megtekinthető és gyorsan birtokba vehető.
További információkért kérem keressen a hét bármely napján 9 és 21 óra között.
#eladóétterem #ingatlan #befektetés
A fűtést és használati melegvizet gázkazán biztosítja illetve befúvó - elszívó berendezés és klíma berendezés is rendelkezésre áll. A konyha részben berendezett és megközelítőleg 300 adag étel elkészítésére van tervezve, természetesen fekete és fehér mosogatók, hús és zöldség előkészítők és raktárak tartoznak hozzá. Az üzemi terület saját külön elszívó-befúvó berendezéssel van felszerelve.
Az ingatlan a 3-as metró közelsége miatt tömegközlekedéssel is könnyűszerrel megközelíthető. Kiváló befektetés, mivel a környék a hazánkba látogató külföldiek kedvelt célpontja és az étterem bejáratott ügyfélkörrel rendelkezik.
Az éttermet a teljes berendezéssel együtt értékesítjük és elsősorban a céggel együtt eladó, de más konstrukció is szóba jöhet. Az ingatlan rugalmasan megtekinthető és gyorsan birtokba vehető.
További információkért kérem keressen a hét bármely napján 9 és 21 óra között.
#eladóétterem #ingatlan #befektetés
Registration Number
UZ018086
Property Details
Sales
for sale
Legal Status
used
Character
commercial
Type of Business Property
part of building
Construction Method
brick
Net Size
800 m²
Above-Ground Net Size
560 m²
Heating
Gas circulator
Ceiling Height
350 cm
Number of Levels Within the Property
3
Condition
Good
Condition of Facade
Good
Condition of Staircase
Good
Year of Construction
1870
Common Costs
203000
Water
Available
Gas
Available
Electricity
Available
Sewer
Available
Possible Functions
hospitality unit, office and showroom or shop
Visibility
Easily visible on a high foot traffic street
Accessibility
Entrance from high foot traffic street
Utilization
vacant

Torma Zsuzsanna
Credit Expert