22,850,000 Ft
60,000 €
- 26.2m²
- ground floor
Tisztelt Érdeklődő!
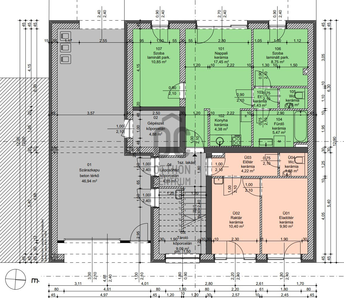
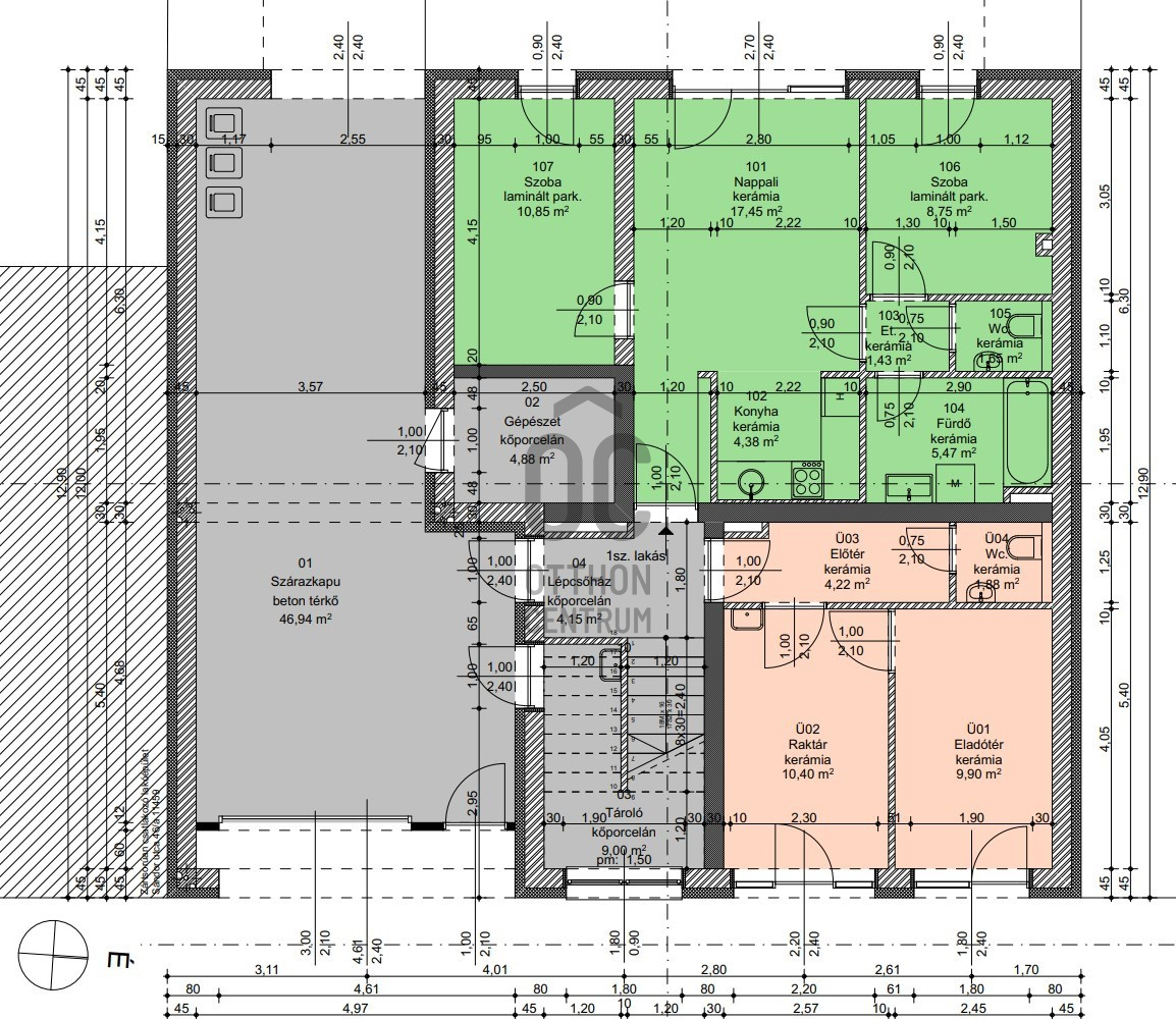
Eladásra kínáljuk a Sándor utcában ezt az emelt szintű szerkezetkész utcafronti üzlethelyiséget, melynek alaprajz szerinti bejárata a lépcsőház felől nyílik, de természetesen utcafrontról is megoldható, illetve a raktár/eladótér igény szerint összenyitható.
Az üzlethelyiség egy új építésű társasház részét képezi, amennyiben szeretne vállalkozása mellett lakhatási lehetőséget ez így most egy helyen megoldható, kérem ez ügyben is keressen bizalommal!
Építkezés kezdete : 2024. február
A társasház magas minőségben, megújuló energia felhasználásával épül, levegő- víz hőszivattyúval, saját hőközponttal, padlófűtéssel, egyedi mérési lehetőséggel.
Kulcsrakész befejezés igény szerint kérhető!
Az ár nettó ár! (+27%-os áfa)
Kérem, keressen bizalommal, hétvégén is elérhető vagyok!
Eladásra kínáljuk a Sándor utcában ezt az emelt szintű szerkezetkész utcafronti üzlethelyiséget, melynek alaprajz szerinti bejárata a lépcsőház felől nyílik, de természetesen utcafrontról is megoldható, illetve a raktár/eladótér igény szerint összenyitható.
Az üzlethelyiség egy új építésű társasház részét képezi, amennyiben szeretne vállalkozása mellett lakhatási lehetőséget ez így most egy helyen megoldható, kérem ez ügyben is keressen bizalommal!
Építkezés kezdete : 2024. február
A társasház magas minőségben, megújuló energia felhasználásával épül, levegő- víz hőszivattyúval, saját hőközponttal, padlófűtéssel, egyedi mérési lehetőséggel.
Kulcsrakész befejezés igény szerint kérhető!
Az ár nettó ár! (+27%-os áfa)
Kérem, keressen bizalommal, hétvégén is elérhető vagyok!
Registration Number
UZ016717
Property Details
Sales
for sale
Legal Status
new
Character
commercial
Type of Business Property
part of building
Construction Method
brick
Net Size
26.2 m²
Above-Ground Net Size
26 m²
Ceiling Height
260 cm
Condition
Excellent
Condition of Facade
Excellent
Condition of Staircase
Excellent
Year of Construction
2024
Water
Available
Electricity
Available
Sewer
Available
Possible Functions
office and showroom or shop
Utilization
vacant