355,000,000 Ft
945,000 €
- 500m²
Ipari és Kereskedelmi lehetőség Solymáron!
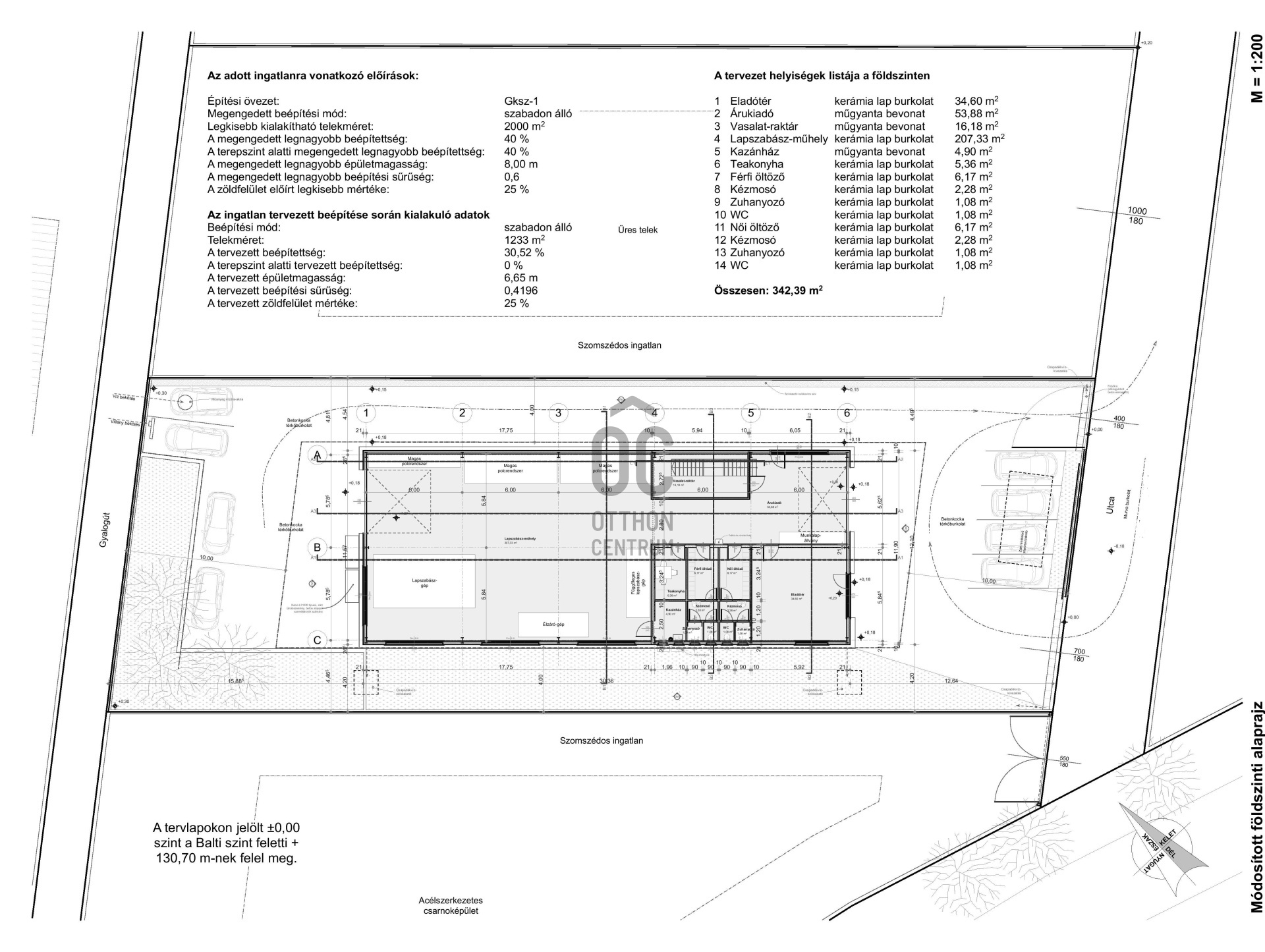
Eladásra kínálunk Solymár felé vezető,rendkívül forgalmas fő út(Bécsi út) mentén,ipari és kereskedelmi övezetben,1233nm-es, teljesen sík telken elhelyezkedő,elképesztő adottságokkal bíró,br.550nm alapterületű épület komplexumot-kereskedelmi csarnok ingatlant. Az átmenő forgalom óriási,több települést és vidéket is valamint maga a Fővárost is ezen út mentén lehet elérni. Az épület 2023-ban épült,modern, a mai kor csúcs műszaki tartalmával, rendkívül igényes kivitelben. Ez év végére készül el, a vételár a teljesen befejezett árra vonatkozik. Jelenleg még a burkolatok és a szaniterek választhatóak. Található benne eladótér,iroda,szociális helyiség,valamint nagyméretű,akár szeparálható raktár helyiség is. Az emeleten 140nm-es egyben helyiség, ami akár több irodát vagy tárgyalót is magában foglalhat. Elől, hátul, oldalt több bejárattal is rendelkezik,a személyi bejárás és az anyagmozgatás szempontjait figyelembe véve került kialakításra. A telek utcafronti szélessége igen kényelmes, itt található a közel 7m fesztávú automata úszókapu is. Az ingatlan besorolása GKSZ, Ipari és Kereskedelmi tevékenység végzésére alkalmas. Szomszédságában kereskedelmi egységek, telephelyek a buszmegálló 100méterre található. Felülete teljesen sík, ipari viacolorral burkolt, minden oldalról újonnan elkerített.
A főbb műszaki paraméterek:
-Komplett külső hőszigetelés
-Hőszivattyús padló fűtés illetve faincol
-46 Kw-os napelem rendszer,102db panel
-3X63 A
-2 db ipari, automata, szekcionált kapu
-ipari,látszóbeton padló
-távfelügyelethez bekötött riasztó rendszer kamerával
Az ingatlan adottságából és elhelyezkedéséből többek közt tökéletes kereskedelmi, szolgáltató vagy ipari jellegű tevékenység végzésére.
A főbb műszaki paraméterek:
-Komplett külső hőszigetelés
-Hőszivattyús padló fűtés illetve faincol
-46 Kw-os napelem rendszer,102db panel
-3X63 A
-2 db ipari, automata, szekcionált kapu
-ipari,látszóbeton padló
-távfelügyelethez bekötött riasztó rendszer kamerával
Az ingatlan adottságából és elhelyezkedéséből többek közt tökéletes kereskedelmi, szolgáltató vagy ipari jellegű tevékenység végzésére.
Registration Number
UZ016437
Property Details
Sales
for sale
Legal Status
new
Character
commercial
Type of Business Property
entire building
Construction Method
lightweight
Net Size
500 m²
Plot Size
1,233 m²
Above-Ground Net Size
500 m²
Heating
heat pump
Ceiling Height
600 cm
Number of Levels Within the Property
1
Condition
Excellent
Condition of Facade
Excellent
Year of Construction
2023
Water
Available
Electricity
Available
Possible Functions
office and showroom or shop, office and warehouse, showroom, showroom and service or warehouse, industrial hall or warehouse, logistics center, other
Utilization
vacant
Pfeffer Kinga
Credit Expert