140,290,000 Ft
365,000 €
- 89.7m²
- 4 Rooms
- 2nd floor
KISFALUDY PROJEKT – ÚJ ÉPÍTÉSŰ TÁRSASHÁZI LAKÁSOK A IV. KERÜLETBEN
Budapest IV. kerületében, csendes kertvárosi környezetben valósul meg a Kisfaludy Projekt. egy modern, mindössze 4 lakásos társasház utcafronti üzlethelyiséggel.
A projekt különlegessége az alacsony lakásszám, az átgondolt alaprajzok és a korszerű, energiahatékony műszaki tartalom.
A lakások 30%-al leköthetők! A földszinti garzon, ÉRTÉKESÍTÉSRE került!
ÉPÜLET ELRENDEZÉSE
Földszint
•Garzonlakás (eladva) – előtér, nappali–konyha–étkező, fürdő
•Üzlethelyiség – iroda, raktár, mosdó kialakítással
1. emelet – 2 lakás
•Előtér
•Nappali–konyha–étkező
•2 hálószoba
•Fürdőszoba
•Külön WC
Ideális választás családok számára.
2. emelet – 1 lakás
•Előtér
•Közlekedő
•Nappali–konyha–étkező
•3hálószoba
•Fürdőszoba
•Külön WC
Tágas, kényelmes, jól szeparált életterek.
MŰSZAKI TARTALOM
Szerkezet
•60 cm széles sávalap
•25 cm Porotherm N+F vázkerámia falazóelem
•10 cm Porotherm válaszfalak
•Monolit vasbeton födém
•Bramac Tectura betoncserép fedés
Szigetelés
•Lábazat: 12 cm XPS
•Határoló falak: 15 cm kőzetgyapot
•Tetőszerkezet: 2x15 cm Rockwool
Nyílászárók
•3 rétegű műanyag nyílászárók a kiváló hő- és hangszigetelés érdekében
FŰTÉS / HŰTÉS / MELEGVÍZ
•Felső szinteken: egyedi hőszivattyús padlófűtés + mennyezeti hűtés
•Földszinten: hűtő-fűtő klíma okos bojler
•Használati meleg víz: hőszivattyúról működtetett meleg víz tároló
•Az albetétek egyedi fűtéssel és egyedi használati meleg víz-ellátással rendelkeznek
Energiahatékony, modern, gazdaságosan fenntartható megoldások.
LOKÁCIÓ
Csendes kertvárosi környezet, mégis minden karnyújtásnyira:
•Újpesti Piac – 3 perc
•Újpest-központ metróállomás (M3) – 5 perc
•Szakorvosi rendelő – 5 perc
•Egyetem – 10 perc
•Duna-part – 6 perc
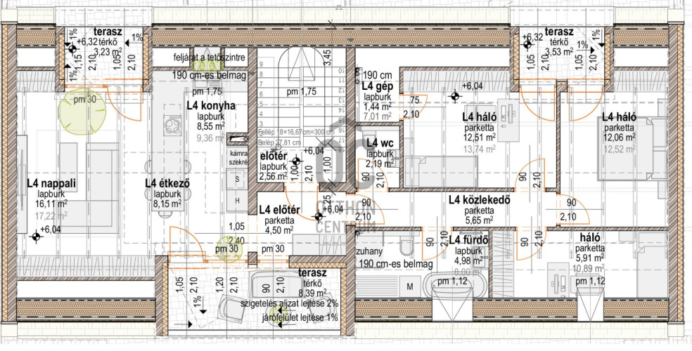
II. emelet 4. lakás
A projekt legnagyobb alapterületű lakása: nettó 89.74 bruttó 107.9 m2
3 hálószoba
Fürdőszoba
külön wc-kézmosó
Nappali
konyha-étkező
közlekedő
1 utcafronti terasz
2 hátsó terasz, mely a belső udvarra néz.
Fedett parkoló, elektromos autó töltés előkészítéssel 8M Ft.
Projekt bemutatóval és részletes műszaki tartalommal kapcsolatban várom megtisztelő hívását!
Kiváló infrastruktúra és közlekedés, nyugodt lakókörnyezetben.
Budapest IV. kerületében, csendes kertvárosi környezetben valósul meg a Kisfaludy Projekt. egy modern, mindössze 4 lakásos társasház utcafronti üzlethelyiséggel.
A projekt különlegessége az alacsony lakásszám, az átgondolt alaprajzok és a korszerű, energiahatékony műszaki tartalom.
A lakások 30%-al leköthetők! A földszinti garzon, ÉRTÉKESÍTÉSRE került!
ÉPÜLET ELRENDEZÉSE
Földszint
•Garzonlakás (eladva) – előtér, nappali–konyha–étkező, fürdő
•Üzlethelyiség – iroda, raktár, mosdó kialakítással
1. emelet – 2 lakás
•Előtér
•Nappali–konyha–étkező
•2 hálószoba
•Fürdőszoba
•Külön WC
Ideális választás családok számára.
2. emelet – 1 lakás
•Előtér
•Közlekedő
•Nappali–konyha–étkező
•3hálószoba
•Fürdőszoba
•Külön WC
Tágas, kényelmes, jól szeparált életterek.
MŰSZAKI TARTALOM
Szerkezet
•60 cm széles sávalap
•25 cm Porotherm N+F vázkerámia falazóelem
•10 cm Porotherm válaszfalak
•Monolit vasbeton födém
•Bramac Tectura betoncserép fedés
Szigetelés
•Lábazat: 12 cm XPS
•Határoló falak: 15 cm kőzetgyapot
•Tetőszerkezet: 2x15 cm Rockwool
Nyílászárók
•3 rétegű műanyag nyílászárók a kiváló hő- és hangszigetelés érdekében
FŰTÉS / HŰTÉS / MELEGVÍZ
•Felső szinteken: egyedi hőszivattyús padlófűtés + mennyezeti hűtés
•Földszinten: hűtő-fűtő klíma okos bojler
•Használati meleg víz: hőszivattyúról működtetett meleg víz tároló
•Az albetétek egyedi fűtéssel és egyedi használati meleg víz-ellátással rendelkeznek
Energiahatékony, modern, gazdaságosan fenntartható megoldások.
LOKÁCIÓ
Csendes kertvárosi környezet, mégis minden karnyújtásnyira:
•Újpesti Piac – 3 perc
•Újpest-központ metróállomás (M3) – 5 perc
•Szakorvosi rendelő – 5 perc
•Egyetem – 10 perc
•Duna-part – 6 perc
II. emelet 4. lakás
A projekt legnagyobb alapterületű lakása: nettó 89.74 bruttó 107.9 m2
3 hálószoba
Fürdőszoba
külön wc-kézmosó
Nappali
konyha-étkező
közlekedő
1 utcafronti terasz
2 hátsó terasz, mely a belső udvarra néz.
Fedett parkoló, elektromos autó töltés előkészítéssel 8M Ft.
Projekt bemutatóval és részletes műszaki tartalommal kapcsolatban várom megtisztelő hívását!
Kiváló infrastruktúra és közlekedés, nyugodt lakókörnyezetben.
Registration Number
U0049487
Property Details
Sales
for sale
Legal Status
new
Character
apartment
Construction Method
brick
Net Size
89.7 m²
Gross Size
107.9 m²
Size of Terrace / Balcony
8.3 m²
Heating
heat pump (air-to-water)
Ceiling Height
270 cm
Orientation
South-West
Staircase Type
enclosed staircase
Condition
Excellent
Condition of Facade
Excellent
Condition of Staircase
Excellent
Year of Construction
2026
Number of Bathrooms
1
Position
courtyard-facing
Number of Covered Parking Spots
1
Water
Available
Electricity
Available
Sewer
Available
Rooms
bedroom
5.91 m²
bedroom
12.06 m²
bedroom
12.51 m²
bathroom
4.98 m²
corridor
5.69 m²
toilet-washbasin
2.19 m²
entryway
4.5 m²
open-plan kitchen and dining room
17.7 m²
living room
16.11 m²
terrace
3.23 m²
terrace
3.53 m²
terrace
8.39 m²
Joó Krisztina
Credit Expert