data_sheet.details.realestate.section.main.otthonstart_flag.label
For sale new construction family house,
U0049215
Debrecen, Kerekes-telep
139,900,000 Ft
363,000 €
- 120m²
- 4 Rooms
Új építésű önálló családi ház eladó Debrecen Kerekestelepen
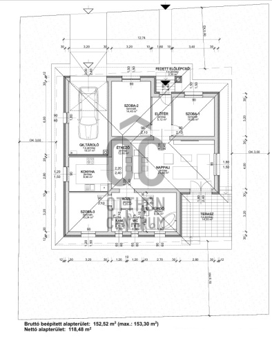
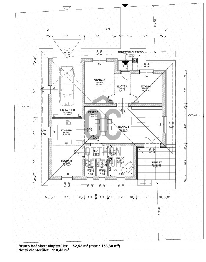
Debrecen Kerekestelep városrészében, csendes, kövezett zsákutcában kínálunk megvételre egy 3 különnyíló szoba + amerikai konyha-nappalis önálló családi házat, 510 m²-es telken, 120 m² hasznos alapterülettel.
Az ingatlan modern műszaki tartalommal és kiváló hőszigeteléssel készül, energiatakarékos megoldásokkal.
Műszaki jellemzők:
-Porotherm 30 tégla
-Padlófűtés minden helyiségben
-A szobákban padlófűtés mellett radiátor is
-Gáz-cirkó fűtés
-3 rétegű hőszigetelt nyílászárók
-12 cm grafitos külső homlokzati szigetelés
-12 cm padlószigetelés
-30 cm födémszigetelés
-Elektromos garázskapu
-Riasztórendszer vezetékelése előkészítve
Az ár tartalmazza:
-2 db klímaberendezés
-Nemesvakolattal ellátott homlokzat
-Térkövezett udvari felületek
-Burkolt terasz
Az ingatlan várhatóan 2026 júniusában készül el, így ideális választás azok számára, akik új építésű, korszerű otthont keresnek nyugodt környezetben.
Bővebb információért vagy megtekintésért keressen bátran!
Az ingatlan modern műszaki tartalommal és kiváló hőszigeteléssel készül, energiatakarékos megoldásokkal.
Műszaki jellemzők:
-Porotherm 30 tégla
-Padlófűtés minden helyiségben
-A szobákban padlófűtés mellett radiátor is
-Gáz-cirkó fűtés
-3 rétegű hőszigetelt nyílászárók
-12 cm grafitos külső homlokzati szigetelés
-12 cm padlószigetelés
-30 cm födémszigetelés
-Elektromos garázskapu
-Riasztórendszer vezetékelése előkészítve
Az ár tartalmazza:
-2 db klímaberendezés
-Nemesvakolattal ellátott homlokzat
-Térkövezett udvari felületek
-Burkolt terasz
Az ingatlan várhatóan 2026 júniusában készül el, így ideális választás azok számára, akik új építésű, korszerű otthont keresnek nyugodt környezetben.
Bővebb információért vagy megtekintésért keressen bátran!
Registration Number
U0049215
Property Details
Sales
for sale
Legal Status
new
Character
house
Construction Method
brick
Net Size
120 m²
Gross Size
152 m²
Plot Size
510 m²
Size of Terrace / Balcony
14 m²
Heating
Gas circulator
Ceiling Height
270 cm
Orientation
East
Condition
Excellent
Condition of Facade
Excellent
Neighborhood
quiet, good transport
Year of Construction
2026
Number of Bathrooms
1
Garage
Included in the price
Garage Spaces
1
Water
Available
Gas
Available
Electricity
Available
Sewer
Available
Rooms
room
14 m²
room
11 m²
room
10 m²
kitchen
9 m²
open-plan living and dining room
33 m²
bathroom
9 m²
toilet
2 m²
pantry
2 m²
entryway
5 m²
terrace
14 m²
garage
19 m²
Czellér András
Credit Expert