data_sheet.details.realestate.section.main.otthonstart_flag.label
For sale new construction semi-detached house,
U0049189
Dunaharaszti
146,000,000 Ft
386,000 €
- 158m²
- 5 Rooms
Dunaharaszti Alsóváros részén nappali + 4 hálószobás ikerház ELADÓ!
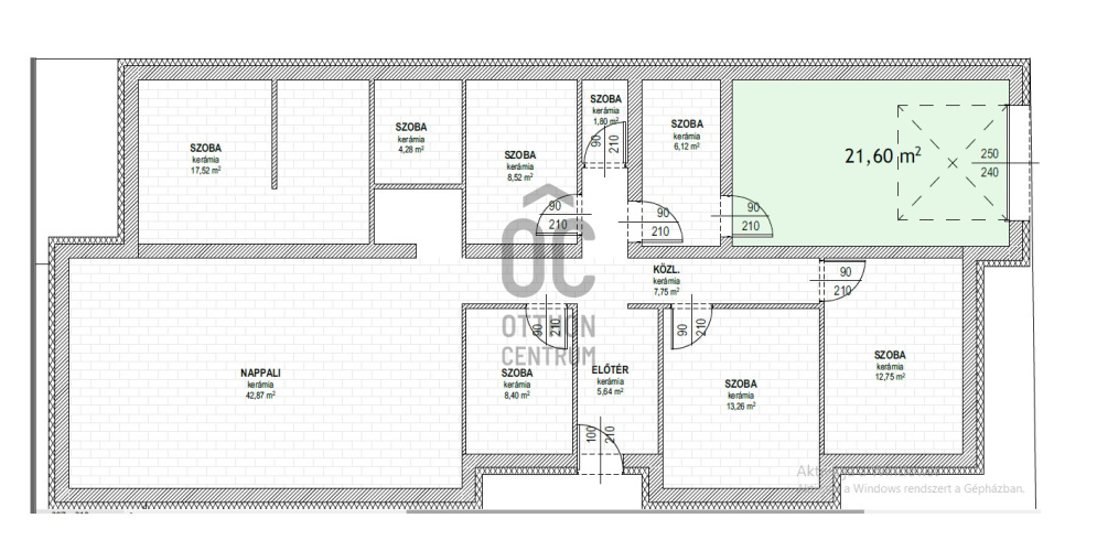
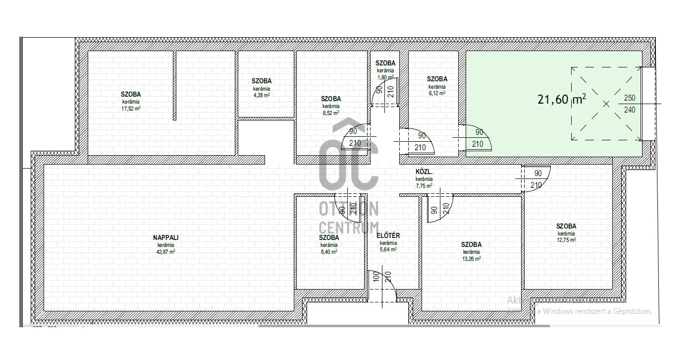
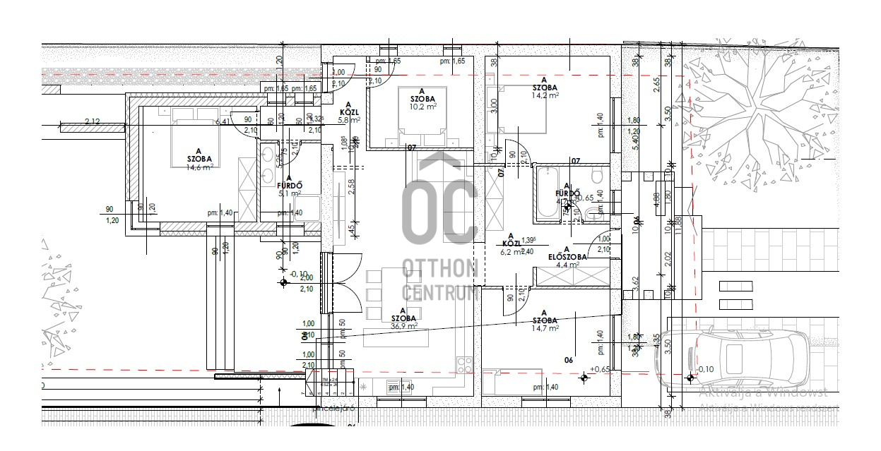
Autóbeálló kapcsolatos nettó 136 nm alapterületű+ 22 nm (garázs)+20 nm-es autó beállóval épülő földszintes, utcafronti ikerház kerül most értékesítésre 510 m2-es hozzá tartozó telekrésszel.
Az ingatlan 4 hálószobával, amerikai konyhás nappalival, két fürdőszobával, terasszal, van tervezve, azonban ez még módosítható, mert a kivitelezést a szerződéskötés után kezdi el a kivitelező, az alaprajzok tájékoztató, ötletadó jellegűek, így teljes mértékben a saját igényei szerint történhet meg az ingatlan kialakítása.
Csendes kertvárosi környezet, saját helyrajzi számmal rendelkező ikerház, amely pergolás autóbeállóval kapcsolódik a másik ingatlannal.
Főbb paraméterek:
- amerikai konyhás nappali + 4 hálószoba
- nettó: 158 m2, 400 m2 telek
- 30-as kerámia főfalak, 10 cm ytong válaszfal
- főfal 15 cm EPS, aljzatban 12 cm, födémen 25 cm szigetelés
- kondenzációs gázkazán/hőszivattyú/ klíma berendezés,
- földszinten padlófűtés, szobákban lapradiátorok
- 3 KW-os napelem rendszer,
- 3 rétegű 6 légkamrás műanyag nyílászárókkal redőnnyel, szúnyoghálóval
- riasztórendszer, kaputelefon előkészítés
- járda az épület körül, kocsibeálló a telken és az utcán 10x20 cm viacolorral
Várható átadás: szerződéskötéstől számított 8 hónap.
Kiváló elhelyezkedés:
- Budapest gyorsan elérhető
- Liszt Ferenc Repülőtér: 20 perc
- M0 autópálya: 3 perc
- M5 autópálya: kb. 15 km
További információért, kérem keressen!
Az ingatlan 4 hálószobával, amerikai konyhás nappalival, két fürdőszobával, terasszal, van tervezve, azonban ez még módosítható, mert a kivitelezést a szerződéskötés után kezdi el a kivitelező, az alaprajzok tájékoztató, ötletadó jellegűek, így teljes mértékben a saját igényei szerint történhet meg az ingatlan kialakítása.
Csendes kertvárosi környezet, saját helyrajzi számmal rendelkező ikerház, amely pergolás autóbeállóval kapcsolódik a másik ingatlannal.
Főbb paraméterek:
- amerikai konyhás nappali + 4 hálószoba
- nettó: 158 m2, 400 m2 telek
- 30-as kerámia főfalak, 10 cm ytong válaszfal
- főfal 15 cm EPS, aljzatban 12 cm, födémen 25 cm szigetelés
- kondenzációs gázkazán/hőszivattyú/ klíma berendezés,
- földszinten padlófűtés, szobákban lapradiátorok
- 3 KW-os napelem rendszer,
- 3 rétegű 6 légkamrás műanyag nyílászárókkal redőnnyel, szúnyoghálóval
- riasztórendszer, kaputelefon előkészítés
- járda az épület körül, kocsibeálló a telken és az utcán 10x20 cm viacolorral
Várható átadás: szerződéskötéstől számított 8 hónap.
Kiváló elhelyezkedés:
- Budapest gyorsan elérhető
- Liszt Ferenc Repülőtér: 20 perc
- M0 autópálya: 3 perc
- M5 autópálya: kb. 15 km
További információért, kérem keressen!
Registration Number
U0049189
Property Details
Sales
for sale
Legal Status
new
Character
house
Construction Method
brick
Net Size
158 m²
Gross Size
178 m²
Plot Size
402 m²
Heating
Gas circulator
Ceiling Height
270 cm
Orientation
South-East
Condition
Excellent
Condition of Facade
Excellent
Neighborhood
good transport
Year of Construction
2026
Number of Bathrooms
2
Garage Spaces
1
Water
Available
Gas
Available
Electricity
Available
Sewer
Available
Rooms
open-plan kitchen and living room
42.87 m²
room
17.52 m²
room
13.28 m²
room
12.75 m²
room
8.52 m²
other room
8.4 m²
other room
4.28 m²
other room
1.8 m²
other room
6.12 m²
entryway
5.84 m²
corridor
7.75 m²
garage
21.6 m²
Joó Krisztina
Credit Expert