226,000,000 Ft
597,000 €
- 187m²
- 4 Rooms
Érd-Parkvárosban, új építésű, luxus otthon a természet ölében, intim környezetben!
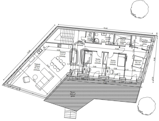
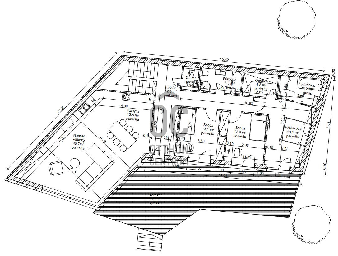
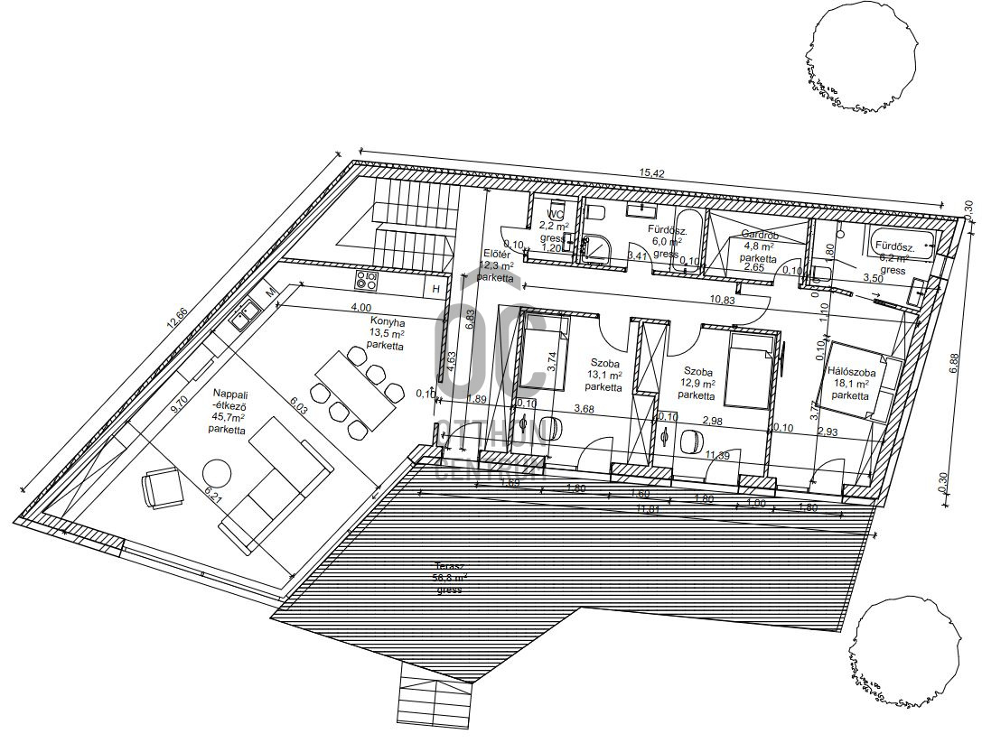
Érd-Parkváros csendes utcájában új építésű, nettó 187 m2-es, amerikai konyhás nappalival, 3 hálószobával, 2 fürdőszobával, kiszolgáló helyiségekkel, garázzsal, nagy terasszal ikerház eladó!
Az épület formavilága rendkívül impozáns. Egyedi módon, szinteltolással kapcsolódik egymáshoz a két ház. Az ingatlant átgondolt, praktikus alaprajz, magas minőségű kivitelezés, modern, minden igényt kielégítő felszereltség jellemzi. Elhelyezkedése rendkívül csendes, zöld. Egy zsák utca végén, természetvédelmi terület szélén van, ami intimmé teszi. A hatalmas nyílászáróknak köszönhetően a ház világos, napos, szép kilátás van a környező erdős hegyekre. Az 57 m2-es terasz és a hozzákapcsolódó saját kertrész tökéletes helyet biztosít a kellemes pihenésre, kikapcsolódásra.
A 2 épületnek csak a garázs szinten van közös fala. A házak 30 cm vastag Porotherm falazóelemekből épültek, 20 cm Dryvit rendszerű hőszigeteléssel.
A fűtést Daikin hőszivattyús rendszer biztosítja, mennyezeti hűtés-fűtéssel és padlófűtéssel.
A nyílászárók antracit színűek, fa, 3 rétegű, bukó-nyíló ablakok és nagy méretű toló teraszajtó, rejtett tokozással, elektromos redőnnyel, illetve zsalúziával.
A burkolatok, szaniterek és belső ajtók kiemelkedő minőségben, az átlagnál magasabb áron választhatók.
Az egyéb extra felszereltséget is tartalmazó részletes műszaki tartalmat komoly érdeklődés esetén rendelkezésére bocsájtjuk.
A beruházó cég megbízható, és számos referencia munkával rendelkezik.
Az utca rendezett, új építésű házakkal. Pár perc alatt elérhető minden szolgáltatás, iskola, óvoda, tömegközlekedés, bevásárlási lehetőség.
Várható átadás: 2026. II. negyedév
További információkkal kapcsolatban kérem hívjon bizalommal!
Az épület formavilága rendkívül impozáns. Egyedi módon, szinteltolással kapcsolódik egymáshoz a két ház. Az ingatlant átgondolt, praktikus alaprajz, magas minőségű kivitelezés, modern, minden igényt kielégítő felszereltség jellemzi. Elhelyezkedése rendkívül csendes, zöld. Egy zsák utca végén, természetvédelmi terület szélén van, ami intimmé teszi. A hatalmas nyílászáróknak köszönhetően a ház világos, napos, szép kilátás van a környező erdős hegyekre. Az 57 m2-es terasz és a hozzákapcsolódó saját kertrész tökéletes helyet biztosít a kellemes pihenésre, kikapcsolódásra.
A 2 épületnek csak a garázs szinten van közös fala. A házak 30 cm vastag Porotherm falazóelemekből épültek, 20 cm Dryvit rendszerű hőszigeteléssel.
A fűtést Daikin hőszivattyús rendszer biztosítja, mennyezeti hűtés-fűtéssel és padlófűtéssel.
A nyílászárók antracit színűek, fa, 3 rétegű, bukó-nyíló ablakok és nagy méretű toló teraszajtó, rejtett tokozással, elektromos redőnnyel, illetve zsalúziával.
A burkolatok, szaniterek és belső ajtók kiemelkedő minőségben, az átlagnál magasabb áron választhatók.
Az egyéb extra felszereltséget is tartalmazó részletes műszaki tartalmat komoly érdeklődés esetén rendelkezésére bocsájtjuk.
A beruházó cég megbízható, és számos referencia munkával rendelkezik.
Az utca rendezett, új építésű házakkal. Pár perc alatt elérhető minden szolgáltatás, iskola, óvoda, tömegközlekedés, bevásárlási lehetőség.
Várható átadás: 2026. II. negyedév
További információkkal kapcsolatban kérem hívjon bizalommal!
Registration Number
U0049160
Property Details
Sales
for sale
Legal Status
new
Character
house
Construction Method
brick
Net Size
187 m²
Gross Size
229 m²
Plot Size
300 m²
Size of Terrace / Balcony
56.8 m²
Garden Size
300 m²
Heating
heat pump
Ceiling Height
270 cm
Number of Levels Within the Property
2
Orientation
South-West
View
Green view
Condition
Excellent
Condition of Facade
Excellent
Basement
Independent
Neighborhood
quiet, green
Year of Construction
2025
Number of Bathrooms
2
Condominium Garden
yes
Garage
Included in the price
Garage Spaces
2
Water
Available
Electricity
Available
Sewer
Available
Storage
Independent
Rooms
open-plan living and dining room
45.7 m²
kitchen
13.5 m²
entryway
12.3 m²
room
13.1 m²
room
12.9 m²
room
18.1 m²
bathroom-toilet
6 m²
bathroom-toilet
6.2 m²
wardrobe
4.8 m²
toilet-washbasin
2.2 m²
terrace
56.8 m²
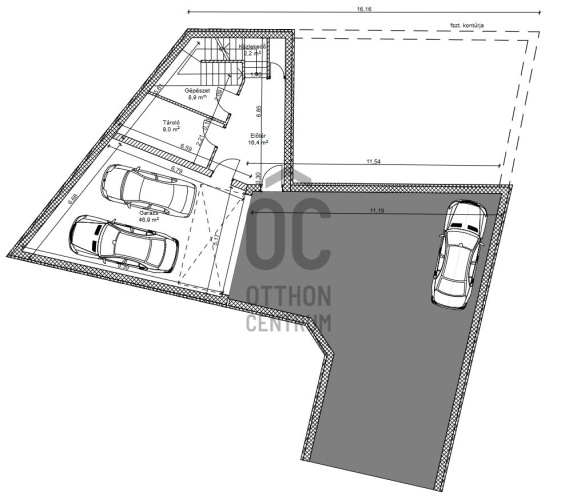
garage
46.9 m²
storage
9 m²
boiler room
8.9 m²
corridor
16.4 m²
staircase
2.2 m²
Tóth Róbert
Credit Expert